Rodinný dom, Dudince, B.Tablica
- [7.2. 2026]Zmazať/ Upraviť/ Topovať




















Ponúkame na predaj samostatne stojaci rodinný dom na ulici B.Tablica so súpisným číslom 75, nachádzajúci sa v pokojnej obytnej časti kúpeľného mesta Dudince, na okraji mesta s veľmi dobrou dostupnosťou a kompletnou občianskou vybavenosťou.
ZÁKLADNÉ INFORMÁCIE
• Lokalita: Dudince, okres Krupina
• Typ: rodinný dom
• Počet podlaží: 2 nadzemné + čiastočné podpivničenie + strešná terasa
• Pozemok: 1/2 rovinatý, 1/2 v zadnej polovici mierne svahovitý
• Prístup: asfaltová komunikácia
• Stav: udržiavaný, priebežne rekonštruovaný, vyžaduje investície
POZEMOK
Pozemok je z polovice rovinatý a z polovice mierne svahovitý, kompletne oplotený a udržiavaný. Nachádza sa na ňom:
• studňa,
• vybetónovaná terasa,
• ovocné stromy a kríky,
• vinič,
Na pozemku je príjemné súkromie a ideálne podmienky na oddych aj záhradkárčenie.
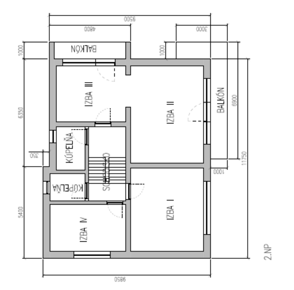
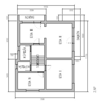
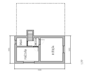
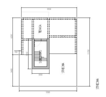
DISPOZIČNÉ RIEŠENIE
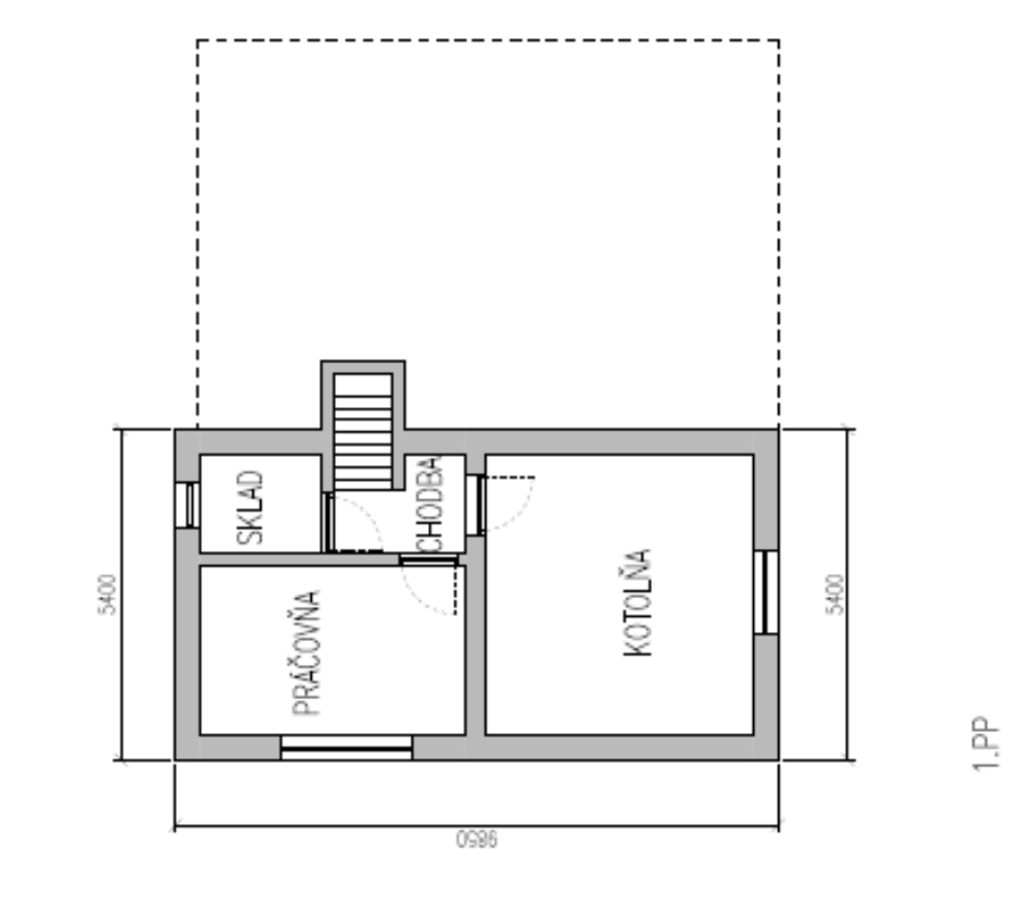
• 1. PP: kotolňa, práčovňa, sklad
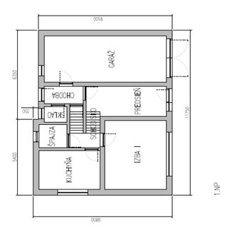
• 1. NP: vstupná predsieň, chodba, garáž, kuchyňa, obývacia izba, špajza, technická miestnosť
• 2. NP: chodba, 4 obytné miestnosti, kúpeľne, WC, balkóny
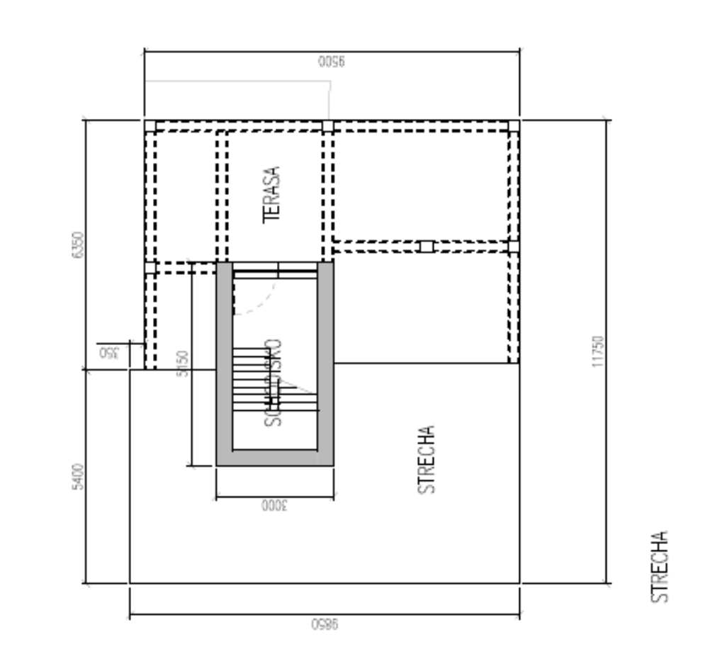
• Strecha: pochôdzna terasa
Dom ponúka dostatok priestoru pre rodinné bývanie a flexibilitu dispozičných úprav podľa potrieb nového majiteľa.
TECHNICKÝ STAV A REKONŠTRUKCIE
• dom v užívaní od roku 1978
• 2019: výmena plynového kotla
• 2023: kompletná rekonštrukcia strechy
• 2024: výmena plastových okien
Rodinný dom je staticky aj technicky v dobrom stave, je suchý, dobre izolovaný, bez známok vlhkosti alebo statických porúch. Priebežná údržba a rekonštrukcie zabezpečujú jeho dlhodobú funkčnosť a komfortné bývanie. Interiér rodinného domu je obytný, aj aktuálne obývaný, avšak vzhľadom na dnešné štandardy vyžaduje rekonštrukciu.
INŽINIERSKE SIETE
• elektrina
• plyn
• mestský vodovod
• mestská kanalizácia
CENA
185 000 €
Podľa aktuálneho znaleckého posudku je hodnota nehnuteľnosti stanovená na cca 210 000 €, čo z ponúkanej ceny robí zaujímavú príležitosť z pohľadu pomeru ceny a hodnoty aj v prípade financovania prostredníctvom hypotekárneho úveru.
V prípade záujmu o obhliadku alebo doplňujúce informácie ma neváhajte kontaktovať na čísle +421948678836
ZÁKLADNÉ INFORMÁCIE
• Lokalita: Dudince, okres Krupina
• Typ: rodinný dom
• Počet podlaží: 2 nadzemné + čiastočné podpivničenie + strešná terasa
• Pozemok: 1/2 rovinatý, 1/2 v zadnej polovici mierne svahovitý
• Prístup: asfaltová komunikácia
• Stav: udržiavaný, priebežne rekonštruovaný, vyžaduje investície
POZEMOK
Pozemok je z polovice rovinatý a z polovice mierne svahovitý, kompletne oplotený a udržiavaný. Nachádza sa na ňom:
• studňa,
• vybetónovaná terasa,
• ovocné stromy a kríky,
• vinič,
Na pozemku je príjemné súkromie a ideálne podmienky na oddych aj záhradkárčenie.
DISPOZIČNÉ RIEŠENIE
• 1. PP: kotolňa, práčovňa, sklad
• 1. NP: vstupná predsieň, chodba, garáž, kuchyňa, obývacia izba, špajza, technická miestnosť
• 2. NP: chodba, 4 obytné miestnosti, kúpeľne, WC, balkóny
• Strecha: pochôdzna terasa
Dom ponúka dostatok priestoru pre rodinné bývanie a flexibilitu dispozičných úprav podľa potrieb nového majiteľa.
TECHNICKÝ STAV A REKONŠTRUKCIE
• dom v užívaní od roku 1978
• 2019: výmena plynového kotla
• 2023: kompletná rekonštrukcia strechy
• 2024: výmena plastových okien
Rodinný dom je staticky aj technicky v dobrom stave, je suchý, dobre izolovaný, bez známok vlhkosti alebo statických porúch. Priebežná údržba a rekonštrukcie zabezpečujú jeho dlhodobú funkčnosť a komfortné bývanie. Interiér rodinného domu je obytný, aj aktuálne obývaný, avšak vzhľadom na dnešné štandardy vyžaduje rekonštrukciu.
INŽINIERSKE SIETE
• elektrina
• plyn
• mestský vodovod
• mestská kanalizácia
CENA
185 000 €
Podľa aktuálneho znaleckého posudku je hodnota nehnuteľnosti stanovená na cca 210 000 €, čo z ponúkanej ceny robí zaujímavú príležitosť z pohľadu pomeru ceny a hodnoty aj v prípade financovania prostredníctvom hypotekárneho úveru.
V prípade záujmu o obhliadku alebo doplňujúce informácie ma neváhajte kontaktovať na čísle +421948678836
|
| |||||||||||||||||||||||||||||||