Obchodný priestor do prenájmu
- [7.2. 2026]Zmazať/ Upraviť/ Topovať














Exkluzívne ponúkame do prenájmu obchodné a skladové priestory v Lučenci mestskej časti Opatová.
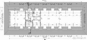
Objekt pozostáva so štyroch priestorov a každý priestor disponuje vlastným vstupom, toaletou a kúpelňou. Objekt je dvojpodlažný pričom celková výmera ponúkaných priestorov je 657,9 m2 (prízemie spolu 311,9m2 a poschodie 346m2). Priestory je možné prenajať o celkovej výmere, alebo jednotlivo pričom priestory sú rozdelené nasledovne.
Prízemie
Priestor 1- 59,6 m2,
Priestor 2- 193,8 m2
Priestor 3- 58,5 m2
Podkrovie
Priestor 4- 142,2 m2
Priestor 5- 203,8 m2
Priestor 6- terasa a dvor
Priestory sú vhodné na kancelárske, obchodné, reštauračné, alebo konferenčné využitie.
Popisovaný objekt je dom s pozdĺžnym nosným systémom. Murovaný z keramických tehál v pôvodnom stave.
Súčasťou prevádzkových priestorov je priestranná zastrešená terasa, samostatné parkovisko a 2 garáže.
Výhodou je, že obchodné priestory si môžete upraviť podľa vlastných predstáv.
Dispozične je nehnuteľnosť na ideálnom mieste mimo rušnej komunikácie mesta, ale zároveň pri vstupe do mesta.
Cena 1200,-€/mesiac je za celý objekt aj s vonkajšími priestormi.
Objekt pozostáva so štyroch priestorov a každý priestor disponuje vlastným vstupom, toaletou a kúpelňou. Objekt je dvojpodlažný pričom celková výmera ponúkaných priestorov je 657,9 m2 (prízemie spolu 311,9m2 a poschodie 346m2). Priestory je možné prenajať o celkovej výmere, alebo jednotlivo pričom priestory sú rozdelené nasledovne.
Prízemie
Priestor 1- 59,6 m2,
Priestor 2- 193,8 m2
Priestor 3- 58,5 m2
Podkrovie
Priestor 4- 142,2 m2
Priestor 5- 203,8 m2
Priestor 6- terasa a dvor
Priestory sú vhodné na kancelárske, obchodné, reštauračné, alebo konferenčné využitie.
Popisovaný objekt je dom s pozdĺžnym nosným systémom. Murovaný z keramických tehál v pôvodnom stave.
Súčasťou prevádzkových priestorov je priestranná zastrešená terasa, samostatné parkovisko a 2 garáže.
Výhodou je, že obchodné priestory si môžete upraviť podľa vlastných predstáv.
Dispozične je nehnuteľnosť na ideálnom mieste mimo rušnej komunikácie mesta, ale zároveň pri vstupe do mesta.
Cena 1200,-€/mesiac je za celý objekt aj s vonkajšími priestormi.
|
| |||||||||||||||||||||||||||||||
Kontaktovať inzerenta e-mailom
Kontaktovať e-mailom môže iba overený užívateľ.
Overenie je zadarmo.
Vaše telefónne číslo *
Kontaktovať e-mailom môže iba overený užívateľ.
Overenie je zadarmo.
Vaše telefónne číslo *