Na predaj (prenájom) lukratívny komerčný priestor.
- [26.1. 2026]Zmazať/ Upraviť/ Topovať


















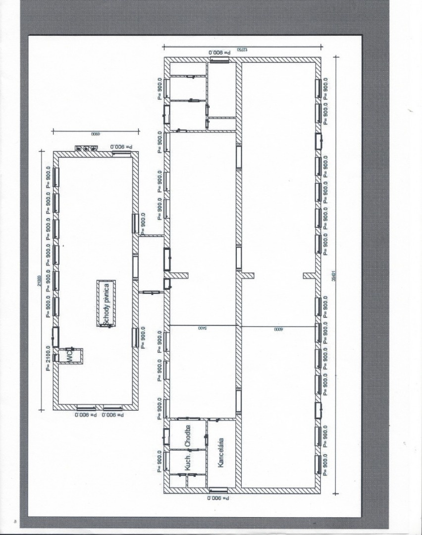
V meste Šahy, kúsok od centra ponúkame na predaj komerčný objekt, ktorý je čiastočne podpivničený. Zastavaná plocha a nádvoria 1 084 m2. Celková plocha pozemku 1 669 m2. Priestory sú dispozične členené na dve časti, ktoré sa využívali ako obchod nábytku.
Prevádzkový priestor je napojený na všetky IS s vlastnou plynovou kotolňou. Je dobre situovaný na rovnom pozemku s výbornou dostupnosťou po asfaltovej ceste z obidvoch strán. Po určitej stavebnej úprave je tu široká možnosť využitia objektu napr. ako: kancelársky, logistický, skladový, obchodný, ubytovací a bytový, na zriadenie ľahkej výroby, sociálny, školský (materská škola, detské jasle), zdravotnícky objekt, opatrovateľský, domov dôchodcov a pod.
V prílohe prikladáme pôdorys.
Cena: 244 000 eur + DPH.
Možnosť odpočtu DPH.
Prevádzkový priestor je napojený na všetky IS s vlastnou plynovou kotolňou. Je dobre situovaný na rovnom pozemku s výbornou dostupnosťou po asfaltovej ceste z obidvoch strán. Po určitej stavebnej úprave je tu široká možnosť využitia objektu napr. ako: kancelársky, logistický, skladový, obchodný, ubytovací a bytový, na zriadenie ľahkej výroby, sociálny, školský (materská škola, detské jasle), zdravotnícky objekt, opatrovateľský, domov dôchodcov a pod.
V prílohe prikladáme pôdorys.
Cena: 244 000 eur + DPH.
Možnosť odpočtu DPH.
|
| |||||||||||||||||||||||||||||||
Kontaktovať inzerenta e-mailom
Kontaktovať e-mailom môže iba overený užívateľ.
Overenie je zadarmo.
Vaše telefónne číslo *
Kontaktovať e-mailom môže iba overený užívateľ.
Overenie je zadarmo.
Vaše telefónne číslo *
Podobné inzeráty
NA PREDAJ: historická budova - obchodné priestory v centre m - [2.2. 2026]AstonReal Vám ponúka vo výhradnom zastúpení majiteľa na predaj exkluzívnu nehnuteľnosť, historickú budovu priamo v centre mesta Šahy. Jedná sa o veľkú multifunkčnú budovu po čiastočnej rekonštrukcii, so súčasnými funkčnými obchodnými priestormi s vlastnými výkladmi orientované do ulice a vstupom pri ...
235 000 €
Levice
936 01
936 01
34 x
Označiť zlý inzerát Chybnú kategóriu Ohodnotiť užívateľa Zmazať/Upraviť/Topovať
Multifunkčný objekt v Šahách za výhodnú cenu - [19.1. 2026]Multifunkčný objekt v Šahách za výhodnú cenu
Dkom s.r.o vam ponuka na predaj multifunkčný objekt v Šahách za výhodnú cenu .Podnikateľská budova, ktorá sa nachádza na frekventovanej mestskej časti na sídlisku sever. Celková rozloha vo výmere 337 m2, z čoho zastavaná plocha a nádvorie 294 m2. Aktuá ...
199 000 €
Levice
936 01
936 01
243 x
Označiť zlý inzerát Chybnú kategóriu Ohodnotiť užívateľa Zmazať/Upraviť/Topovať
Obchodný priestor Šahy na predaj - [12.1. 2026]Red Hill Real ponúka exkluzívne na predaj obchodný priestor v centre mesta Šahy vhodný na podnikanie. Budova prešla rozsiahlou rekonštrukciou, časť budovy je podpivničená a má samostatný zadný vchod ku skladovým priestorom. V zadnej časti budovy sú kancelárske priestory, technická miestnosť spolu so ...
199 000 €
Levice
936 01
936 01
279 x
Označiť zlý inzerát Chybnú kategóriu Ohodnotiť užívateľa Zmazať/Upraviť/Topovať
MOVEON exkluzívne ponúka výnimočnú investičnú nehnuteľnosť - [11.1. 2026]NEZABUDNITE si pozrieť VIDEOPREHLIADKU!
https://youtu.be/oyKz9QuKXSI
Vo výhradnom zastúpení majiteľa ponúkame na predaj investičnú nehnuteľnosť – polyfunkčnú budovu v katastri obce Parassapuszta v Maďarsku len pár metrov od slovensko-maďarských hraníc v Šahách.
Objekt skolaudovaný v roku 1998 dlh ...
299 900 €
Levice
936 01
936 01
456 x
Označiť zlý inzerát Chybnú kategóriu Ohodnotiť užívateľa Zmazať/Upraviť/Topovať
Predaj obchodný priestor - Šahy (N049-18-FRAD) - [8.1. 2026]N049-18-FRAD
Chceli by ste začať podnikať? Máme pre vás skvelú príležitosť!
Na predaj ponúkame bar s obchodnými priestormi v hraničnom meste Šahy (okres Levice).
Táto podnikateľská budova sa nachádza na frekventovanom sídlisku Sever a má úžitkovú plochu 294 m².
Postavená bola v r ...
222 000 €
Levice
936 01
936 01
330 x
Označiť zlý inzerát Chybnú kategóriu Ohodnotiť užívateľa Zmazať/Upraviť/Topovať
Nova cena Multifunkčný objekt v Šahách za výhodnú cenu - [25.12. 2025]Váš NOVÝ PRIESTOR na ŽIVOT či BIZNIS v Šahách! 337 m² Čaká na Váš
Už vás nebaví prenajímať? Chcete konečne vlastniť priestor, kde sa vaše nápady stanú realitou? Máme pre vás riešenie! Dkom s.r.o. vám prináša na predaj skutočne multifunkčný objekt priamo v pulzujúcom srdci sídliska Sever v Šahách. ...
199 000 €
Levice
936 01
936 01
649 x
Označiť zlý inzerát Chybnú kategóriu Ohodnotiť užívateľa Zmazať/Upraviť/Topovať
Na predaj kancelárske/ obchodne/ skladové priestory v Šahách - [23.12. 2025]Na prenájom/ predaj kancelárske/ obchodne/ skladové priestory v Šahách
Ponúkame vám na dlhodobý prenájom alebo predaj kancelárske priestory, skladové priestory v Šahách ideálne na podnikateľské účely. Rozloha pozemku 2967m2 cca 60x56m
Na pozemku sa nachádza hala 230m2, 1x Hala 459m2 1x plechov ...
250 000 €
Levice
936 01
936 01
740 x
Označiť zlý inzerát Chybnú kategóriu Ohodnotiť užívateľa Zmazať/Upraviť/Topovať
Multifunkčný objekt na predaj v Šahách za výhodnú cenu - [23.12. 2025]Multifunkčný objekt na predaj v Šahách za výhodnú cenu
Spoločnosť Dkom s.r.o. vám ponúka na predaj multifunkčný objekt v Šahách, nachádzajúci sa v rušnej mestskej časti na sídlisku Sever. Tento podnikateľský objekt s celkovou rozlohou 337 m², z toho 294 m² zastavaná plocha a nádvorie, je ideálny ...
199 000 €
Levice
936 01
936 01
444 x
Označiť zlý inzerát Chybnú kategóriu Ohodnotiť užívateľa Zmazať/Upraviť/Topovať