Nový Projekt.
- [20.1. 2026]Zmazať/ Upraviť/ Topovať


















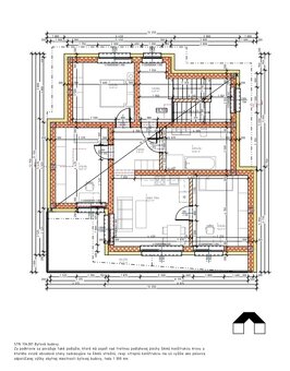
V exkluzívnom zastúpení majiteľa Vám ponúkam na predaj komplet hotový projekt s tromi bytvými jednotkami v obci Zubrohlava v blízkosti Oravskej Priehrady.Táto časť spadá pod okres Námestovo, kde pozemok na ktorom sa budú stavať byty je v územnom pláne a patrí do katastrálneho územia slanica.
Celkova výmera stavebného pozemku je 1466m².
Tiché miesto na bývanie s potenciálom nárastu na cene bytu. Prístupová cesta je spevnená asfaltová, komplet inžinierske siete, kanalizacia, obecný vodovod,internet.
Projekt novostavieb, bytových jednotiek ponuka dve parkovne miesta pre každý byt. V cene je zahrnutá výmena zmeny plánu strechy na rovnú.
Majiteľ sa rozhodol projekt s pozemkom, komplet so stavebným povoleným predať šikovnému developerovi. Veľmi vyhodnou kúpou projektu bytov je ich výstavba v krásnej tichej lokalite kúsok od Oravskej Priehrady na skok autom do mesta Námestovo, a v neposlednom rade nádherný výhľad na okolitú scenériu krásnej Oravy.
Cena:255.000€
Rozmery bytov:
- Byt 01 prízemie.
Obytna plocha:
Spálňa -9,18m²
Spálňa so šatníkom -12,06m²
Obývacia izba -22,82m²
Kuchyňa -13,18m2
Ostatné plochy: Kúpeľňa- 8,31m²
Chodba - 10,58m²
Spol. priestory: Chodba- 5,02m²
Technická miestnosť- 8,12m2
Celková výmera bytu- 89,27m²
- Byt 02 poschodie.
Obytna plocha:
Spálňa so šatníkom- 12,60m²
Spálňa - 9,99m²
Obývacia izba - 23,58m²
Kuchyňa - 14,91m²
Ostatné plochy: Kúpeľňa- 8,31m2
Chodba - 11,09m²
Spoločné priestory: - 15,12m²
Celkova výmera bytu: - 95,61m²
- Byt 03 podkrovie
Obytna plocha:
Spálňa so šatníkom- 13,49m²
Spálňa - 12,60m²
Obývacia izba - 13,61m²
Kuchyňa - 18,47m²
Ostatné plochy: Kúpeľňa- 9,92m²
Chodba - 6,83m²
Spoločné priestory: - 14,72m²
Celkova výmera bytu: - 89,64m²
Stavebnotechnické riešenie:
Základové konštrukcie: Prostý betón C 20/25 + betonárska výstuž.
Obvodové steny: Debniace tvárnice vystužené betonárskou oceľou a betónom C20/25.
Presné tvárnice,murované na maltu na tenké škáry s kontaktným
zatepľovacím systémom s tepelnou izoláciu na báze EPS/XPS alt.
minerálna vata
Nosné steny: Presné tvárnice, murované na maltu na tenké škáry
Deliace priečky: Presné tvárnice, murované na maltu na tenké škáry
Stropná konštrukcia: ŽB doska, SDK podhľad
Strecha: Drevený krov, sedlová strecha, sklon 30 stupňov, krytina plechová.
Zateplenie strechy: Tepelná izolácia MW hr. 200mm+180mm + parozábrana zo strany
interiéru
Okná: Plastový profil s prítlačným tesnením.
Zasklenie s tepelnoizolačným trojsklom, s celkovou priepustnosťou slnečného žiarenia.
Vonkajšie dvere: Hliníkové dvere zasklenie trojsklo, s bezpečnostným zámkom.
Po prípade môžte kontaktovať majiteľa na tel.č +4916366664343 alebo cez WhatsApp.
Celkova výmera stavebného pozemku je 1466m².
Tiché miesto na bývanie s potenciálom nárastu na cene bytu. Prístupová cesta je spevnená asfaltová, komplet inžinierske siete, kanalizacia, obecný vodovod,internet.
Projekt novostavieb, bytových jednotiek ponuka dve parkovne miesta pre každý byt. V cene je zahrnutá výmena zmeny plánu strechy na rovnú.
Majiteľ sa rozhodol projekt s pozemkom, komplet so stavebným povoleným predať šikovnému developerovi. Veľmi vyhodnou kúpou projektu bytov je ich výstavba v krásnej tichej lokalite kúsok od Oravskej Priehrady na skok autom do mesta Námestovo, a v neposlednom rade nádherný výhľad na okolitú scenériu krásnej Oravy.
Cena:255.000€
Rozmery bytov:
- Byt 01 prízemie.
Obytna plocha:
Spálňa -9,18m²
Spálňa so šatníkom -12,06m²
Obývacia izba -22,82m²
Kuchyňa -13,18m2
Ostatné plochy: Kúpeľňa- 8,31m²
Chodba - 10,58m²
Spol. priestory: Chodba- 5,02m²
Technická miestnosť- 8,12m2
Celková výmera bytu- 89,27m²
- Byt 02 poschodie.
Obytna plocha:
Spálňa so šatníkom- 12,60m²
Spálňa - 9,99m²
Obývacia izba - 23,58m²
Kuchyňa - 14,91m²
Ostatné plochy: Kúpeľňa- 8,31m2
Chodba - 11,09m²
Spoločné priestory: - 15,12m²
Celkova výmera bytu: - 95,61m²
- Byt 03 podkrovie
Obytna plocha:
Spálňa so šatníkom- 13,49m²
Spálňa - 12,60m²
Obývacia izba - 13,61m²
Kuchyňa - 18,47m²
Ostatné plochy: Kúpeľňa- 9,92m²
Chodba - 6,83m²
Spoločné priestory: - 14,72m²
Celkova výmera bytu: - 89,64m²
Stavebnotechnické riešenie:
Základové konštrukcie: Prostý betón C 20/25 + betonárska výstuž.
Obvodové steny: Debniace tvárnice vystužené betonárskou oceľou a betónom C20/25.
Presné tvárnice,murované na maltu na tenké škáry s kontaktným
zatepľovacím systémom s tepelnou izoláciu na báze EPS/XPS alt.
minerálna vata
Nosné steny: Presné tvárnice, murované na maltu na tenké škáry
Deliace priečky: Presné tvárnice, murované na maltu na tenké škáry
Stropná konštrukcia: ŽB doska, SDK podhľad
Strecha: Drevený krov, sedlová strecha, sklon 30 stupňov, krytina plechová.
Zateplenie strechy: Tepelná izolácia MW hr. 200mm+180mm + parozábrana zo strany
interiéru
Okná: Plastový profil s prítlačným tesnením.
Zasklenie s tepelnoizolačným trojsklom, s celkovou priepustnosťou slnečného žiarenia.
Vonkajšie dvere: Hliníkové dvere zasklenie trojsklo, s bezpečnostným zámkom.
Po prípade môžte kontaktovať majiteľa na tel.č +4916366664343 alebo cez WhatsApp.
|
| |||||||||||||||||||||||||||||||
Kontaktovať inzerenta e-mailom
Kontaktovať e-mailom môže iba overený užívateľ.
Overenie je zadarmo.
Vaše telefónne číslo *
Kontaktovať e-mailom môže iba overený užívateľ.
Overenie je zadarmo.
Vaše telefónne číslo *
Podobné inzeráty
Predam 3-izbovy byt NO - [20.1. 2026]Predam 3-izbovy byt 70m2 v Námestove na brehoch na Slnečnej. Byt sa nachazda na 1.poschodi zo šietich. Je prerobeny a predava sa kompletne zariadeny. Viac info po telefone volať po 19.00h.
157 000 €
Námestovo
029 01
029 01
316 x
Označiť zlý inzerát Chybnú kategóriu Ohodnotiť užívateľa Zmazať/Upraviť/Topovať
Chorvátsko-Moderný trojizbový apartmán s výhľadom na more - [18.1. 2026]Severná Dalmácia, Privlaka, Sabunike
LaHoREAL.eu ponúka na predaj skvelý moderný apartmán na druhom poschodí novostavby v Privlake – Sabunike.
Ide o modernú novostavbu. Apartmán ponúka čiastočný výhľad na more.
V budove sa nachádza celkovo 6 apartmánov.
Dispozícia izieb pozostáva z chodby, 2 ...
220 300 €
Námestovo
029 01
029 01
400 x
Označiť zlý inzerát Chybnú kategóriu Ohodnotiť užívateľa Zmazať/Upraviť/Topovať
3 izbovy byt na predaj - TOP - [21.1. 2026]Predám slnečný 3-izbovy byt na Slnečnej ulici v Námestove.
Byt je na 7 poschodí z 8. s krásnym výhľadom na Or. priehradu.
Rozloha bytu je 71m². K bytu prislúcha balkón + pivnica.
Byt je po čiastočnej rekonštrucii.
V blízkosti je škôlka, ZŠ, zdravotné stredisko, obchod.
Cena 160 000€, pri ...
V texte
Námestovo
029 01
029 01
1501 x
Označiť zlý inzerát Chybnú kategóriu Ohodnotiť užívateľa Zmazať/Upraviť/Topovať
Krásne byty na predaj len 5 minút od centra Námestova - [16.1. 2026]Typ: 3-izbový byt
Obec: Námestovo
194-4-MOV
Hľadáte pohodlné bývanie a neviete sa rozhodnúť medzi bytom či domom?
Ponúkame Vám výnimočné byty s jedinečným výhľadom, ktoré spĺňajú všetky výhody rodinného domu a bytu v jednom a to len 5 minút od centra Námestova.
Projekt novostavieb šiestich bytov ...
1 455 €
Námestovo
029 01
029 01
405 x
Označiť zlý inzerát Chybnú kategóriu Ohodnotiť užívateľa Zmazať/Upraviť/Topovať
Na predaj byt Námestovo (1-izbový byt Námestovo) - [16.1. 2026]1-izbový byt na predaj – Námestovo, výborná lokalita | RE/MAX
Realitná kancelária RE/MAX Vám EXKLUZÍVNE ponúka na predaj 1-izbový byt v Námestove – ide o jediný byt tohto typu aktuálne v ponuke. Byt sa nachádza v tichej a obľúbenej lokalite, ideálny na bývanie alebo ako investičný byt na Orave na ...
84 000 €
Námestovo
029 01
029 01
483 x
Označiť zlý inzerát Chybnú kategóriu Ohodnotiť užívateľa Zmazať/Upraviť/Topovať
Chorvátsko-Štýlový 3-izbový apartmán s výhľadom na more - [16.1. 2026]Severná Dalmácia, Novalja / Ostrov Pag
Na predaj trojizbový apartmán o celkovej výmere 50,60 m2 na prvom poschodí bytového domu nad centrom Novalje na ostrove Pag.
Apartmán pozostáva z chodby, obývacej izby s kuchyňou, 2 spální, kúpeľne s WC a terasy s výhľadom na more. Je klimatizovaný a štýl ...
179 000 €
Námestovo
029 01
029 01
314 x
Označiť zlý inzerát Chybnú kategóriu Ohodnotiť užívateľa Zmazať/Upraviť/Topovať
3-izbový byt, Námestovo – Slnečná ulica, lokalita Brehy - TOP - [21.1. 2026]Ponúkam na predaj 3-izbový byt v obľúbenej a vyhľadávanej lokalite Námestovo – Brehy, Slnečná ulica. Byt sa nachádza na 1. poschodí zatepleného bytového domu a je vhodný na okamžité bývanie alebo ako investícia.
Základné informácie:
-Výmera bytu: 60 m²
-Dispozícia: 3 izby
-Poschodie: 1. poscho ...
145 000 €
Námestovo
029 01
029 01
956 x
Označiť zlý inzerát Chybnú kategóriu Ohodnotiť užívateľa Zmazať/Upraviť/Topovať
3-izb. apartmán na prízemí novostavby so záhradou,Chorvátsko - [13.1. 2026]Severná Dalmácia, Novalja / Ostrov Pag
Na predaj je trojizbový apartmán (S1) s celkovou rozlohou 74,68 m2 na prízemí modernej novostavby v Novalji.
Skladá sa z chodby, kúpeľne s WC, 2 spální, obývačky a kuchyne, ako aj veľkej, krytej terasy (18,11 m2) a veľkého dvora o výmere 97,75 m2.
Podl ...
257 700 €
Námestovo
029 01
029 01
376 x
Označiť zlý inzerát Chybnú kategóriu Ohodnotiť užívateľa Zmazať/Upraviť/Topovať
3-izbový apartmán v novostavbe s výhľadom na more,Chorvátsko - [13.1. 2026]Severná Dalmácia, Novalja / Ostrov Pag
Na predaj je trojizbový apartmán (A3) s celkovou rozlohou 74,77 m2 na druhom poschodí novostavby v Novalji.
Skladá sa z chodby, kúpeľne s WC, WC, 2 spální, obývačky a kuchyne a veľkej, krytej terasy (17,65 m2).
Podlahové kúrenie, klimatizácia.
K bytu ...
258 000 €
Námestovo
029 01
029 01
280 x
Označiť zlý inzerát Chybnú kategóriu Ohodnotiť užívateľa Zmazať/Upraviť/Topovať
Chorvátsko-Krásný trojizbový apartmán s výhľadom na more - [11.1. 2026]LaHoREAL.eu ponúka na predaj je trojizbový, dvojposchodový apartmán (S8) s dvoma terasami, 2 parkovacími miestami a čiastočným výhľadom na more a celú Novalju.
Nachádza sa na 2. poschodí a v podkroví a jeho úžitková plocha je 68,80 m2.
Na 2. poschodí sa nachádza vstupná časť, obývacia izba s kuc ...
199 000 €
Námestovo
029 01
029 01
502 x
Označiť zlý inzerát Chybnú kategóriu Ohodnotiť užívateľa Zmazať/Upraviť/Topovať