Rodinný dom - vila
- [20.1. 2026]Zmazať/ Upraviť/ Topovať






















Na predaj ponúkame priestranný rodinný dom/vilu v pokojnej časti Zlatých Moraviec 20 minút od Nitry, ideálnu pre rodinu alebo pre tých, ktorí hľadajú veľkorysý obytný priestor s neobmedzenými možnosťami. Dom ponúka nadštandardnú dispozíciu, veľkú svetlú mramorovú halu, zimnú záhradu, dva krby a kompletne podpivničené podlažie so samostatnými funkčnými priestormi.
Nehnuteľnosť postupne prechádzala drobnými rekonštrukciami, zachováva si však pôvodný charakter a kvalitné materiály vrátane drevených dvojokien.
Pozemok je rovinatý, udržiavaný, so skleníkmi a množstvom priestoru na oddych aj pestovanie.
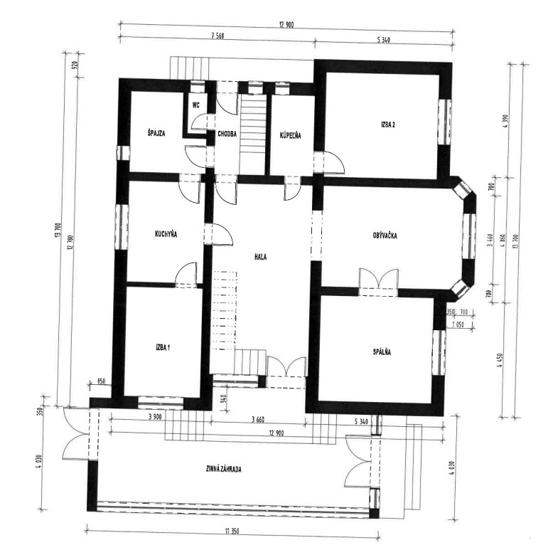
Výmera a dispozícia nehnuteľnosti:
Dom ponúka nadštandardnú rozlohu až 290 m² nadzemných obytných priestorov a ďalších 170 m² kvalitne využiteľných pivničných priestorov. Celková zastavaná plocha domu je 460 m², plus priestranná zimná záhrada o výmere 46 m², ktorá je celoročne využiteľná.
Dispozičné riešenie:
1. NP:
*priestranná mramorová hala s otvoreným schodiskom do 2 NP
*obývačka
*spálňa 3x
*kúpeľňa so sprchovým kútom
*kuchyňa
*špajza
*chodba so schodiskom do 1. PP
*samostatné WC
2. NP:
*hala
*spálňa 4x
*izba - priechodná pre dve spálne
*obývačka s výstupom na balkón
*sklad
*kúpeľňa s vaňou a toaletou
1. PP (kompletne podpivničené):
*priestor so schodiskom
*práčovňa
*kuchyňa
*vináreň/spoločenská miestnosť
*hala s krbom
*kotolňa
*garáž s elektrickou bránou
Exteriér:
*9 árový pozemok
*predzáhradka
*záhrada so skleníkmi
*zimná záhrada
*možnosť parkovania aj mimo garáže
Dodatočné informácie:
* dom disponuje vlastnou studňou
* v pešej blízkosti domu sa nachádzajú stredné školy, mestský úrad, potraviny a autobusové zastávky.
* vhodné aj na viacgeneračné bývanie
* mramorová hala - biely taliansky mramor
* k dispozícii je aj znalecký posudok z roku 2025 vo výške 365.000 € akceptovateľný bankou v prípade využitia hypotekárneho financovania kúpy
Nehnuteľnosť postupne prechádzala drobnými rekonštrukciami, zachováva si však pôvodný charakter a kvalitné materiály vrátane drevených dvojokien.
Pozemok je rovinatý, udržiavaný, so skleníkmi a množstvom priestoru na oddych aj pestovanie.
Výmera a dispozícia nehnuteľnosti:
Dom ponúka nadštandardnú rozlohu až 290 m² nadzemných obytných priestorov a ďalších 170 m² kvalitne využiteľných pivničných priestorov. Celková zastavaná plocha domu je 460 m², plus priestranná zimná záhrada o výmere 46 m², ktorá je celoročne využiteľná.
Dispozičné riešenie:
1. NP:
*priestranná mramorová hala s otvoreným schodiskom do 2 NP
*obývačka
*spálňa 3x
*kúpeľňa so sprchovým kútom
*kuchyňa
*špajza
*chodba so schodiskom do 1. PP
*samostatné WC
2. NP:
*hala
*spálňa 4x
*izba - priechodná pre dve spálne
*obývačka s výstupom na balkón
*sklad
*kúpeľňa s vaňou a toaletou
1. PP (kompletne podpivničené):
*priestor so schodiskom
*práčovňa
*kuchyňa
*vináreň/spoločenská miestnosť
*hala s krbom
*kotolňa
*garáž s elektrickou bránou
Exteriér:
*9 árový pozemok
*predzáhradka
*záhrada so skleníkmi
*zimná záhrada
*možnosť parkovania aj mimo garáže
Dodatočné informácie:
* dom disponuje vlastnou studňou
* v pešej blízkosti domu sa nachádzajú stredné školy, mestský úrad, potraviny a autobusové zastávky.
* vhodné aj na viacgeneračné bývanie
* mramorová hala - biely taliansky mramor
* k dispozícii je aj znalecký posudok z roku 2025 vo výške 365.000 € akceptovateľný bankou v prípade využitia hypotekárneho financovania kúpy
|
| |||||||||||||||||||||||||||||||
Kontaktovať inzerenta e-mailom
Kontaktovať e-mailom môže iba overený užívateľ.
Overenie je zadarmo.
Vaše telefónne číslo *
Kontaktovať e-mailom môže iba overený užívateľ.
Overenie je zadarmo.
Vaše telefónne číslo *

