Na predaj 4 izbový rodinný dom v Dolnom Bare
- [20.1. 2026]Zmazať/ Upraviť/ Topovať










Typ: Rodinný dom
Obec: Dolný Bar
Realitná kancelária REALITYFREE ponúka na predaj moderný 4-izbový rodinný dom – novostavbu v pokojnej lokalite Dolný Bar, len 5 km od Dunajskej Stredy (cca 6 minút autom). Dom sa nachádza v extraviláne obce s prístupom z miestnej komunikácie.
ZÁKLADNÉ INFORMÁCIE
Lokalita: Dolný Bar
Vzdialenosť od DS: 5 km / 6 min autom
Typ: samostatne stojaci rodinný dom
Stav: novostavba
Úžitková plocha: 100,79 m²
Zastavaná plocha: 116,3 m²
Pozemok: 389 m²
KONŠTRUKČNÉ RIEŠENIE
Jednopodlažný rodinný dom je navrhnutý bez stropnej konštrukcie, s valbovou strechou. Stavba je realizovaná z kvalitných keramických tvárnic TERMO BRIK s dôrazom na energetickú efektívnosť.
Obvodové murivo: hr. 250 mm
Zateplenie: 200 mm EPS
Vnútorné priečky: hr. 130 mm
Strecha: drevené priehradové väzníky
Okná a vchodové dvere: plastové 3- sklo, exteriér antracit / interiér biela
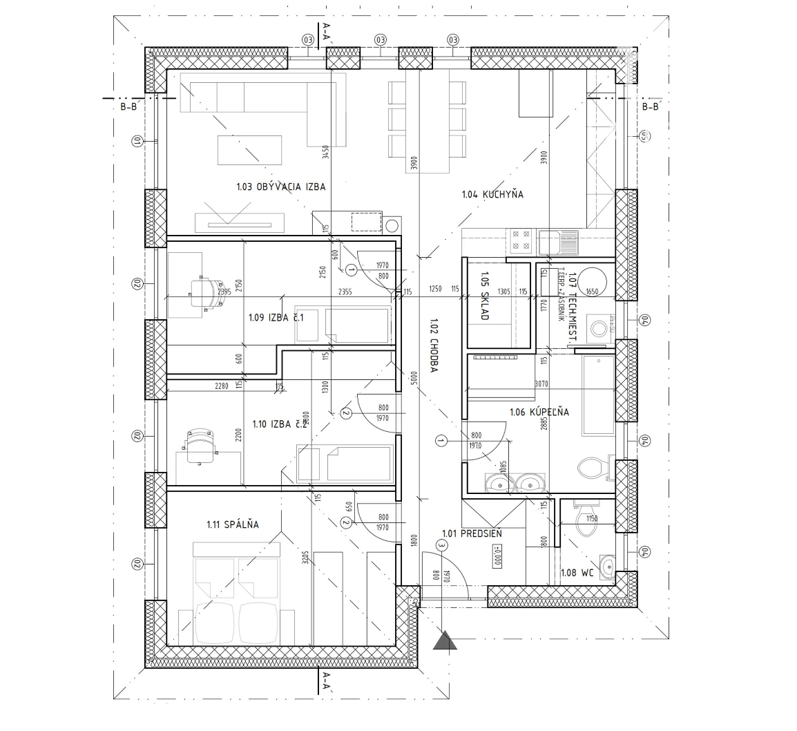
DISPOZÍCIA:
Predsieň a zádverie (5,7 m²)
Chodba (6,25 m²)
Obývacia izba (16,78 m²) prepojená s kuchyňou (17,29 m²)
Tri samostatné izby (15,22 m², 11,82 m² a 11,58 m²)
Kúpeľňa (8,85 m²) a samostatné WC (2,07 m²)
Technická miestnosť a sklad (2,92 m² a 2,31 m²)
VYBAVENIE A TECHNICKÝ ŠTANDARD
Tepelné čerpadlo (dodávka + montáž) v cene
Predpríprava na vonkajšie žalúzie (kastlíky)
Vnútorné vápenno-sadrové omietky BAUMIT
Fasáda s povrchovou úpravou BAUMIT SILIKAT TOP
Kvalitná skladba podláh spĺňajúca tepelnoizolačné požiadavky
Teplovodné podlahové kúrenie
CENA A VARIANTY DOKONČENIA
Dom je možné kúpiť v dvoch variantoch:
🔹 HOLODOM – 184 880 €
Bez interiérových dverí a zárubní
Bez podláh, obkladov a dlažieb
Tepelné čerpadlo v cene
Predpríprava na vonkajšie žalúzie
🔹 ŠTANDARD – 194 880 €
Interiérové dvere a zárubne
Podlahy v obytných miestnostiach
Obklady a dlažby
Tepelné čerpadlo v cene
Predpríprava na vonkajšie žalúzie
LOKALITA
Dolný Bar ponúka pokojné bývanie v blízkosti prírody s výbornou dostupnosťou do Dunajskej Stredy, kde sa nachádza kompletná občianska vybavenosť – školy, škôlky, obchody, zdravotnícke zariadenia a služby.
Obec Dolný Bar disponuje základnou občianskou vybavenosťou- pošta, obchod Coop Jednota, lekár, škola a škôlka, reštaurácia, železničná stanica, v blízkosti je detské ihrisko a psí park.
Ceny sú vrátane realitného a právnického servisu.
Status: aktívne
Vlastníctvo: osobné
Plocha pozemku: 326 m2
Typ zeme: rovina
Teritórium: Extravilán
Šírka pozemku: 18 m
Dĺžka pozemku: 18 m
Úžitková plocha: 100.97 m2
Zastavaná plocha: 116.3 m2
Stav: novostavba
Počet izieb: 4
Typ budovy: tehla
Typ výbavy: holopriestor
Špajza: áno
Rok výstavby: 2026
Inžinierske siete: áno
Voda: áno
Elektrika: áno
Kanalizácia: áno
Voda - na pozemku: áno
Elektrika - na pozemku: áno
Kanalizácia - na pozemku - kanalizácia: áno
Internet: áno
Obec: Dolný Bar
Realitná kancelária REALITYFREE ponúka na predaj moderný 4-izbový rodinný dom – novostavbu v pokojnej lokalite Dolný Bar, len 5 km od Dunajskej Stredy (cca 6 minút autom). Dom sa nachádza v extraviláne obce s prístupom z miestnej komunikácie.
ZÁKLADNÉ INFORMÁCIE
Lokalita: Dolný Bar
Vzdialenosť od DS: 5 km / 6 min autom
Typ: samostatne stojaci rodinný dom
Stav: novostavba
Úžitková plocha: 100,79 m²
Zastavaná plocha: 116,3 m²
Pozemok: 389 m²
KONŠTRUKČNÉ RIEŠENIE
Jednopodlažný rodinný dom je navrhnutý bez stropnej konštrukcie, s valbovou strechou. Stavba je realizovaná z kvalitných keramických tvárnic TERMO BRIK s dôrazom na energetickú efektívnosť.
Obvodové murivo: hr. 250 mm
Zateplenie: 200 mm EPS
Vnútorné priečky: hr. 130 mm
Strecha: drevené priehradové väzníky
Okná a vchodové dvere: plastové 3- sklo, exteriér antracit / interiér biela
DISPOZÍCIA:
Predsieň a zádverie (5,7 m²)
Chodba (6,25 m²)
Obývacia izba (16,78 m²) prepojená s kuchyňou (17,29 m²)
Tri samostatné izby (15,22 m², 11,82 m² a 11,58 m²)
Kúpeľňa (8,85 m²) a samostatné WC (2,07 m²)
Technická miestnosť a sklad (2,92 m² a 2,31 m²)
VYBAVENIE A TECHNICKÝ ŠTANDARD
Tepelné čerpadlo (dodávka + montáž) v cene
Predpríprava na vonkajšie žalúzie (kastlíky)
Vnútorné vápenno-sadrové omietky BAUMIT
Fasáda s povrchovou úpravou BAUMIT SILIKAT TOP
Kvalitná skladba podláh spĺňajúca tepelnoizolačné požiadavky
Teplovodné podlahové kúrenie
CENA A VARIANTY DOKONČENIA
Dom je možné kúpiť v dvoch variantoch:
🔹 HOLODOM – 184 880 €
Bez interiérových dverí a zárubní
Bez podláh, obkladov a dlažieb
Tepelné čerpadlo v cene
Predpríprava na vonkajšie žalúzie
🔹 ŠTANDARD – 194 880 €
Interiérové dvere a zárubne
Podlahy v obytných miestnostiach
Obklady a dlažby
Tepelné čerpadlo v cene
Predpríprava na vonkajšie žalúzie
LOKALITA
Dolný Bar ponúka pokojné bývanie v blízkosti prírody s výbornou dostupnosťou do Dunajskej Stredy, kde sa nachádza kompletná občianska vybavenosť – školy, škôlky, obchody, zdravotnícke zariadenia a služby.
Obec Dolný Bar disponuje základnou občianskou vybavenosťou- pošta, obchod Coop Jednota, lekár, škola a škôlka, reštaurácia, železničná stanica, v blízkosti je detské ihrisko a psí park.
Ceny sú vrátane realitného a právnického servisu.
Status: aktívne
Vlastníctvo: osobné
Plocha pozemku: 326 m2
Typ zeme: rovina
Teritórium: Extravilán
Šírka pozemku: 18 m
Dĺžka pozemku: 18 m
Úžitková plocha: 100.97 m2
Zastavaná plocha: 116.3 m2
Stav: novostavba
Počet izieb: 4
Typ budovy: tehla
Typ výbavy: holopriestor
Špajza: áno
Rok výstavby: 2026
Inžinierske siete: áno
Voda: áno
Elektrika: áno
Kanalizácia: áno
Voda - na pozemku: áno
Elektrika - na pozemku: áno
Kanalizácia - na pozemku - kanalizácia: áno
Internet: áno
|
| |||||||||||||||||||||||||||||||
Kontaktovať inzerenta e-mailom
Kontaktovať e-mailom môže iba overený užívateľ.
Overenie je zadarmo.
Vaše telefónne číslo *
Kontaktovať e-mailom môže iba overený užívateľ.
Overenie je zadarmo.
Vaše telefónne číslo *
Podobné inzeráty
Starší dom s veľkým pozemkom pri LESÍKU, Dolný Bar - [24.2. 2026]NOVINKA! LEN U NÁS!
Ponúkame Vám na predaj starší, rodinný dom s veľkým pozemkom s rozlohou 4136 m2 PRI LESÍKU, v obci Dolný Bar.
Obec Dolný Bar (v okrese Dunajská Streda, Trnavský kraj – juhovýchodná časť Žitného ostrova) je vzdialená od Bratislavy približne 48 km a od Dunajskej Stredy 6 km.
Neh ...
155 000 €
Dunajská Streda
930 14
930 14
37 x
Označiť zlý inzerát Chybnú kategóriu Ohodnotiť užívateľa Zmazať/Upraviť/Topovať
IV.ETAPA-Reality KOMPLEX s.r.o. Vám ponúka na PREDAJ 3 izbov - [16.2. 2026]Typ: Rodinný dom
Ulica: Dolný Bar
Obec: Dolný Bar
Reality KOMPLEX s.r.o. Vám ponúka na PREDAJ 3 izbové nízkoenergetické NOVOSTAVBY v DOLNOM BARE!
Začína sa IV.ETAPA výstavby rodinných domov na jeseň 2023. (k dispozícií bude 39 RD!!!)
Dolný Bar je malá obec na južnom Slovensku v strednej časti ...
185 000 €
Dunajská Streda
930 14
930 14
118 x
Označiť zlý inzerát Chybnú kategóriu Ohodnotiť užívateľa Zmazať/Upraviť/Topovať
IV.ETAPA - Reality KOMPLEX s.r.o. Vám ponúka na PREDAJ 4 izb - [16.2. 2026]Typ: Rodinný dom
Ulica: Dolný Bar
Obec: Dolný Bar
Reality KOMPLEX s.r.o. Vám ponúka na PREDAJ 4 izbové nízkoenergetické NOVOSTAVBY v DOLNOM BARE!
Začína sa IV.ETAPA výstavby rodinných domov na jeseň 2023. (k dispozícií bude 39 RD!!!)
Dolný Bar je malá obec na južnom Slovensku v strednej časti ...
200 000 €
Dunajská Streda
930 14
930 14
93 x
Označiť zlý inzerát Chybnú kategóriu Ohodnotiť užívateľa Zmazať/Upraviť/Topovať
Reality KOMPLEX s.r.o. Vám ponúka na PREDAJ kompletne zrekon - [16.2. 2026]Typ: Rodinný dom
Ulica: Dolný Bar
Obec: Dolný Bar
Reality KOMPLEX s.r.o. Vám ponúka na PREDAJ pekný, kompletne zrekonštruovaný 4 izbový rodinný dom v Dolnom Bare!
Dolný Bar je malá obec na južnom Slovensku v strednej časti Žitného ostrova. Obec leží na hlavnom ťahu z Bratislavy do Ko ...
198 000 €
Dunajská Streda
930 14
930 14
87 x
Označiť zlý inzerát Chybnú kategóriu Ohodnotiť užívateľa Zmazať/Upraviť/Topovať
Starší dom s pozemkom 4136 m2 pri lesíku, Dolný Bar - [12.2. 2026]NOVINKA! LEN U NÁS!
Ponúkame Vám na predaj starší, rodinný dom s veľkým pozemkom s rozlohou 4136 m2 PRI LESÍKU, v obci Dolný Bar.
Obec Dolný Bar (v okrese Dunajská Streda, Trnavský kraj – juhovýchodná časť Žitného ostrova) je vzdialená od Bratislavy približne 48 km a od Dunajskej Stredy 6 km.
Neh ...
155 000 €
Dunajská Streda
930 14
930 14
482 x
Označiť zlý inzerát Chybnú kategóriu Ohodnotiť užívateľa Zmazať/Upraviť/Topovať
Nový 3 izbový byt, ktorý sa "správa" ako dom - [9.2. 2026]ČASOVO OBMEDZENÁ PONUKA!!!
Realitná kancelária A-Nehnuteľnosti ponúka na predaj priestranný 3-izbový byt s charakterom rodinného domu.
Ponúkame na predaj úplne nový, nikdy neobývaný 3-izbový byt o výmere 93 m², nachádzajúci sa v novostavbe.
Byt je riešený tak, aby poskytoval súkromie a komfor ...
170 000 €
Dunajská Streda
930 14
930 14
152 x
Označiť zlý inzerát Chybnú kategóriu Ohodnotiť užívateľa Zmazať/Upraviť/Topovať
Na predaj: 3-izbový BUNGALOV 82 m² na veľkorysom pozemku 144 - [8.2. 2026]Ponúkam na predaj samostatne stojaci 3-izbový bungalov v tichej a bezpečnej obci Mad, len 6 km od Dunajskej Stredy. Tento dom je ideálnou voľbou pre niekoho, kto hľadá poctivú stavbu s nízkymi prevádzkovými nákladmi a veľkým pozemkom pre súkromie, záhradkárčenie alebo s investičným potenciálom.
...
196 999 €
Dunajská Streda
930 14
930 14
512 x
Označiť zlý inzerát Chybnú kategóriu Ohodnotiť užívateľa Zmazať/Upraviť/Topovať
Krásne 4 izbové rodinné domy v Dolnom Bare - [5.2. 2026]Ponúkame Vám 2 typy priestranného 4 izbového rodinného domu v skvelej lokalite v obci Dolný Bar!
Lokalita sa nachádza na výjazde z obce smerom na obec MAD po pravej strane!
Domy ktoré vidite na foto sú vzorové ktoré si vieme spolu pozrieť aby ste mali lepšiu predstavu o vašom budúcom bývaní !
...
185 000 €
Dunajská Streda
930 14
930 14
564 x
Označiť zlý inzerát Chybnú kategóriu Ohodnotiť užívateľa Zmazať/Upraviť/Topovať
BOSEN | Moderný 4-izbový dom v holodome, Dolný Bar - [22.1. 2026]Typ: Rodinný dom
Ulica: Nová štvrť
Obec: Dolný Bar
Bosen Group Vám ponúka na predaj rozostavaný 4-izbový rodinný dom v obci Dolný Bar, situovaný v novovybudovanej modernej štvrti.
Nehnuteľnosť bude dokončená v lete 2026 a predáva sa v stave holodom s možnosťou dokončenia do štandardu. Projekt j ...
223 000 €
Dunajská Streda
930 14
930 14
187 x
Označiť zlý inzerát Chybnú kategóriu Ohodnotiť užívateľa Zmazať/Upraviť/Topovať
4. ETAPA MODERNÁ NOVOSTAVBA - 3 izbový nízkoenergetický b - [9.1. 2026]Realitná kancelária A-W Real Vám ponúka 3-izbový rodinný dom s garážou (nízkoenergetická novostavba s nadštandardným vybavením) v novej štvrti obce Dolný Bar.
Ide o moderný prízemný rodinný dom na kľúč, väčšej veľkostnej kategórie, už pripravený na bývanie, kompletne dokončený, vrátane úprav pozemk ...
210 000 €
Dunajská Streda
930 14
930 14
663 x
Označiť zlý inzerát Chybnú kategóriu Ohodnotiť užívateľa Zmazať/Upraviť/Topovať