ZNÍŽENÁ CENA Rodinný dom - holodom - Šurany (Argentína)
- [16.1. 2026]Zmazať/ Upraviť/ Topovať



























Ponúkam na predaj novostavbu 4 izbového rodinného domu na Novozámockej ulici v Šuranoch. Som MAJITEĽ. REALITKY NEVOLAŤ!!!
VHODNÉ AJ AKO INVESTÍCIA, MOŽNOSŤ DAŤ DOM DO PRENÁJMU, 3 SAMOSTATNÉ IZBY.
NA ÚPLNÉ DOKONČENIE PODĽA SVOJEJ POTREBY POTREBUJETE LEN 50tis EURO.
DOM SA PREDÁVA V STAVE AKO HO VIDÍTE NA FOTKÁCH.
Dispozícia RD: 3 samostatné izby, obývacia izba s jedálnou, kuchyňa, zádverie, technická miestnosť, 1x samostatné WC, 1x kúpeľňa, 1x kúpeľňa s WC, špajza, chodba, terasa prístupná z obývacej izby, kuchyne a detskej izby
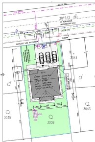
Plocha pozemku: 674m2
Zastavaná plocha: 144m2
Podlahová plocha: 121m2
Prípojky: elektrika (230/400V), voda, kanalizácia
Steny: Leierplan 30cm (obvodové), Leierplan 25cm (vnútorné nosné steny), Leierplan 11,5cm (priečky)
Okná a vstupné dvere: Slovaktual Pasiv HL (antracit/biela) 6-komorový plastový profil, zasklenie 3sklo, HST portál + vnútorné plastové parapety
Komín: Schiedel priemer 200mm – príprava na krb
Stropná konštrukcia: drevené hranoly, pochôdzna povala, strop zateplený minerálnou vatou hrúbky 40cm, zo strany interiéru je podhľad celoplošne zaklopená OSB doskami, zrealizovaná reflexná AL parozábrana
Strešná konštrukcia: klasický krov s drevenou viazanou konštrukciou, strešná krytina Danubia Inova antracit
Odkvapový systém: (žľaby, zvody) Bramac, dažďová voda je zvedená do zrealizovanej vsakovacej galérie s objemom 10m3
Vodorovná a zvislá hydroizolácia proti zemnej vlhkosti. Bleskozvod.
Oplotenie: nový betónový panelový plot výšky 2m (pravá a zadná strana), pôvodný plot (predná strana), pletivo (ľavá strana).
DOM SA PREDÁVA V STAVE AKO HO VIDÍTE NA FOTKÁCH.
Možnosť upraviť si kuchynskú linku, zásuvky, polohu WC, vane atď podľa seba. Odhadovaná cena na dokončenie do štandardu je 60tis euro.
CENA HOLODOMU: 150000 €
VHODNÉ AJ AKO INVESTÍCIA, MOŽNOSŤ DAŤ DOM DO PRENÁJMU, 3 SAMOSTATNÉ IZBY.
NA ÚPLNÉ DOKONČENIE PODĽA SVOJEJ POTREBY POTREBUJETE LEN 50tis EURO.
DOM SA PREDÁVA V STAVE AKO HO VIDÍTE NA FOTKÁCH.
Dispozícia RD: 3 samostatné izby, obývacia izba s jedálnou, kuchyňa, zádverie, technická miestnosť, 1x samostatné WC, 1x kúpeľňa, 1x kúpeľňa s WC, špajza, chodba, terasa prístupná z obývacej izby, kuchyne a detskej izby
Plocha pozemku: 674m2
Zastavaná plocha: 144m2
Podlahová plocha: 121m2
Prípojky: elektrika (230/400V), voda, kanalizácia
Steny: Leierplan 30cm (obvodové), Leierplan 25cm (vnútorné nosné steny), Leierplan 11,5cm (priečky)
Okná a vstupné dvere: Slovaktual Pasiv HL (antracit/biela) 6-komorový plastový profil, zasklenie 3sklo, HST portál + vnútorné plastové parapety
Komín: Schiedel priemer 200mm – príprava na krb
Stropná konštrukcia: drevené hranoly, pochôdzna povala, strop zateplený minerálnou vatou hrúbky 40cm, zo strany interiéru je podhľad celoplošne zaklopená OSB doskami, zrealizovaná reflexná AL parozábrana
Strešná konštrukcia: klasický krov s drevenou viazanou konštrukciou, strešná krytina Danubia Inova antracit
Odkvapový systém: (žľaby, zvody) Bramac, dažďová voda je zvedená do zrealizovanej vsakovacej galérie s objemom 10m3
Vodorovná a zvislá hydroizolácia proti zemnej vlhkosti. Bleskozvod.
Oplotenie: nový betónový panelový plot výšky 2m (pravá a zadná strana), pôvodný plot (predná strana), pletivo (ľavá strana).
DOM SA PREDÁVA V STAVE AKO HO VIDÍTE NA FOTKÁCH.
Možnosť upraviť si kuchynskú linku, zásuvky, polohu WC, vane atď podľa seba. Odhadovaná cena na dokončenie do štandardu je 60tis euro.
CENA HOLODOMU: 150000 €
|
| |||||||||||||||||||||||||||||||
Kontaktovať inzerenta e-mailom
Kontaktovať e-mailom môže iba overený užívateľ.
Overenie je zadarmo.
Vaše telefónne číslo *
Kontaktovať e-mailom môže iba overený užívateľ.
Overenie je zadarmo.
Vaše telefónne číslo *
Podobné inzeráty
Na predaj zrekonštruovaný 3-izbový rodinný dom v tichej loka - [18.1. 2026]Reality na kľúč Vám ponúka na predaj zrekonštruovaný 3-izbový rodinný dom v tichej lokalite v meste Šurany okres Nové Zámky.
Zastavaná plocha domu je 110m2. Dom bol postavený v roku 1958. Postavený je z tehly a zateplený polystyrénom hrúbky 10cm. Vonkajšia aj vnútorná rekonštrukcia domu bola vyko ...
215 000 €
Nové Zámky
942 01
942 01
234 x
Označiť zlý inzerát Chybnú kategóriu Ohodnotiť užívateľa Zmazať/Upraviť/Topovať
Na predaj rodinný dom - Šurany (holodom - 112m2) - [16.1. 2026]Realitná kancelária DualReal, s.r.o. Vám ponúka na predaj rodinný dom v tichej a vyhľadávanej časti Šurian – Kostolný Sek. Lokalita ponúka kombináciu vidieckeho pokoja a výhod mestského bývania. Všetka občianska vybavenosť je na dosah, no zároveň ste v blízkosti prírody. Skutočným benefitom je rekre ...
160 900 €
Nové Zámky
942 01
942 01
50 x
Označiť zlý inzerát Chybnú kategóriu Ohodnotiť užívateľa Zmazať/Upraviť/Topovať
Predám 2 izb. RD v Šuranoch - [16.1. 2026]V Šuranoch predám samostatne stojaci RD s pozemkom. Dom má dve izby, kuchyňu, kúpeľňu, WC a chodbu. Pri dome sa nachádza letná kuchyňa s dvoma miestnosťami. Dom je postavený z tehál. Dom má väznicový krov, strešnú krytinu tvorí škridla. Okná a vstupné dvere do domu sú plastové. V kuchyni sa nachádza ...
89 900 €
Nové Zámky
942 01
942 01
544 x
Označiť zlý inzerát Chybnú kategóriu Ohodnotiť užívateľa Zmazať/Upraviť/Topovať
PREDAJ 4 – izbový átriový rodinný dom v meste Šurany. - [15.1. 2026]Vaše bývanie s reality PreFiDom.
PREDAJ 4 – izbový átriový rodinný dom v meste Šurany. Výmera pozemku je 2200m2. RD bol postavený z kvádru a bol daný do užívania v roku 1980. V dome sa nachádzajú 3 x izba, kúpeľňa, WC, veľká hala, špajza. Celý dom je podpivničený, kde sa nachádza kotol na pevné p ...
132 000 €
Nové Zámky
942 01
942 01
255 x
Označiť zlý inzerát Chybnú kategóriu Ohodnotiť užívateľa Zmazať/Upraviť/Topovať
Rodinný dom s 20 árovým pozemkom na polosamote pri Šuranoc - [14.1. 2026]Na predaj ponúkame rodinný dom nachádzajúci sa na polosamote, len 5 km od mesta Šurany.
Dom stojí na konci tichej ulice, čo zaručuje maximálne súkromie a pokojné bývanie v krásnom prírodnom prostredí. Súčasťou nehnuteľnosti je priestranný, upravený pozemok s rozlohou 2 217 m², na ktorom sa nachádz ...
175 000 €
Nové Zámky
942 01
942 01
377 x
Označiť zlý inzerát Chybnú kategóriu Ohodnotiť užívateľa Zmazať/Upraviť/Topovať
Na predaj : útulný 3a pol izbový dom , Šurany , bezbarierový - [13.1. 2026]Ponúkame na predaj rodinný dom v meste Šurany . Dispozičné riešenie je nasledovné : vstupná chodba , kuchyňa , tri izby , + jedna menšia prechodná , kúpeľňa s vaňou sprchovým kútom a WC , špajza s pivničkou na zeleninu . V kuchyni zostáva linka , sporák a odsávač pár . V dome prebehla rozsiahla reko ...
138 000 €
Nové Zámky
942 01
942 01
57 x
Označiť zlý inzerát Chybnú kategóriu Ohodnotiť užívateľa Zmazať/Upraviť/Topovať
ZNÍŽENÁ CENA Predám 3-izbový rodinný dom Šurany - [13.1. 2026]Ponúkame Vám na predaj kompletne prerobený 3- izbový rodinný dom v meste Šurany.
Plocha: úžitková 100m2, zastavaná 120m2, pozemku 651m2. Dom bol postavený z tehly v 60 rokoch.
Dispozičné riešenie: predsieň, kuchyňa prepojená s obývacou izbou, dve ďalšie izby, technická miestnosť, kúpeľňa s toaletou ...
215 000 €
Nové Zámky
942 01
942 01
351 x
Označiť zlý inzerát Chybnú kategóriu Ohodnotiť užívateľa Zmazať/Upraviť/Topovať
Na predaj 4-izbová novostavba s garážou Šurany - [13.1. 2026]Ponúkame Vám na predaj poschodový 4-izbový rodinný dom s garážou v radovej výstavbe v meste Šurany, Kostolný Sek.
Projekt ponúka na predaj dvojpodlažné rodinné domy postavené na kľúč ,vrátane pozemku, ktoré sú vynikajúcou voľbou pre rodiny s deťmi. Plocha: úžitková 175m2, pozemku 300m2.
Dom sa pred ...
249 000 €
Nové Zámky
942 01
942 01
327 x
Označiť zlý inzerát Chybnú kategóriu Ohodnotiť užívateľa Zmazať/Upraviť/Topovať
Sedliacky dom z hliny – poctivá ,,nabíjanica,, s odbo… - [13.1. 2026]Sedliacky dom z hliny – poctivá ,,nabíjanica,, s odbornou rekonštrukciou a jedinečnou atmosférou.
Popis: Hľadáte dom, ktorý má dušu, históriu a prirodzenú harmóniu s prírodou? Tento starší sedliacky dom – tradičná ,,nabíjanica,, postavená z hliny – je ideálnou voľbou pre tých, ktorí túžia po zdravo ...
155 000 €
Nové Zámky
942 01
942 01
336 x
Označiť zlý inzerát Chybnú kategóriu Ohodnotiť užívateľa Zmazať/Upraviť/Topovať
RODINNÝ DOM V KĽUDNEJ ČASTI MESTA ŠURANY LEN 2 KM OD PRÍRO - [13.1. 2026]Tento štvorizbový rodinný dom v Šuranoch s obytnou plochou 90m² sa nachádza na rovinatom, oplotenom pozemku s výmerou 436 m².
Súčasťou ponuky je aj samostatná letná kuchyňa s plochou 26 m², ktorá poskytuje ďalší priestor pre rodinné stretnutia alebo možnosti rekreačného využitia.
Dom bol posta ...
114 000 €
Nové Zámky
942 01
942 01
367 x
Označiť zlý inzerát Chybnú kategóriu Ohodnotiť užívateľa Zmazať/Upraviť/Topovať






