CREDA | predaj 3-izb. byt, Nitra - centrum, Janka Kráľa
- [16.1. 2026]Zmazať/ Upraviť/ Topovať
















CREDA REAL ESTATE Vám ponúka na predaj nadštandardné bývanie v centre mesta na ulici Janka Kráľa. Cieľom projektu je priniesť kvalitu moderného komfortu bývania v butikovom projekte. V bytovom dome bude len 10 bytových jednotiek.
Developer je v lokalite skúsený, realizoval aj okolité stavby bytových domov, prepokladané dokončenie stavby je koniec roka 2026.
-BYT-
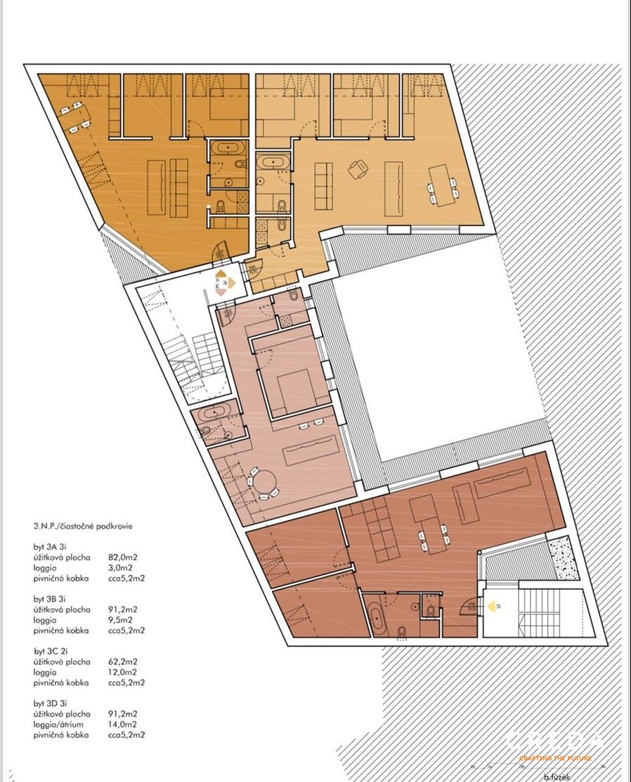
Podlažie: 3/3
Počet izieb: 3
Úžitková plocha: 91,2 m2
Loggia: 14 m2
Byt sa predáva v prevedení vyšší Štandard
-PARKOVANIE-
- ku každému bytu prislúcha parkovacie miesto a kobka
Cena parkovacieho miesta je 20 000 € s DPH
-LOKALITA-
Bytový dom svojou polohou. Nachádza sa v historickom centre mesta pod hradným vrchom a v tesnej blízkosti mestského parku. Či už hľadáte zábavu, kultúru, nákupy alebo relax, pešou chôdzou sa dostanete kamkoľvek v Starom Meste do 5 minút. Kompletná občianska vybavenosť v pešej dostupnosti. Obchod s potravinami je vzdialený 200 m, materská a základná škola sú na rovnakej ulici. Ostatná vybavenosť je v pešej dostupnosti. V pešej dostupnosti je prechod do mestského parku, ktorý poskytuje množstvo športových aktivít. Cyklistické a korčuliarske dráhy, hrádzu na rieke pre beh, hokejový a futbalový štadión, tenisové dvorce a mestské kúpalisko.
Developer je v lokalite skúsený, realizoval aj okolité stavby bytových domov, prepokladané dokončenie stavby je koniec roka 2026.
-BYT-
Podlažie: 3/3
Počet izieb: 3
Úžitková plocha: 91,2 m2
Loggia: 14 m2
Byt sa predáva v prevedení vyšší Štandard
-PARKOVANIE-
- ku každému bytu prislúcha parkovacie miesto a kobka
Cena parkovacieho miesta je 20 000 € s DPH
-LOKALITA-
Bytový dom svojou polohou. Nachádza sa v historickom centre mesta pod hradným vrchom a v tesnej blízkosti mestského parku. Či už hľadáte zábavu, kultúru, nákupy alebo relax, pešou chôdzou sa dostanete kamkoľvek v Starom Meste do 5 minút. Kompletná občianska vybavenosť v pešej dostupnosti. Obchod s potravinami je vzdialený 200 m, materská a základná škola sú na rovnakej ulici. Ostatná vybavenosť je v pešej dostupnosti. V pešej dostupnosti je prechod do mestského parku, ktorý poskytuje množstvo športových aktivít. Cyklistické a korčuliarske dráhy, hrádzu na rieke pre beh, hokejový a futbalový štadión, tenisové dvorce a mestské kúpalisko.
|
| |||||||||||||||||||||||||||||||
Kontaktovať inzerenta e-mailom
Kontaktovať e-mailom môže iba overený užívateľ.
Overenie je zadarmo.
Vaše telefónne číslo *
Kontaktovať e-mailom môže iba overený užívateľ.
Overenie je zadarmo.
Vaše telefónne číslo *