🔑 Na predaj: kompletne zrekonštruovaný 3-izbový byt – Nitra
- [15.1. 2026]Zmazať/ Upraviť/ Topovať






























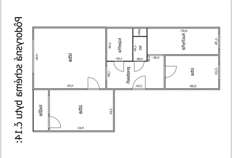
Ponúkam na predaj 3-izbový byt po kompletnej rekonštrukcii (2025) v obľúbenej lokalite Nitra – Klokočina. Byt má výmeru 63 m², nachádza sa na 4. poschodí zatepleného bytového domu s výťahom a predáva sa plne zariadený – stačí sa nasťahovať.
🏡 Dispozícia bytu:
pracovňa / detská izba
samostatná kuchyňa
obývačka s gaučom, TV a jedálenským stolom
spálňa s manželskou posteľou a novou vstavanou skriňou na mieru
kúpeľňa s vaňou, práčkou a sušičkou
samostatné WC
loggia so záhradným sedením
Byt je veľmi pekne presvetlený, počas dňa svieti slnko do obývačky. Rekonštrukcia bola robená kompletne a moderne – bez nutnosti ďalších investícií.
🏢 Bytový dom:
panelový dom
kompletne zateplený
výťah
stupačky v poriadku
spoločné priestory staršie, ale udržiavané a zachovalé
🚗 Parkovanie: verejné v okolí domu
💰 Mesačné náklady: cca 200 € / 2 osoby (180 € nájom + 20 € elektrina)
📌 Byt je voľný, na byte je hypotéka, ktorá sa vyplatí pri predaji.
👤 Predaj priamo od majiteľa – bez realitky, rýchla a férová komunikácia.
📸 Fotky sú súčasťou inzerátu.
💶 Cena: 168 000 €
V prípade záujmu ma neváhajte kontaktovať – obhliadka možná kedykoľvek, podľa dohody.
🏡 Dispozícia bytu:
pracovňa / detská izba
samostatná kuchyňa
obývačka s gaučom, TV a jedálenským stolom
spálňa s manželskou posteľou a novou vstavanou skriňou na mieru
kúpeľňa s vaňou, práčkou a sušičkou
samostatné WC
loggia so záhradným sedením
Byt je veľmi pekne presvetlený, počas dňa svieti slnko do obývačky. Rekonštrukcia bola robená kompletne a moderne – bez nutnosti ďalších investícií.
🏢 Bytový dom:
panelový dom
kompletne zateplený
výťah
stupačky v poriadku
spoločné priestory staršie, ale udržiavané a zachovalé
🚗 Parkovanie: verejné v okolí domu
💰 Mesačné náklady: cca 200 € / 2 osoby (180 € nájom + 20 € elektrina)
📌 Byt je voľný, na byte je hypotéka, ktorá sa vyplatí pri predaji.
👤 Predaj priamo od majiteľa – bez realitky, rýchla a férová komunikácia.
📸 Fotky sú súčasťou inzerátu.
💶 Cena: 168 000 €
V prípade záujmu ma neváhajte kontaktovať – obhliadka možná kedykoľvek, podľa dohody.
|
| |||||||||||||||||||||||||||||||
Kontaktovať inzerenta e-mailom
Kontaktovať e-mailom môže iba overený užívateľ.
Overenie je zadarmo.
Vaše telefónne číslo *
Kontaktovať e-mailom môže iba overený užívateľ.
Overenie je zadarmo.
Vaše telefónne číslo *
Podobné inzeráty
Predám 1 izbový byt - štýlový a investičný - TOP - [6.2. 2026]Ponúkam na predaj investičný 1 izbový byt v Nitre na sídlisku Klokočina o výmere 35 m2.
Byt prešiel v 12/25 - 01/26 kompletnou rekonštrukciou: murované bytové jadro,nová elektrina, stierky, podlahy,nová sanita a obklady.
Byt sa nachádza na prízemí, kúpou je ihneď voľný.
RK nekontaktovať !!!
133 900 €
Nitra
949 11
949 11
7 x
Označiť zlý inzerát Chybnú kategóriu Ohodnotiť užívateľa Zmazať/Upraviť/Topovať
Na predaj: Moderný 2-izbový byt s loggiou, 63,5 m², Nitra – - [5.2. 2026]Predtým, ako si pozriete foto-galériu skopírujte si nasledujúci link a pozrite si video bytu:++++https://youtu.be/7X_4JAVYiGg++++
Premium Living vám ponúka na predaj moderný, kompletne zrekonštruovaný 2-izbový byt s loggiou na ulici Novomestského v Nitre.
Byt s výmerou 63,50 m² sa nachádza na 10. p ...
169 999 €
Nitra
949 11
949 11
356 x
Označiť zlý inzerát Chybnú kategóriu Ohodnotiť užívateľa Zmazať/Upraviť/Topovať
Šikovný 3i byt s balkónom - Nitra (tichá lokalita) - [5.2. 2026]B10 Vám ponúka na predaj 3 izbový byt na 2/7 poschodí s priestranným balkónom (lodžiou). Byt s rozlohou 61 m2 sa nachádza v zateplenej bytovke na sídlisku Klokočina - Nitra. Vo vchode sa nachádzajú len 3 izbové byty a len dva na poschodí.Byt sa predáva takmer kompletne zariadený nábytkom a elektroni ...
154 990 €
Nitra
949 11
949 11
443 x
Označiť zlý inzerát Chybnú kategóriu Ohodnotiť užívateľa Zmazať/Upraviť/Topovať
1-izbový byt Nitra Klokočina - [3.2. 2026]Ponúkame na predaj 1-izbový byt o výmere 39 m², nachádzajúci sa na 3. poschodí bytového domu s novým, priestranným výťahom na Baničovej ulici, vo vyhľadávanej lokalite s dlhodobo vysokým dopytom po prenájme.
Bytový dom prešiel rozsiahlymi rekonštrukciami, vrátane výmeny nového veľkokapacitného výťa ...
Dohodou
Nitra
949 11
949 11
379 x
Označiť zlý inzerát Chybnú kategóriu Ohodnotiť užívateľa Zmazať/Upraviť/Topovať
Rezervovaný- Pre rodinu- 2x balkón- Klimatizácia - [23.1. 2026]B10 Vám ponúka na predaj priestranný 3 izbový byt s dvomi balkónmi a klimatizáciou – Nitra.Tento veľký 3-izbový byt s výmerou až 81,4 m² + pivnica 2,5 m² sa nachádza na 1. poschodí (vyvýšené prízemie) kompletne zrekonštruovaného bytového domu. Výhodou je praktické dispozičné riešenie, nepriechodné i ...
174 900 €
Nitra
949 11
949 11
708 x
Označiť zlý inzerát Chybnú kategóriu Ohodnotiť užívateľa Zmazať/Upraviť/Topovať
Veľký 2 izbový byt s balkónom - [21.1. 2026]B10 Vám ponúka na predaj priestranný 2-izbový byt o výmere 64 m² ktorý sa nachádza na 2 poschodi zo 7 v obľúbenej a tichej lokalite Klokočina, na Bizetovej ulici. Bytový dom je kompletne zrekonštruovaný – zateplený, s novým výťahom, vymenenými stupačkami a upravenými spoločnými priestormi. Lokalita ...
143 000 €
Nitra
949 11
949 11
700 x
Označiť zlý inzerát Chybnú kategóriu Ohodnotiť užívateľa Zmazať/Upraviť/Topovať
2-izbový byt ihneď k dispozícii | 6/7 posch. | Klokočina - [19.1. 2026]Realitná kancelária Prvý domov s.r.o. Vám v zastúpení majiteľa ponúka na predaj 2-izbový byt po staršej rekonštrukcii vo vyhľadávanej lokalite s kompletnou občianskou vybavenosťou.
Byt sa nachádza na 6. poschodí zo 7 v bytovom dome s výťahom a je ihneď k dispozícii.
Vhodný je ako štartovacie bý ...
139 000 €
Nitra
949 11
949 11
521 x
Označiť zlý inzerát Chybnú kategóriu Ohodnotiť užívateľa Zmazať/Upraviť/Topovať
Príjemný 4 izbový byt s balkónom - Klokočina - [16.1. 2026]B10 Vám ponúka na predaj príjemný 4 izbový byt po rekonštrukcii, s veľmi dobrou a vyhľadávanou dispozíciou. Tým, že byt má štyri nepriechodné izby, viete využívať byt aj ako investíciu.Nachádza sa v príjemnej a pokojnej časti Klokočiny, na Čajkovského ulici, s dostatkom parkovacích miest a pešej dos ...
169 990 €
Nitra
949 11
949 11
1011 x
Označiť zlý inzerát Chybnú kategóriu Ohodnotiť užívateľa Zmazať/Upraviť/Topovať
Fakt dobrá adresa 2 izbový byt s balkónom v Bytovom dome - [16.1. 2026]Ponúkame Vám na predaj 2 izbový byt Nitra, Jurkovičova. Stav objektu: projekt.
2 izbový byt
Byt: 59,15 m2
Logia: 3 m2
Bytový dom bude stáť v zastavanej oblasti mesta Nitra na Klokočine.
Lokalita spĺňa všetky atribúty pre aktívnych mestských ľudí – oddych v blízkej prírode, cyklistický cho ...
Dohodou
Nitra
949 11
949 11
691 x
Označiť zlý inzerát Chybnú kategóriu Ohodnotiť užívateľa Zmazať/Upraviť/Topovať
FLEXI 1,5 izbový byt s balkónom v novostavbe v Nitre - [16.1. 2026]Ponúkame Vám na predaj 1 -2 izbový byt Nitra, Jurkovičova. Stav objektu: projekt.
Výborné ceny - Špeciálna akcia na predpredaj prvých bytov v Nitre na Klokočine na Jurkovičovej ! Výborná lokalita na zbehnutom sídlisku s plnou občianskou vybavenosťou. Všetko na pešo. ( obchody, nemocnicu, školy, ...
Dohodou
Nitra
949 11
949 11
759 x
Označiť zlý inzerát Chybnú kategóriu Ohodnotiť užívateľa Zmazať/Upraviť/Topovať









