pozemok 252m2, ul.Textilná/ Slanecká, KE-Nad Jazerom
- [2.1. 2026]Zmazať/ Upraviť/ Topovať






Realitní makléri Klaudia Heribanová a Peter Heriban Vám ponúkajú exkluzívne na predaj pozemok v novom územnom pláne mesta Košice vedený ako: „plochy ekologicky nezávadnej výroby, výrobných služieb a skladov“
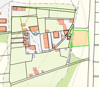
Pozemkom je parcela registra C, s celkovou výmerou 252m2.
Pozemok je rovinatý, s lichobežníkovitým tvarom a rozmermi strán cca 18m - 6m - 24m - 23m
Všetky potrebné informácie týkajúce sa nehnuteľnosti ako aj obhliadku Vám zabezpečia licencovaní realitný makléri Ing. Klaudia Heribanová, RSc, tel. 0908361627 a Ing. Peter Heriban, tel. 0908796298
Realitná kancelária Heriban reality, s.r.o.
Murgašova 3, 040 01 Košice
mobil:0908796298
e-mail: info@kosice-reality.sk
kosice-reality.sk
Pozemkom je parcela registra C, s celkovou výmerou 252m2.
Pozemok je rovinatý, s lichobežníkovitým tvarom a rozmermi strán cca 18m - 6m - 24m - 23m
Všetky potrebné informácie týkajúce sa nehnuteľnosti ako aj obhliadku Vám zabezpečia licencovaní realitný makléri Ing. Klaudia Heribanová, RSc, tel. 0908361627 a Ing. Peter Heriban, tel. 0908796298
Realitná kancelária Heriban reality, s.r.o.
Murgašova 3, 040 01 Košice
mobil:0908796298
e-mail: info@kosice-reality.sk
kosice-reality.sk
|
| |||||||||||||||||||||||||||||||
Kontaktovať inzerenta e-mailom
Kontaktovať e-mailom môže iba overený užívateľ.
Overenie je zadarmo.
Vaše telefónne číslo *
Kontaktovať e-mailom môže iba overený užívateľ.
Overenie je zadarmo.
Vaše telefónne číslo *
Podobné inzeráty
Stavebný pozemok - Krásna nad Hornádom (KE) - neďaleko R2 - [30.12. 2025]Predám stavebný pozemok v lokalite Košice - Krásna nad Hornádom - časť Rešov Dvor v rozlohe 1961 m², plánovaná výstavba novej časti (KE - Južné Mesto) a v blízkosti aktuálne otvorená nová rýchlocesta R2/R4 - Košické Olšany - Valaliky - Šaca. Pozemok je schválený v územnom pláne mesta Košíc s budúcou ...
Dohodou
Košice
040 12
040 12
341 x
Označiť zlý inzerát Chybnú kategóriu Ohodnotiť užívateľa Zmazať/Upraviť/Topovať
☎️ Záhradný pozemok KOŠICE - JAZERO☎️ - [28.12. 2025]▶ Ponúkame na predaj záhradný pozemok (záhradu) o rozlohe 361 m2 v OSOBNOM VLASTNÍCTVE, na Textilnej ul. Košice/Nad Jazerom v blízkosti Labas (farebne vyznačenú na mapke).
▶ Parcela je ROVINATÁ,lichobežníkového tvaru, celoročne prístupná asfaltová-mestská cesta, následne cca.100m spevnená s podie ...
46 900 €
Košice
040 12
040 12
425 x
Označiť zlý inzerát Chybnú kategóriu Ohodnotiť užívateľa Zmazať/Upraviť/Topovať
Komerčný areál 27828 m2 + hala, Košice Nad Jazerom - [20.12. 2025]RE/MAX realitná kancelária ponúka exkluzívne na predaj rozsiahly komerčný areál na podnikanie v lokalite Košice nad Jazerom:
celková rozloha pozemku je 27828 m2
k dispozícii sú administratívne budovy a hala s rozlohou 3 653 m2.
Uvedený podnikateľský areál je aktuálne využívaný na podnikateľsk ...
Dohodou
Košice
040 12
040 12
632 x
Označiť zlý inzerát Chybnú kategóriu Ohodnotiť užívateľa Zmazať/Upraviť/Topovať