ID 3142 Predaj: Výrobný - skladovací objekt
- [30.12. 2025]Zmazať/ Upraviť/ Topovať






ID 3142 Predaj: Výrobný - skladovací objekt
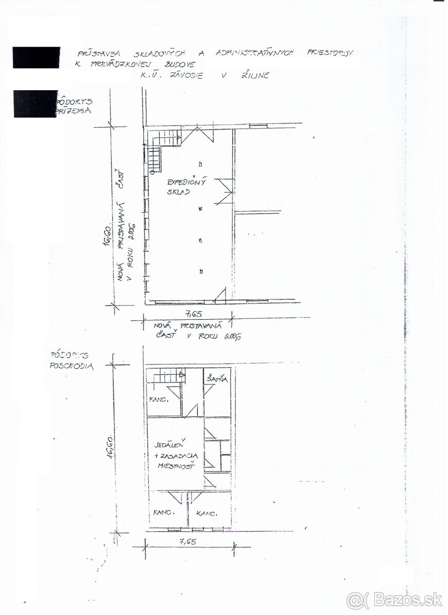
Predáme výrobný / skladovací objekt v okrajovej časti mesta – Závodie. Jednopodlažná budova s prístavbou, strecha pokrytá plechom, základy sú riešené ako základové pásy s izoláciami, obvodový plášť je murovaný, zvislá nosná konštrukcia je murovaná, zateplená, V budove na prízemí sa nachádzajú dva väčšie výrobné / skladovacie priestory, sociálne zariadenie pre ženy a mužov a menšie kancelárie. Vstup z obecnej cesty cez veľké rolovacie vráta. IS: pripojenie na obecný vodovod, kanalizácia, elektrická energia a plyn. V objekte je vlastné ústredné vykurovanie cez oceľové radiátory, plynovým kotlom, rozvod teplej a studenej vody, podlahy na prízemí sú betónové, keramické, okná pôvodné drevené s osadenými mrežami.
Na poschodí je administratívna časť (127 m2), 4 kancelárie, toalety a kuchynka. Zastavaná plocha celkom 633 m, výška 3,68 výška.
Cena: 450.000,- Eur
Predáme výrobný / skladovací objekt v okrajovej časti mesta – Závodie. Jednopodlažná budova s prístavbou, strecha pokrytá plechom, základy sú riešené ako základové pásy s izoláciami, obvodový plášť je murovaný, zvislá nosná konštrukcia je murovaná, zateplená, V budove na prízemí sa nachádzajú dva väčšie výrobné / skladovacie priestory, sociálne zariadenie pre ženy a mužov a menšie kancelárie. Vstup z obecnej cesty cez veľké rolovacie vráta. IS: pripojenie na obecný vodovod, kanalizácia, elektrická energia a plyn. V objekte je vlastné ústredné vykurovanie cez oceľové radiátory, plynovým kotlom, rozvod teplej a studenej vody, podlahy na prízemí sú betónové, keramické, okná pôvodné drevené s osadenými mrežami.
Na poschodí je administratívna časť (127 m2), 4 kancelárie, toalety a kuchynka. Zastavaná plocha celkom 633 m, výška 3,68 výška.
Cena: 450.000,- Eur
|
| |||||||||||||||||||||||||||||||
Kontaktovať inzerenta e-mailom
Kontaktovať e-mailom môže iba overený užívateľ.
Overenie je zadarmo.
Vaše telefónne číslo *
Kontaktovať e-mailom môže iba overený užívateľ.
Overenie je zadarmo.
Vaše telefónne číslo *
Podobné inzeráty
EXKLUZÍVNE Na predaj výrobno skladová hala, Žilina - St - [26.12. 2025]Ponúkame na predaj výrobno-skladovú halu vo vyhľadávanej priemyselnej časti mesta Žilina s výbornou dostupnosťou do centra a priameho napojenia na rýchlostnú komunikáciu.
Parametre nehnuteľnosti:
Rozloha haly: 751 m² (24 × 31 m)
Zázemie: 160 m² – 2 kancelárie, kuchynka, 2× sociál ...
738 800 €
Žilina
010 01
010 01
561 x
Označiť zlý inzerát Chybnú kategóriu Ohodnotiť užívateľa Zmazať/Upraviť/Topovať