INVESTIČNÁ PRÍLEŽITOSŤ - Rodinný dom s 5 bytovými jednotkami
- [30.12. 2025]Zmazať/ Upraviť/ Topovať























V exkluzívnom zastúpení ponúkame na predaj rodinný dom – toho času využívaný ako ubytovňa s piatimi 1izbovými bytmi o rozlohe cca 41 m2, v okresnom meste Levice, na ul. Fr. Hečku. Byty sa prenajímajú, takže nový majiteľ môže nehnuteľnosť odkúpiť a pokračovať v prenajímaní s aktuálnymi nájomníkmi. K danej nehnuteľnosti prislúcha ešte rozsiahly pozemok s pozoruhodným rozmerom 974 m2.
Nehnuteľnosť je riešená ako samostatne stojaci, nepodpivničený dom s troma nadzemnými podlažiami a plochou strechou. Pôvodná stavba z roku 1969 bol rodinný dvojdom s dvoma bytovými jednotkami.
Po rekonštrukcii a prestavbe so zmenou užívania bolo v roku 2015 z domu vytvorené ubytovacie zariadenie s piatimi 1izbovými bytmi o rozlohe cca 41 m2. Dom je umiestnený v prednej strednej časti pozemku, takže pred domom sa nachádzajú aj vybetónované parkovacie miesta pre 3 osobné vozidlá.
Stavba je založená na železobetónových základoch s izoláciou proti vode a zemnej vlhkosti. Nosnou konštrukciou budovy sú murované steny. Stropy sú železobetónové s rovným podhľadom. Vonkajšia úprava povrchov domu je omietka na báze umelých hmôt so zateplením. Vnútorná úprava povrchov je vápenno-cementová hladká omietka. Strešná konštrukcia je železobetónová doska. Krytina strechy je povlaková fólia. Oplechovanie strechy a konštrukcie parapetov okien sú z pozinkovaného plechu. V izbách je veľkoplošná laminátová podlaha, v ostatných miestnostiach a na prízemí je keramická dlažba. Päť kúpeľní je vybavených umývadlom, sprchou a splachovacím záchodom. Výplne okenných otvorov a dverí na fasáde domu sú plastové. Vnútorné interiérové dvere sú dyhované v oblôžkových zárubniach. V tomto roku sa menili vstupné dvere na všetkých bytoch. Rozvod teplej a studenej vody je plastovým potrubím, zdroj teplej vody je elektrický bojler v každom byte. Vykurovanie je lokálne plynovým kotlom na prízemí, prostredníctvom radiátorov v bytoch, jedine prízemný byt má podlahové kúrenie.
Inžinierske siete - rozvod elektriny, plynu, vody a kanalizácie mesta. V dome sú rozvody televízneho signálu.
Elektroinštalácia domu je svetelná a motorická s automatickými ističmi.
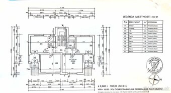
Dispozičné riešenie (pôdorysy v galérii):
1. NP – vpravo sa nachádza 1 byt pozostávajúci z predsiene, kuchyne, 1 veľkej izby, kúpeľne s WC a ľavá časť prízemia pozostáva zo spoločných častí (práčovňa, kotolňa, 2 skladové priestory) – tieto prislúchajú bytom z 3.NP.
2. NP – 2 byty, každý pozostáva z chodby, kuchyne s obývacou izbou, spálne, kúpeľne s WC.
3. NP – 2 byty, každý pozostáva z chodby, kuchyne s obývacou izbou, spálne, kúpeľne s WC a menšej predsiene s balkónom.
K danej nehnuteľnosti prislúchajú aj garáže, vedľajšia stavba, podzemná pivnica.
Táto nehnuteľnosti má všestranné využitie – môžete ju ponechať v aktuálnom stave a naďalej prenajímať 5 bytov alebo ju využívať na podnikateľské účely alebo z nej spraviť ambulancie – fantázii sa medze nekladú.
Krátka videoobhliadka:
https://youtu.be/gve4N
Nehnuteľnosť je riešená ako samostatne stojaci, nepodpivničený dom s troma nadzemnými podlažiami a plochou strechou. Pôvodná stavba z roku 1969 bol rodinný dvojdom s dvoma bytovými jednotkami.
Po rekonštrukcii a prestavbe so zmenou užívania bolo v roku 2015 z domu vytvorené ubytovacie zariadenie s piatimi 1izbovými bytmi o rozlohe cca 41 m2. Dom je umiestnený v prednej strednej časti pozemku, takže pred domom sa nachádzajú aj vybetónované parkovacie miesta pre 3 osobné vozidlá.
Stavba je založená na železobetónových základoch s izoláciou proti vode a zemnej vlhkosti. Nosnou konštrukciou budovy sú murované steny. Stropy sú železobetónové s rovným podhľadom. Vonkajšia úprava povrchov domu je omietka na báze umelých hmôt so zateplením. Vnútorná úprava povrchov je vápenno-cementová hladká omietka. Strešná konštrukcia je železobetónová doska. Krytina strechy je povlaková fólia. Oplechovanie strechy a konštrukcie parapetov okien sú z pozinkovaného plechu. V izbách je veľkoplošná laminátová podlaha, v ostatných miestnostiach a na prízemí je keramická dlažba. Päť kúpeľní je vybavených umývadlom, sprchou a splachovacím záchodom. Výplne okenných otvorov a dverí na fasáde domu sú plastové. Vnútorné interiérové dvere sú dyhované v oblôžkových zárubniach. V tomto roku sa menili vstupné dvere na všetkých bytoch. Rozvod teplej a studenej vody je plastovým potrubím, zdroj teplej vody je elektrický bojler v každom byte. Vykurovanie je lokálne plynovým kotlom na prízemí, prostredníctvom radiátorov v bytoch, jedine prízemný byt má podlahové kúrenie.
Inžinierske siete - rozvod elektriny, plynu, vody a kanalizácie mesta. V dome sú rozvody televízneho signálu.
Elektroinštalácia domu je svetelná a motorická s automatickými ističmi.
Dispozičné riešenie (pôdorysy v galérii):
1. NP – vpravo sa nachádza 1 byt pozostávajúci z predsiene, kuchyne, 1 veľkej izby, kúpeľne s WC a ľavá časť prízemia pozostáva zo spoločných častí (práčovňa, kotolňa, 2 skladové priestory) – tieto prislúchajú bytom z 3.NP.
2. NP – 2 byty, každý pozostáva z chodby, kuchyne s obývacou izbou, spálne, kúpeľne s WC.
3. NP – 2 byty, každý pozostáva z chodby, kuchyne s obývacou izbou, spálne, kúpeľne s WC a menšej predsiene s balkónom.
K danej nehnuteľnosti prislúchajú aj garáže, vedľajšia stavba, podzemná pivnica.
Táto nehnuteľnosti má všestranné využitie – môžete ju ponechať v aktuálnom stave a naďalej prenajímať 5 bytov alebo ju využívať na podnikateľské účely alebo z nej spraviť ambulancie – fantázii sa medze nekladú.
Krátka videoobhliadka:
https://youtu.be/gve4N
|
| |||||||||||||||||||||||||||||||
Kontaktovať inzerenta e-mailom
Kontaktovať e-mailom môže iba overený užívateľ.
Overenie je zadarmo.
Vaše telefónne číslo *
Kontaktovať e-mailom môže iba overený užívateľ.
Overenie je zadarmo.
Vaše telefónne číslo *
Podobné inzeráty
ZNÍŽENÁ CENA 6- IZBOVÝ RD S DVOJGARÁŽOU,VEĽKÝ POZEMOK 1,65ha - [2.1. 2026]Typ: Rodinný dom
Ulica: .
Obec: Levice
6-izbový rodinný dom s DVOJGARÁŽOU a VEĽKÝM POZEMKOM 16 500 m² – v obci Podlužany len 3 km od Levíc!
Realitná kancelária NestGroup vám exkluzívne ponúka jedinečný rodinný dom s premyslenou dispozíciou, dvojgarážou a obrovským pozemkom s výmerou 1,65 ...
399 000 €
Levice
934 01
934 01
384 x
Označiť zlý inzerát Chybnú kategóriu Ohodnotiť užívateľa Zmazať/Upraviť/Topovať
Na predaj 2 rodinné domy po interiérovej rekonštrukcii... - [30.12. 2025]Hľadáte nehnuteľnosť s okamžitým potenciálom na návrat investície?
TUreality ponúka na predaj dva rodinné domy po kompletnej interiérovej rekonštrukcii, nachádzajúce sa na pozemku o výmere 1400 m2 (14 árov) v centre mesta Levice.
Domy využívajú spoločnú prístupovú cestu.
K nehnuteľnosti sú pri ...
409 000 €
Levice
934 01
934 01
343 x
Označiť zlý inzerát Chybnú kategóriu Ohodnotiť užívateľa Zmazať/Upraviť/Topovať
Na predaj RD Tekovské Lužany Veľký pozemok - [22.12. 2025]Ponúkame na predaj rodinný dom v obci Tekovské Lužany, nachádzajúci sa na pozemku o výmere 876 m².
🏠 Stav a dispozícia nehnuteľnosti:
Dom je v pôvodnom stave, vhodný na rekonštrukciu alebo na výstavbu nového domu
Dispozícia: 4 izby, kúpeľňa, komora
Kúrenie: gamatky (plynové)
Strecha: sedlová, v ...
385 000 €
Levice
934 01
934 01
544 x
Označiť zlý inzerát Chybnú kategóriu Ohodnotiť užívateľa Zmazať/Upraviť/Topovať
ZNÍŽENÁ CENA6- IZBOVÝ RD S DVOJGARÁŽOU,VEĽKÝ POZEMOK 1,65HA - [14.11. 2025]Typ: Rodinný dom
Ulica: .
Obec: Levice
EXKLUZÍVNE: Rodinný dom s DVOJGARÁŽOU a VEĽKÝM POZEMKOM 16 500 m² – v obci Podlužany len 3 km od Levíc!
Realitná kancelária NestGroup vám exkluzívne ponúka jedinečný rodinný dom s premyslenou dispozíciou, dvojgarážou a obrovským pozemkom s výmerou 1, ...
399 000 €
Levice
934 01
934 01
364 x
Označiť zlý inzerát Chybnú kategóriu Ohodnotiť užívateľa Zmazať/Upraviť/Topovať
RODINNÝ DOM Veľké Krškany s vlastnou botanickou záhradou - [10.11. 2025]Predstavte si život, kde sa ráno zobudíte do ticha vidieka a zároveň ste len kúsok od mesta. Život, kde je každý detail premyslený pre vaše maximálne pohodlie. To je presne to, čo vám ponúka tento priestranný a kvalitne postavený rodinný dom vo Veľkých Krškanoch.
Tento dom, skolaudovaný v roku 20 ...
395 000 €
Levice
934 01
934 01
561 x
Označiť zlý inzerát Chybnú kategóriu Ohodnotiť užívateľa Zmazať/Upraviť/Topovať


