Borovicový háj 3-izbový byt
- [29.12. 2025]Zmazať/ Upraviť/ Topovať





















Ponúkame na predaj 3-izbový byt v bytovom komplexe Borovicový háj na Popradskej ulici v mestskej časti Košice – Západ.
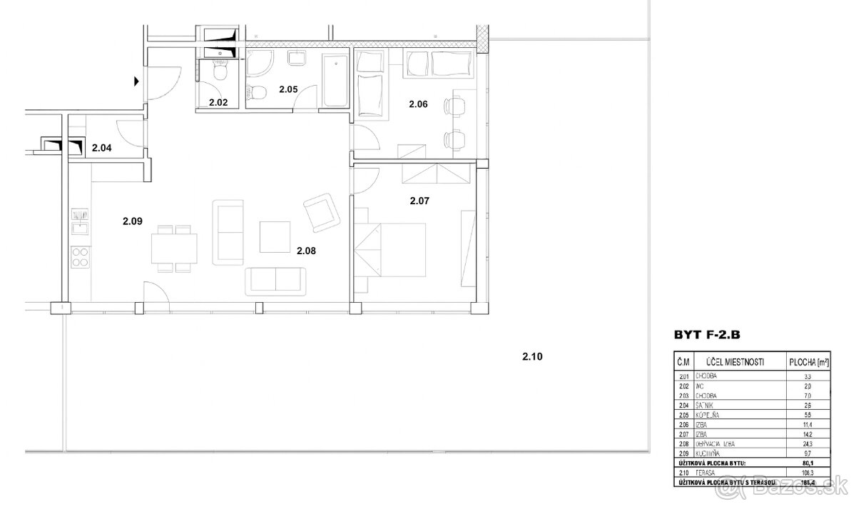
Dispozičné riešenie bytu pozostáva z vstupnej chodby, priestrannej obývacej izby spojenej s kuchyňou, dvoch spálni, kúpeľne vybavenej vaňou, sprchovacím kútom, veľkým umývadlom a toaletou. Ďalej sa v byte nachádza samostatná toaleta s umývadlom praktická pre návštevy, technická miestnosť s prípojkou na práčku a sušičku, zároveň odkladací priestor/šatník. Veľkou výhodou bytu je priestranná terasa lemujúca celý byt, na ktorú je možné vychádzať z každej jednej izby.
Byt sa predáva zariadený s kuchynskou linkou vyrobenou na mieru, v ktorej sú zabudované spotrebiče (chladnička s mrazničkou, teplovzdušná rúra, kávovar, indukčná varná doska, digestor a umývačka riadu). Súčasťou zariadenia bytu je aj klimatizácia.
Poschodie: 1. / 4.
Celková úžitková plocha: 188,4 m2
Úžitková plocha bytu: 80,1 m2
Plocha terasy: 108,3 m2
Orientácia bytu: východ a sever
Bytový komplex sa nachádza v obľúbenej lokalite pri Borovicovom háji v ktorom je viacero možností na využitie voľného času (lavičky, prístrešky, ohniská, cestičky lesoparkom vhodné na beh a pod.) Priamo v komplexe je moderné Fitnescentrum a vnútroblok tvorí rozľahlé átrium v ktorom sa nachádza relaxačná zeleň a lavičky. Prístup do komplexu je cez hlavný vstupný objekt s recepciou a 24 hod. strážnou službou. V blízkosti nájdete aj kompletnú občiansku vybavenosť, materské či základné školy, obchodné domy, zastávky MHD. Blízkosť do centra mesta je cca. 10 minút.
K bytu je možné zakúpiť aj parkovacie miesto v spoločnej garáži, umiestnenej v suteréne bytového komplexu.
Dispozičné riešenie bytu pozostáva z vstupnej chodby, priestrannej obývacej izby spojenej s kuchyňou, dvoch spálni, kúpeľne vybavenej vaňou, sprchovacím kútom, veľkým umývadlom a toaletou. Ďalej sa v byte nachádza samostatná toaleta s umývadlom praktická pre návštevy, technická miestnosť s prípojkou na práčku a sušičku, zároveň odkladací priestor/šatník. Veľkou výhodou bytu je priestranná terasa lemujúca celý byt, na ktorú je možné vychádzať z každej jednej izby.
Byt sa predáva zariadený s kuchynskou linkou vyrobenou na mieru, v ktorej sú zabudované spotrebiče (chladnička s mrazničkou, teplovzdušná rúra, kávovar, indukčná varná doska, digestor a umývačka riadu). Súčasťou zariadenia bytu je aj klimatizácia.
Poschodie: 1. / 4.
Celková úžitková plocha: 188,4 m2
Úžitková plocha bytu: 80,1 m2
Plocha terasy: 108,3 m2
Orientácia bytu: východ a sever
Bytový komplex sa nachádza v obľúbenej lokalite pri Borovicovom háji v ktorom je viacero možností na využitie voľného času (lavičky, prístrešky, ohniská, cestičky lesoparkom vhodné na beh a pod.) Priamo v komplexe je moderné Fitnescentrum a vnútroblok tvorí rozľahlé átrium v ktorom sa nachádza relaxačná zeleň a lavičky. Prístup do komplexu je cez hlavný vstupný objekt s recepciou a 24 hod. strážnou službou. V blízkosti nájdete aj kompletnú občiansku vybavenosť, materské či základné školy, obchodné domy, zastávky MHD. Blízkosť do centra mesta je cca. 10 minút.
K bytu je možné zakúpiť aj parkovacie miesto v spoločnej garáži, umiestnenej v suteréne bytového komplexu.
|
| |||||||||||||||||||||||||||||||
Kontaktovať inzerenta e-mailom
Kontaktovať e-mailom môže iba overený užívateľ.
Overenie je zadarmo.
Vaše telefónne číslo *
Kontaktovať e-mailom môže iba overený užívateľ.
Overenie je zadarmo.
Vaše telefónne číslo *
