Predaj bytov v štýlovej novostavbe – Hegyeshalom
- [25.12. 2025]Zmazať/ Upraviť/ Topovať























Home 4 Life s. r. o. Vám ponúka na predaj byty v štýlovej novostavbe v obci Hegyeshalom. V každom byte zabezpečuje kúrenie a ohrev vody tepelné čerpadlo s podlahovým kúrením. Z tejto obce na hranici Rakúska a Maďarska trvá cesta do centra Bratislavy len 22 minút.
Na predaj sú ešte nasledovné byty s dokončením do stavu holobyt v 10/2025:
Poschodie:
- 2,5-izbový byt č. 5: 51,59m2 + 1,98 m2 balkón – cena: 105.705 EUR – 42.282.000 HUF - REZERVOVANÝ
- 2-izbový byt č. 6: 41,38 m2 + 1,50 m2 balkón – cena: 88.000 EUR - 35.200.000 HUF - REZERVOVANÝ
- 2-izbový byt č. 8: 43,59 m2 + 1,50 m2 balkón – cena: 94.100 EUR - 36.700.000 HUF
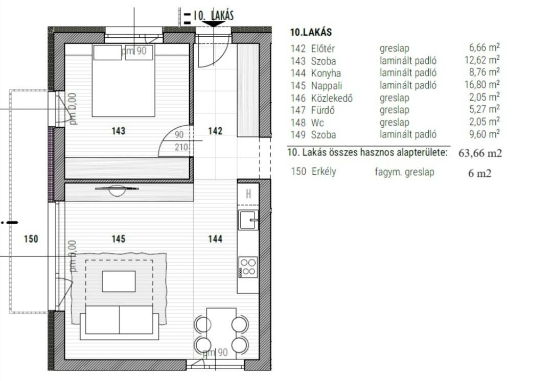
- 3-izbový byt č. 9: 65,30 m2 + 2,80 m2 balkón – cena: 131.625 EUR - 52.650.000 HUF - REZERVOVANÝ
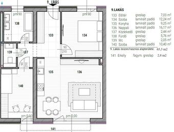
- 2-izbový byt č. 10: 63,66 m2 + 6,00 m2 balkón – cena: 127.425 EUR - 50.970.000 HUF - REZERVOVANÝ
Podkrovie:
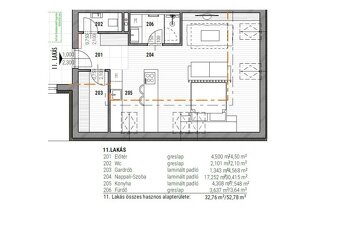
- 1-izbový byt č. 11: 32,76 m2 – cena: 77.370 EUR – 30.175.000 HUF - REZERVOVANÝ
- 1-izbový byt č. 12: 35,48 m2 – cena: 77.370 EUR - 30.175.000 HUF
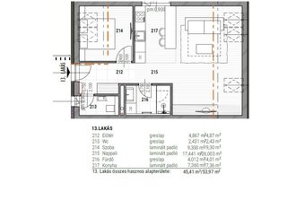
- 2-izbový byt č. 13: 45,41 m2 – cena: 92.200 EUR – 36.880.000 HUF - REZERVOVANÝ
- 1-izbový byt č. 16: 36,34 m2 – cena: 78.800 EUR – 30.727.000 HUF
K bytom je možné dokúpiť:
Kobku: 2.800 EUR - 1.090.000 HUF
Vonkajšie parkovacie státie: 3.975 EUR - 1.550.000 HUF
Garáž: 19.560 EUR - 7.590.000 HUF
V každom byte zabezpečuje kúrenie a ohrev vody tepelné čerpadlo s podlahovým kúrením.
Obec Hegyeshalom má 3700 obyvateľov ponúka kompletnú občiansku vybavenosť (obchody, ambulancia lekára, lekáreň, škôlka, jasle, základná škola s vyučovacím jazykom nemeckým, kostol) a skvelú dostupnosť do Bratislavy: centrum hlavného mesta je vzdialené 32 km (22 minút po diaľnici). Podobne rýchlo sa dá dostať po diaľnici aj do Viedne.
Pre dohodnutie obhliadky a pre viac informácií nás prosím kontaktuje na čísle uvedenom nižšie.
Cena je orientačná (kurz 1 EUR = 390 HUF). Cena v domácej mene začína od 30.175.000 HUF. Uvedené ceny sú vrátane provízie kancelárie Home 4 Life s. r. o., ktorá zahŕňa tlmočenie, servis pred podpisom kúpnej zmluvy a tiež pomoc pri prehlásení vlastníka na úradoch a u dodávateľov energií. Ku kúpnej cene je potrebné pripočítať poplatok za spísanie a preklad zmluvy u autorizovaného advokáta.
Hľadáte najvhodnejší spôsob financovania? Pomôžeme Vám nájsť riešenie za súčinnosti skúsených finančných poradcov.
Kontakt: +421950375596 home4lifesro@gmail.com – kontaktovať nás môžete aj cez víkend.
Na predaj sú ešte nasledovné byty s dokončením do stavu holobyt v 10/2025:
Poschodie:
- 2,5-izbový byt č. 5: 51,59m2 + 1,98 m2 balkón – cena: 105.705 EUR – 42.282.000 HUF - REZERVOVANÝ
- 2-izbový byt č. 6: 41,38 m2 + 1,50 m2 balkón – cena: 88.000 EUR - 35.200.000 HUF - REZERVOVANÝ
- 2-izbový byt č. 8: 43,59 m2 + 1,50 m2 balkón – cena: 94.100 EUR - 36.700.000 HUF
- 3-izbový byt č. 9: 65,30 m2 + 2,80 m2 balkón – cena: 131.625 EUR - 52.650.000 HUF - REZERVOVANÝ
- 2-izbový byt č. 10: 63,66 m2 + 6,00 m2 balkón – cena: 127.425 EUR - 50.970.000 HUF - REZERVOVANÝ
Podkrovie:
- 1-izbový byt č. 11: 32,76 m2 – cena: 77.370 EUR – 30.175.000 HUF - REZERVOVANÝ
- 1-izbový byt č. 12: 35,48 m2 – cena: 77.370 EUR - 30.175.000 HUF
- 2-izbový byt č. 13: 45,41 m2 – cena: 92.200 EUR – 36.880.000 HUF - REZERVOVANÝ
- 1-izbový byt č. 16: 36,34 m2 – cena: 78.800 EUR – 30.727.000 HUF
K bytom je možné dokúpiť:
Kobku: 2.800 EUR - 1.090.000 HUF
Vonkajšie parkovacie státie: 3.975 EUR - 1.550.000 HUF
Garáž: 19.560 EUR - 7.590.000 HUF
V každom byte zabezpečuje kúrenie a ohrev vody tepelné čerpadlo s podlahovým kúrením.
Obec Hegyeshalom má 3700 obyvateľov ponúka kompletnú občiansku vybavenosť (obchody, ambulancia lekára, lekáreň, škôlka, jasle, základná škola s vyučovacím jazykom nemeckým, kostol) a skvelú dostupnosť do Bratislavy: centrum hlavného mesta je vzdialené 32 km (22 minút po diaľnici). Podobne rýchlo sa dá dostať po diaľnici aj do Viedne.
Pre dohodnutie obhliadky a pre viac informácií nás prosím kontaktuje na čísle uvedenom nižšie.
Cena je orientačná (kurz 1 EUR = 390 HUF). Cena v domácej mene začína od 30.175.000 HUF. Uvedené ceny sú vrátane provízie kancelárie Home 4 Life s. r. o., ktorá zahŕňa tlmočenie, servis pred podpisom kúpnej zmluvy a tiež pomoc pri prehlásení vlastníka na úradoch a u dodávateľov energií. Ku kúpnej cene je potrebné pripočítať poplatok za spísanie a preklad zmluvy u autorizovaného advokáta.
Hľadáte najvhodnejší spôsob financovania? Pomôžeme Vám nájsť riešenie za súčinnosti skúsených finančných poradcov.
Kontakt: +421950375596 home4lifesro@gmail.com – kontaktovať nás môžete aj cez víkend.
|
| |||||||||||||||||||||||||||||||
Kontaktovať inzerenta e-mailom
Kontaktovať e-mailom môže iba overený užívateľ.
Overenie je zadarmo.
Vaše telefónne číslo *
Kontaktovať e-mailom môže iba overený užívateľ.
Overenie je zadarmo.
Vaše telefónne číslo *


