NA PRENÁJOM PRIESTORY PRE AMBULANCIU LEKÁRA, SENICA
- TOP - [24.12. 2025]Zmazať/ Upraviť/ Topovať

























Priestory určené pre ambulanciu lekára sa nachádzajú v polyfunkčnom dome v centre mesta na prvom podlaží s výťahom a bezberiérovým prístupom.
Priestor je už skolaudovaný na zdravotnícke účely, čo v praxi znamená, že nemusíte čakať na zdĺhavý proces kolaudácie, priestory sú plnohodnotne pripravené na užívanie.
● bezbariérový vstup, výborná dostupnosť priamo z frekventovaného chodníka
● priestory sú čerstvo vymaľované, položená nová podlaha, samostatná klimatizácia
● v budove sa nachádzajú ďalšie ambulancie aj lekáreň
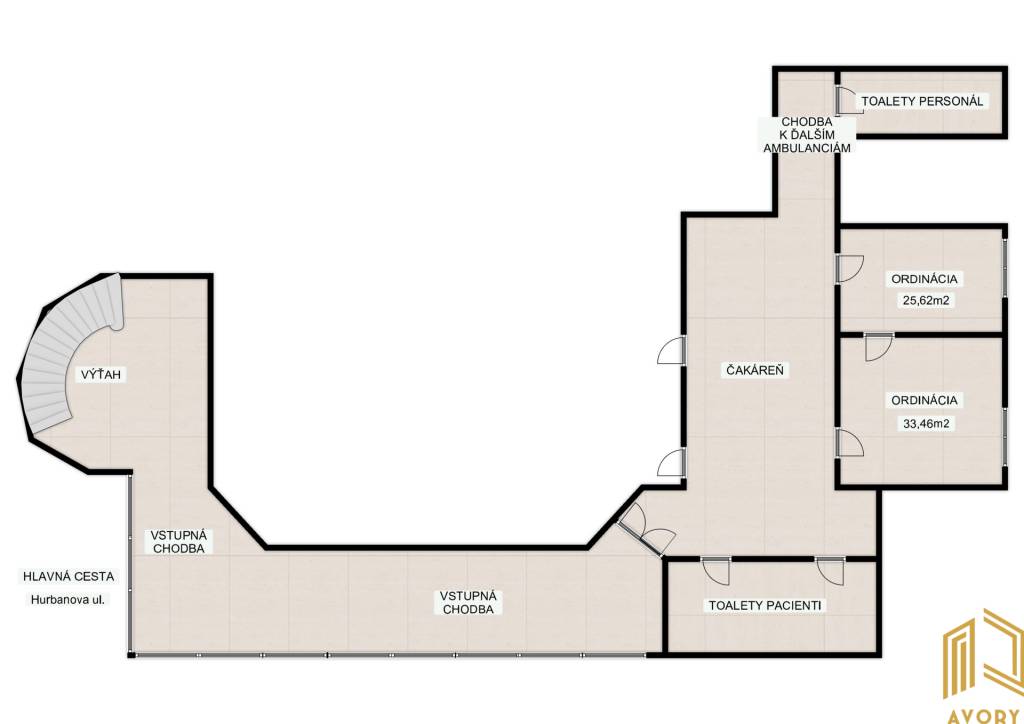
AVORY Realitné Centrum vám ponúka na prenájom veľmi pekný komerčný priestor, ktorý bol v minulosti využívaný ako ambulancia lekára. Je funkčne rozdelený na čakáreň, prijímaciu časť, ambulanciu a zázemie lekára. Jedna miestnosť bola využívaná pre podávanie infúznej liečby. Toalety sú spoločné na chodbe.
► K dispozícii sú dve miestnosti (33,46m2 a 25,62m2), ktoré sú prepojené dverami, no do každej je aj priamy vstup z chodby. Čakáreň tvorí otvorený priestor o rozlohe 45m2. Podrobnú dispozíciu nájdete v priloženom pôdoryse.
Mesačný nájom 2,-EUR+DPH/m2/mesiac + energie a poplatky. Cena nájmu závisí od dĺžky nájmu, výmery a požadovaných zmien.
Výška kaucie ako aj bližšie špecifikácie nájomného vzťahu je na osobnej dohode.
Radi vám priestor predstavíme osobne po dohode obhliadky.
Za spotrebu elektrickej energie si klient platí skutočnú spotrebu v prenajatom priestore – každý má svoj podružný elektromer, plyn sa rozpočítava podľa m2 prenajatej plochy, spotreba vody v priestore sa platí skutočná spotreba, vlastné vodomery v priestore.
Nadštandardný priestor, ktorý spĺňa požiadavky Regionálneho Ústavu Verejného Zdravotníctva, odporúčame prenajať pre kvalitného poskytovateľa zdravotnej starostlivosti.
Túto ponuku nájdete výhradne v AVORY Realitné Centrum
© AVORY Real Estate Company, s.r.o, - text, fotografie a pôdorys sú dielom a majetkom realitnej kancelárie AVORY Realitné Centrum.
Kontakt / obhliadky: Monika Krčová – certifikovaný realitný maklér
e-mail: monika.krcova@avoryreal.sk
tel. č. 0908/561 713
office: Štefánikova 697, 905 01 Senica
AVORY Realitné Centrum, robíme svet realít lepším miestom.
Priestor je už skolaudovaný na zdravotnícke účely, čo v praxi znamená, že nemusíte čakať na zdĺhavý proces kolaudácie, priestory sú plnohodnotne pripravené na užívanie.
● bezbariérový vstup, výborná dostupnosť priamo z frekventovaného chodníka
● priestory sú čerstvo vymaľované, položená nová podlaha, samostatná klimatizácia
● v budove sa nachádzajú ďalšie ambulancie aj lekáreň
AVORY Realitné Centrum vám ponúka na prenájom veľmi pekný komerčný priestor, ktorý bol v minulosti využívaný ako ambulancia lekára. Je funkčne rozdelený na čakáreň, prijímaciu časť, ambulanciu a zázemie lekára. Jedna miestnosť bola využívaná pre podávanie infúznej liečby. Toalety sú spoločné na chodbe.
► K dispozícii sú dve miestnosti (33,46m2 a 25,62m2), ktoré sú prepojené dverami, no do každej je aj priamy vstup z chodby. Čakáreň tvorí otvorený priestor o rozlohe 45m2. Podrobnú dispozíciu nájdete v priloženom pôdoryse.
Mesačný nájom 2,-EUR+DPH/m2/mesiac + energie a poplatky. Cena nájmu závisí od dĺžky nájmu, výmery a požadovaných zmien.
Výška kaucie ako aj bližšie špecifikácie nájomného vzťahu je na osobnej dohode.
Radi vám priestor predstavíme osobne po dohode obhliadky.
Za spotrebu elektrickej energie si klient platí skutočnú spotrebu v prenajatom priestore – každý má svoj podružný elektromer, plyn sa rozpočítava podľa m2 prenajatej plochy, spotreba vody v priestore sa platí skutočná spotreba, vlastné vodomery v priestore.
Nadštandardný priestor, ktorý spĺňa požiadavky Regionálneho Ústavu Verejného Zdravotníctva, odporúčame prenajať pre kvalitného poskytovateľa zdravotnej starostlivosti.
Túto ponuku nájdete výhradne v AVORY Realitné Centrum
© AVORY Real Estate Company, s.r.o, - text, fotografie a pôdorys sú dielom a majetkom realitnej kancelárie AVORY Realitné Centrum.
Kontakt / obhliadky: Monika Krčová – certifikovaný realitný maklér
e-mail: monika.krcova@avoryreal.sk
tel. č. 0908/561 713
office: Štefánikova 697, 905 01 Senica
AVORY Realitné Centrum, robíme svet realít lepším miestom.
|
| |||||||||||||||||||||||||||||||
Kontaktovať inzerenta e-mailom
Kontaktovať e-mailom môže iba overený užívateľ.
Overenie je zadarmo.
Vaše telefónne číslo *
Kontaktovať e-mailom môže iba overený užívateľ.
Overenie je zadarmo.
Vaše telefónne číslo *




