ZREKONŠTRUOVANÝ 3-IZBOVÝ BYT, PREŠOV, EXNÁROVA UL.
- [22.12. 2025]Zmazať/ Upraviť/ Topovať

























Kompletne zrekonštruovaný a šikovne dispozične riešený 3-izbový byt na Exnárovej ulici v Prešove môže byť práve tým bytom, ktorý hľadáte.
Každý meter štvorcový tu má svoje využitie a práve preto toto bývanie poslúži jednotlivcovi, párom aj menšej rodine. Je to byt, ktorý môže byť vaším štartovacím bývaním, ale nebude vás obmedzovať ani v prípade, že budete potrebovať o izbu viac.
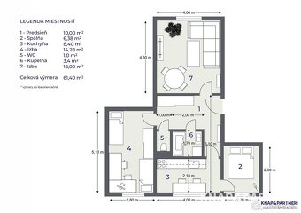
Dispozične byt pozostáva z:
• priestrannej vstupnej chodby s veľkou skriňou
• veľkej obývacej izby
• detskej izby (alebo budúcej spálne)
• menšej spálne (z ktorej môže byť pracovňa či hosťovská izba)
• kuchyne
• kúpeľne a samostatného WC
Podlahová plocha bytu je 61,4 m2 a patrí k nemu aj pivnica.
Mesačné náklady v tomto byte sú aktuálne nastavené na spotrebu 3-člennej rodiny s vyčíslením už pre rok 2026 na sumu 201,40€ mesačne. V roku 2025 boli mesačné platby na úrovni cca 190€/mesiac.
Byt prešiel v roku 2023 rekonštrukciou vrátane nových rozvodov elektriny v bytovom jadre (pre kúpeľňu a kuchyňu)
Rekonštrukciou - zateplením, prešiel aj panelový bytový dom. V celom objekte boli tiež vymenené stupačky.
DUPOT? POVOLENÝ!
Nachádza sa na vyvýšenom prízemí, čo je výhoda v prípade, že máte deti alebo domácich miláčikov - dupotom pod sebou nebudete nikoho rušiť. A v prípade, že by bol výťah v bytovom dome nakrátko odstavený, vás sa to dotkne najmenej. Niekoľko schodov a ste doma! Túto skutočnosť oceníte už pri sťahovaní. Každý máme predsa aj väčšie vecí, ktoré sa do výťahu nezmestia.
VHODNÝ NA OKAMŽITÉ NASŤAHOVANIE
Toto je byt, v ktorom si stačí priniesť základné zariadenie (posteľ, zariadenie obývačky a pod.) a môžete bývať. Nie sú tu nutné žiadne zložité a finančne náročné rekonštrukcie. Čaká vás moderná a praktická kuchynská linka so spotrebičmi či pekná kúpeľňa s rohovou vaňou.
VŠETKO NA SKOK
Máloktoré miesto na bývanie v Prešove má v pešej dostupnosti toľko miest ako práve Exnárova ulica na Sekčove. Blízkosť škôlok, škôl, obchodných centier MAX aj EPERIA alebo najhustejšia sieť MHD spojení so zvyškom mesta. Auto budete potrebovať minimálne, ale ak ho vlastníte, parkovať môžete kdekoľvek v blízkosti bytového domu, v súčasnosti bez potreby kúpy rezidentskej karty.
Neváhajte nás kontaktovať a dohodnúť si obhliadku tejto nehnuteľnosti na 0903 704 937, alebo emailom na knap@knapapartneri.sk
Každý meter štvorcový tu má svoje využitie a práve preto toto bývanie poslúži jednotlivcovi, párom aj menšej rodine. Je to byt, ktorý môže byť vaším štartovacím bývaním, ale nebude vás obmedzovať ani v prípade, že budete potrebovať o izbu viac.
Dispozične byt pozostáva z:
• priestrannej vstupnej chodby s veľkou skriňou
• veľkej obývacej izby
• detskej izby (alebo budúcej spálne)
• menšej spálne (z ktorej môže byť pracovňa či hosťovská izba)
• kuchyne
• kúpeľne a samostatného WC
Podlahová plocha bytu je 61,4 m2 a patrí k nemu aj pivnica.
Mesačné náklady v tomto byte sú aktuálne nastavené na spotrebu 3-člennej rodiny s vyčíslením už pre rok 2026 na sumu 201,40€ mesačne. V roku 2025 boli mesačné platby na úrovni cca 190€/mesiac.
Byt prešiel v roku 2023 rekonštrukciou vrátane nových rozvodov elektriny v bytovom jadre (pre kúpeľňu a kuchyňu)
Rekonštrukciou - zateplením, prešiel aj panelový bytový dom. V celom objekte boli tiež vymenené stupačky.
DUPOT? POVOLENÝ!
Nachádza sa na vyvýšenom prízemí, čo je výhoda v prípade, že máte deti alebo domácich miláčikov - dupotom pod sebou nebudete nikoho rušiť. A v prípade, že by bol výťah v bytovom dome nakrátko odstavený, vás sa to dotkne najmenej. Niekoľko schodov a ste doma! Túto skutočnosť oceníte už pri sťahovaní. Každý máme predsa aj väčšie vecí, ktoré sa do výťahu nezmestia.
VHODNÝ NA OKAMŽITÉ NASŤAHOVANIE
Toto je byt, v ktorom si stačí priniesť základné zariadenie (posteľ, zariadenie obývačky a pod.) a môžete bývať. Nie sú tu nutné žiadne zložité a finančne náročné rekonštrukcie. Čaká vás moderná a praktická kuchynská linka so spotrebičmi či pekná kúpeľňa s rohovou vaňou.
VŠETKO NA SKOK
Máloktoré miesto na bývanie v Prešove má v pešej dostupnosti toľko miest ako práve Exnárova ulica na Sekčove. Blízkosť škôlok, škôl, obchodných centier MAX aj EPERIA alebo najhustejšia sieť MHD spojení so zvyškom mesta. Auto budete potrebovať minimálne, ale ak ho vlastníte, parkovať môžete kdekoľvek v blízkosti bytového domu, v súčasnosti bez potreby kúpy rezidentskej karty.
Neváhajte nás kontaktovať a dohodnúť si obhliadku tejto nehnuteľnosti na 0903 704 937, alebo emailom na knap@knapapartneri.sk
|
| |||||||||||||||||||||||||||||||
Kontaktovať inzerenta e-mailom
Kontaktovať e-mailom môže iba overený užívateľ.
Overenie je zadarmo.
Vaše telefónne číslo *
Kontaktovať e-mailom môže iba overený užívateľ.
Overenie je zadarmo.
Vaše telefónne číslo *




