TOP INVESTÍCIA Rezidencia Štúrova, lukratívny 3 Izb. byt 2C
- [22.12. 2025]Zmazať/ Upraviť/ Topovať





























Typ: 3-izbový byt
Ulica: Štúrova 12
Mestská časť: Centrum
Obec: Piešťany
Ponúkame Vám, lukrativnu nehnuteľnosť, nový 3 izbový byt 2C v novostavbe v prekrásnom, vynovenom, zelenom centre kúpeľného mesta Piešťany - Rezidencia Štúrova.
POZOR! Posledné dva úžasné byty v predaji!!!! Dva najlukratívnejšie 3 izbové byty projektu Štúrova Rezidence Piešťany!!!
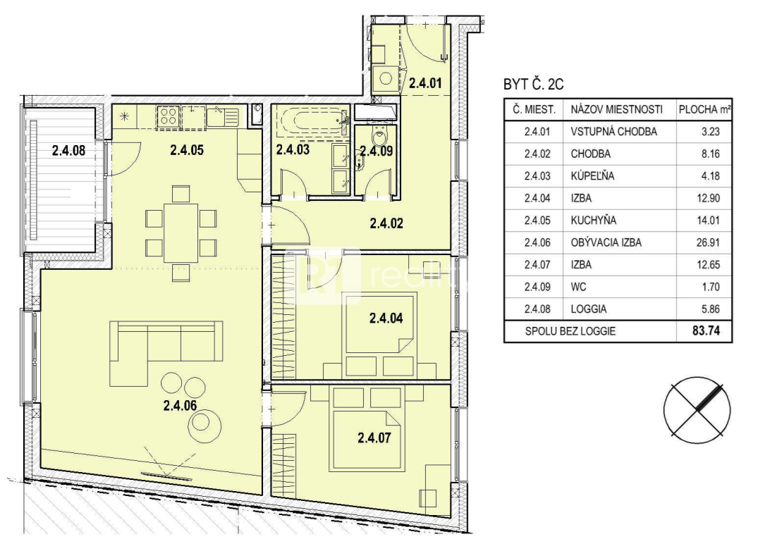
Jedná sa o najväčší 3 izbový byt na 2 NP veľkorysej výmery 83,74 m2, situovaný na kraji uličného krídla (V-Z orientácie) na 2 NP polyfunkčného domu s výťahom. Byt je prakticky dispozične riešený, pozostáva z priestrannej, slnečnej dennej časti západnej orientácie s loggiou výmery 5,86 m2 a dvoch spální vhodnej, východnej orientácie. K bytu prislúcha pivničná kobka výmery 3,51 m2, situovaná na rovnakom podlaží v blízkosti bytu. V cene bytu je zahrnuté vyhotovenie bytu v štandarde (rekuperácia, klimatizácia, podlahové kúrenie, podlahy, interiérové a vchodové bezpečnostné dvere, omietky, obklady, sanita v kúpeľni a WC) a jedno kryté parkovacie miesto, situované na prízemí. Možnosť prikúpiť ďaľšie parkovacie miesta v nádvorí objektu za 14.000,-EUR s DPH.
Bytový dom Rezidencia Štúrova, ponúkne 2/3 izbové byty, príjemné zázemie pre kvalitné bývanie svojich obyvateľov: kľudná lokalita v jednosmernej uličke pri parku, dostatok parkovacích možností v súkromnom nádvorí, krby v bytoch na 4 NP (voliteľná opcia), pivničné kobky s vlastnou el.prípojkou pre nabíjanie e-bikov a pod. Predpokladaná nízka energetická náročnosť, budova bude vyhotovená v štandarde podľa kritérií pre energetickú triedu A0. Možnosť odpočtu DPH, uvedené ceny sú vrátane DPH.
Začiatok výstavby: 1/2025
Predpokladané ukončenie výstavby: 5/2026
Predpokladané odovzdanie bytov po kolaudácii: 07/2026
Zoznámte sa s novým projektom v zelenom srdci Piešťan:
Dohodnite si stretnutie s maklérom projektu alebo pozrite bližšie informácie o celom projekte tu: sturova.sk
Exkluzívny partner pre predaj bytov v Rezidencii Štúrova je R1reality, Kollárova 17, Piešťany (prezentačné miesto projektu do jeho výstavby nájdete v našej kancelárii oproti Mestkému úradu).
Neváhajte začať cestu za svojim novým, vysneným domovom už dnes - prvé byty sú už rezervované!
R1reality.....rýchla cesta k novému bývaniu!
Status: aktívne
Vlastníctvo: neurčené
Úžitková plocha: 81.39 m2
Podlahová plocha: 83.74 m2
Skladová plocha: 3.51 m2
Stav: novostavba
Počet izieb: 3
Energetický certifikát: A
Energetická náročnosť budovy: Nízkoenergetický
Typ budovy: tehla
Typ výbavy: čiastočne vybavený
Loggia: áno
Garáž: áno
Pivnica: áno
Sklad: áno
Výťah: áno
Rok výstavby: 2024
Rok kolaudácie: 2026
Počet poschodí od prízemia vyššie: 3
Pozícia: vyššie poschodie
Poschodie: 2
Celková plocha: 83.74 m2
Plocha loggie: 5.86 m2
Počet logií: 1
Počet garáží: 1
Plocha garáže: 9 m2
P
Ulica: Štúrova 12
Mestská časť: Centrum
Obec: Piešťany
Ponúkame Vám, lukrativnu nehnuteľnosť, nový 3 izbový byt 2C v novostavbe v prekrásnom, vynovenom, zelenom centre kúpeľného mesta Piešťany - Rezidencia Štúrova.
POZOR! Posledné dva úžasné byty v predaji!!!! Dva najlukratívnejšie 3 izbové byty projektu Štúrova Rezidence Piešťany!!!
Jedná sa o najväčší 3 izbový byt na 2 NP veľkorysej výmery 83,74 m2, situovaný na kraji uličného krídla (V-Z orientácie) na 2 NP polyfunkčného domu s výťahom. Byt je prakticky dispozične riešený, pozostáva z priestrannej, slnečnej dennej časti západnej orientácie s loggiou výmery 5,86 m2 a dvoch spální vhodnej, východnej orientácie. K bytu prislúcha pivničná kobka výmery 3,51 m2, situovaná na rovnakom podlaží v blízkosti bytu. V cene bytu je zahrnuté vyhotovenie bytu v štandarde (rekuperácia, klimatizácia, podlahové kúrenie, podlahy, interiérové a vchodové bezpečnostné dvere, omietky, obklady, sanita v kúpeľni a WC) a jedno kryté parkovacie miesto, situované na prízemí. Možnosť prikúpiť ďaľšie parkovacie miesta v nádvorí objektu za 14.000,-EUR s DPH.
Bytový dom Rezidencia Štúrova, ponúkne 2/3 izbové byty, príjemné zázemie pre kvalitné bývanie svojich obyvateľov: kľudná lokalita v jednosmernej uličke pri parku, dostatok parkovacích možností v súkromnom nádvorí, krby v bytoch na 4 NP (voliteľná opcia), pivničné kobky s vlastnou el.prípojkou pre nabíjanie e-bikov a pod. Predpokladaná nízka energetická náročnosť, budova bude vyhotovená v štandarde podľa kritérií pre energetickú triedu A0. Možnosť odpočtu DPH, uvedené ceny sú vrátane DPH.
Začiatok výstavby: 1/2025
Predpokladané ukončenie výstavby: 5/2026
Predpokladané odovzdanie bytov po kolaudácii: 07/2026
Zoznámte sa s novým projektom v zelenom srdci Piešťan:
Dohodnite si stretnutie s maklérom projektu alebo pozrite bližšie informácie o celom projekte tu: sturova.sk
Exkluzívny partner pre predaj bytov v Rezidencii Štúrova je R1reality, Kollárova 17, Piešťany (prezentačné miesto projektu do jeho výstavby nájdete v našej kancelárii oproti Mestkému úradu).
Neváhajte začať cestu za svojim novým, vysneným domovom už dnes - prvé byty sú už rezervované!
R1reality.....rýchla cesta k novému bývaniu!
Status: aktívne
Vlastníctvo: neurčené
Úžitková plocha: 81.39 m2
Podlahová plocha: 83.74 m2
Skladová plocha: 3.51 m2
Stav: novostavba
Počet izieb: 3
Energetický certifikát: A
Energetická náročnosť budovy: Nízkoenergetický
Typ budovy: tehla
Typ výbavy: čiastočne vybavený
Loggia: áno
Garáž: áno
Pivnica: áno
Sklad: áno
Výťah: áno
Rok výstavby: 2024
Rok kolaudácie: 2026
Počet poschodí od prízemia vyššie: 3
Pozícia: vyššie poschodie
Poschodie: 2
Celková plocha: 83.74 m2
Plocha loggie: 5.86 m2
Počet logií: 1
Počet garáží: 1
Plocha garáže: 9 m2
P
|
| |||||||||||||||||||||||||||||||
Kontaktovať inzerenta e-mailom
Kontaktovať e-mailom môže iba overený užívateľ.
Overenie je zadarmo.
Vaše telefónne číslo *
Kontaktovať e-mailom môže iba overený užívateľ.
Overenie je zadarmo.
Vaše telefónne číslo *
Podobné inzeráty
3-izbový byt so záhradou a garážou – Sadová ulica, Piešťany - [2.1. 2026]Typ: 3-izbový byt
Ulica: Sadová
Mestská časť: Prednádražie
Obec: Piešťany
Ponúkame na predaj 3-izbový byt v tichej lokalite Piešťan na Sadovej ulici, vhodný pre rodinné bývanie aj dlhodobú investíciu.
Na druhom poschodí menšieho tehlového bytového domu so štyrmi bytmi vás čaká príjemné rodinn ...
185 000 €
Piešťany
921 01
921 01
359 x
Označiť zlý inzerát Chybnú kategóriu Ohodnotiť užívateľa Zmazať/Upraviť/Topovať
IBA U NÁS Elegantný 3+1 byt, lodžia,kompletná rekonštrukci - [2.1. 2026]AstonReal ponúka vo výhradnom zastúpení majiteľa na predaj luxusný, moderný a kompletne zariadený 3-izbový byt s lodžiou o celkovej výmere 67m2 na sídlisku Adama Trajana v Piešťanoch. Byt sa nachádza na druhom poschodí zo 7 v zateplenom panelovom dome vo vchode s milými a tichými susedmi. Výhodou je ...
182 900 €
Piešťany
921 01
921 01
324 x
Označiť zlý inzerát Chybnú kategóriu Ohodnotiť užívateľa Zmazať/Upraviť/Topovať
NOVÁ CENA/ VEĽKOMETRÁŽNY 3- izbový byt centrum Piešťany - [1.1. 2026]Ponúkame na predaj teraz ešte za výhodnejšiu sumu veľkometrážny staromestský 3-izbový byt s výmerou podlahovej plochy 97 m², nachádzajúci sa na 1. poschodí zrekonštruovaného tehlového bytového domu v prestížnej lokalite mesta Piešťany, vzdialenej od centra mesta len 2 minúty chôdze. Byt disponuje lo ...
219 000 €
Piešťany
921 01
921 01
567 x
Označiť zlý inzerát Chybnú kategóriu Ohodnotiť užívateľa Zmazať/Upraviť/Topovať
Nový 3 izbový byt NOVOSTAVBA BANKA / Banka pri Piešťanoch - [31.12. 2025]Ponúkame Vám na predaj nový, pekný 3 izbový byt v novostavbe v obci Banka, neďaleko Kúpeľného ostrova a kúpeľného mesta Piešťany. Byt o celkovej výmere 69,29 m2 sa nachádza na 3. podlaží v tehlovom bytovom dome. Dispozične pozostáva z 3 obytných miestností a príslušenstva- priestranná ...
173 990 €
Piešťany
921 01
921 01
622 x
Označiť zlý inzerát Chybnú kategóriu Ohodnotiť užívateľa Zmazať/Upraviť/Topovať
Exkluzívny 4 izbový apartmán na brehu Sĺňavy, Piešťany - [31.12. 2025]Ponúkame Vám výnimočný 4 izbový apartmán v exkluzívnom, jedinečnom apartmánovom rezorte LINEA na brehu jazera Sĺňava a rieky Váh v blízkosti kúpeľov Piešťany:
Ide o priestranný apartmán s výmerou 110 m2 (z toho činí 9,8 m2 výmera balkóna), dispozične vhodne členený-obývacia izb ...
349 000 €
Piešťany
921 01
921 01
582 x
Označiť zlý inzerát Chybnú kategóriu Ohodnotiť užívateľa Zmazať/Upraviť/Topovať
Lukratívny 3 izbový byt 2A / Rezidencia Štúrova / Centrum Pi - [31.12. 2025]Typ: 3-izbový byt
Ulica: Štúrova 12
Mestská časť: Centrum
Obec: Piešťany
Ponúkame Vám nový 3 izbový byt 2A v lukratívnej novostavbe vo vynovenom zelenom centre kúpeľného mesta Piešťany - Rezidencia Štúrova. Posledné dva úžasné byty v predaji!!!! Dva najlukratívnejšie 3 izbo ...
327 900 €
Piešťany
921 01
921 01
604 x
Označiť zlý inzerát Chybnú kategóriu Ohodnotiť užívateľa Zmazať/Upraviť/Topovať
Nový 3 izbový byt NOVOSTAVBA BANKA / Banka pri Piešťanoch - [31.12. 2025]Typ: 3-izbový byt
Ulica: Podhorská
Obec: Banka
Ponúkame Vám na predaj nový, pekný 3 izbový byt v novostavbe v obci Banka, neďaleko Kúpeľného ostrova a kúpeľného mesta Piešťany. Byt o celkovej výmere 69,29 m2 sa nachádza na 3. podlaží v tehlovom bytovom dome. Dispozične pozostáva z 3&n ...
173 990 €
Piešťany
921 01
921 01
602 x
Označiť zlý inzerát Chybnú kategóriu Ohodnotiť užívateľa Zmazať/Upraviť/Topovať
BRANDreal – 2 iz. nadštandardný tehlový byt v centre, 63 m², - TOP - [4.1. 2026]Rekonštrukciu bytu realizovala naša realitná kancelária, vieme vám zodpovedať všetky vaše otázky od použitých materiálov, cez zmenu dispozičného riešenia, až po dodávateľov služieb a spotrebičov.
Ponúkame vám na predaj zrekonštruovaný, nadštandardný 2 izbový byt nachádzajúci sa v centre mesta, na ...
177 900 €
Piešťany
921 01
921 01
614 x
Označiť zlý inzerát Chybnú kategóriu Ohodnotiť užívateľa Zmazať/Upraviť/Topovať
Luxusný 2 izbový byt 63m2,Vajanského , Piešťany - [30.12. 2025]Typ: 2-izbový byt
Ulica: Vajanského
Obec: Piešťany
VAŠE REALITY - realitná kancelária Vám exkluzívne ponúka na predaj kompletne rekonštruovaný a zariadený 2 izbový byt s výmerou 63 m2 . Nachádza sa v širšom centre mesta Piešťany na Vajanského ulici s vlastným dvorom. V bytovom dome , na ...
185 000 €
Piešťany
921 01
921 01
585 x
Označiť zlý inzerát Chybnú kategóriu Ohodnotiť užívateľa Zmazať/Upraviť/Topovať
3 IZB BYT 69,29m² + balkón 5 m², novostavba holobyt BANKA - [30.12. 2025]189820 - V blízkosti Slovenských liečebných kúpeľov Piešťany v obci Banka na Podhorskej ulici ponúkame na predaj 3 -izbový byt umiestnený na 1. posch. v novostavbe 3-podlažného, zatepleného, skolaudovaného, tehlového bytového domu. Bytový komplec PODHORSKÁ pozostáva z dvoch bytových domov, každý s 1 ...
173 900 €
Piešťany
921 01
921 01
532 x
Označiť zlý inzerát Chybnú kategóriu Ohodnotiť užívateľa Zmazať/Upraviť/Topovať








