Na predaj areál, pozemok a dva domy v
- [22.12. 2025]Zmazať/ Upraviť/ Topovať






























obci na okraji Malých Karpát, dobrá dostupnosť do Trnava, Piešťany, Smolenice, Hlohovec...autom cca 20 min.
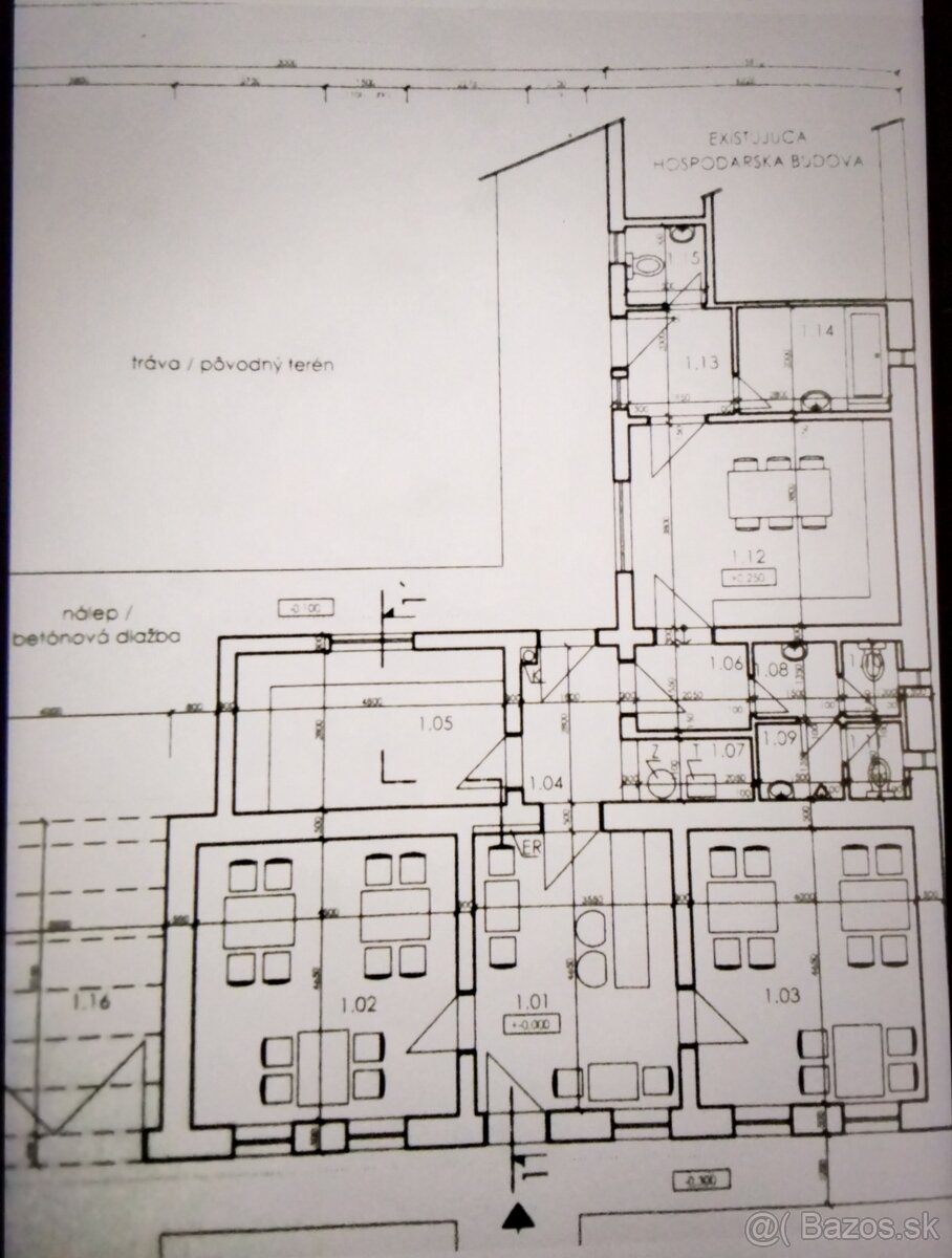
Vidiecka usadlosť:veľkorysý slnečný pozemok takmer 80á,multifunkčný priestor
🏠 Rozdelenie na bývanie s novostavbou rodinného domu.🏡Ďalšia časť na podnikanie s priestorom schváleným a vedeným,ako prevádzka. Okamžité podnikanie v agroturistike,gastro zariadenie, mini farma, fun park, detská zóna-aktivity, prenájom, ubytovanie....
🐎 Hospodárske budovy, sklad, dielňa, stajňa, klenbová pivnica, elektrika,voda..
Každý dom má samostatné siete a merače -verejný vodovod, plyn, elektrika,okrem toho sú na pozemku 3 studne.
Rodinný dom je moderný, priestranný 150m2,4 izbový,2 kúpeľne s 2 x WC, vstupná hala, veľká kuchyňa,samostatná práčovňa/technická. Obývacia izba zo vstupom na terasu a do záhrady.
Prevádzka je 190m2,4 izbový,3x WC, kuchyňa, kúpeľňa, vstupná hala.Čiastočná rekonštrukcia, vidiecka stavba, vhodná pre štýlovú reštauráciu, povolenia k dispozícii.
#farma#usadlost#sidlofirmy#agroturistika#glamping#stavebnepozemky#zivotnavidieku
✅Areál je oplotený, pozemok pre bývanie je ešte samostatne oddelený od časti pre podnikanie.
✔️Priestor pre parkovanie vozidiel majiteľov, zákazníkov, návštevníkov .
Nachádza sa v obci Dolný Lopašov,takmer na okraji obce.
🍀pozemok o rozlohe 7888m2 je prístupný aj zo zadnej časti po udržiavanej ceste.Využitie Aj ako stavebné pozemky v UPI.Výhoda prístupu z dvoch strán Prevažne rovinatý pozemok+mierny svah.
Podrobnejšie informácie telefonicky 0903411961,0904696678
Hoci sa Farma predáva stále prebiehajú aktivity ako prenájom, ustajnenie koní a poníkov 24/7 vonku 2 x prístrešok, stajňa pre 2 kone, jazdy na poníkoch, drobnochov.
Nehnuteľnosť je bez ťarchy, kúpou voľné, predáva sa bez zvierat, bez zariadenia.
Zmluvy,vklady, kompletné služby právnickej kancelárie
whiteponyfarmaabistro@gmail.com
Vidiecka usadlosť:veľkorysý slnečný pozemok takmer 80á,multifunkčný priestor
🏠 Rozdelenie na bývanie s novostavbou rodinného domu.🏡Ďalšia časť na podnikanie s priestorom schváleným a vedeným,ako prevádzka. Okamžité podnikanie v agroturistike,gastro zariadenie, mini farma, fun park, detská zóna-aktivity, prenájom, ubytovanie....
🐎 Hospodárske budovy, sklad, dielňa, stajňa, klenbová pivnica, elektrika,voda..
Každý dom má samostatné siete a merače -verejný vodovod, plyn, elektrika,okrem toho sú na pozemku 3 studne.
Rodinný dom je moderný, priestranný 150m2,4 izbový,2 kúpeľne s 2 x WC, vstupná hala, veľká kuchyňa,samostatná práčovňa/technická. Obývacia izba zo vstupom na terasu a do záhrady.
Prevádzka je 190m2,4 izbový,3x WC, kuchyňa, kúpeľňa, vstupná hala.Čiastočná rekonštrukcia, vidiecka stavba, vhodná pre štýlovú reštauráciu, povolenia k dispozícii.
#farma#usadlost#sidlofirmy#agroturistika#glamping#stavebnepozemky#zivotnavidieku
✅Areál je oplotený, pozemok pre bývanie je ešte samostatne oddelený od časti pre podnikanie.
✔️Priestor pre parkovanie vozidiel majiteľov, zákazníkov, návštevníkov .
Nachádza sa v obci Dolný Lopašov,takmer na okraji obce.
🍀pozemok o rozlohe 7888m2 je prístupný aj zo zadnej časti po udržiavanej ceste.Využitie Aj ako stavebné pozemky v UPI.Výhoda prístupu z dvoch strán Prevažne rovinatý pozemok+mierny svah.
Podrobnejšie informácie telefonicky 0903411961,0904696678
Hoci sa Farma predáva stále prebiehajú aktivity ako prenájom, ustajnenie koní a poníkov 24/7 vonku 2 x prístrešok, stajňa pre 2 kone, jazdy na poníkoch, drobnochov.
Nehnuteľnosť je bez ťarchy, kúpou voľné, predáva sa bez zvierat, bez zariadenia.
Zmluvy,vklady, kompletné služby právnickej kancelárie
whiteponyfarmaabistro@gmail.com
|
| |||||||||||||||||||||||||||||||
Podobné inzeráty
Nadštandardná 4- izbová terasová vila na Kolibe s krásnym vý - [23.12. 2025]Ponúkame na predaj exkluzívny terasový 4- izbový RD s krásnymi výhľadmi na panorámu mesta Bratislava. Dom s vlastným výťahom je situovaný v tichej komornej zóne na začiatku Koliby, ulica Svätovavrinecká.
Do spoločnej garáže môžete vojsť autom, zaparkujete a hneď pri parkovacích miestach sa nach ...
864 000 €
Bratislava
830 00
830 00
295 x
Označiť zlý inzerát Chybnú kategóriu Ohodnotiť užívateľa Zmazať/Upraviť/Topovať
ZNÍŽENÁ CENA 6- izb. RD s bazénom v blízkosti centra BA - [23.12. 2025]Ponúkame na predaj veľmi dobre dispozične riešený 6- izbový rodinný dom s krytým bazénom v pešej dostupnosti do centra mesta, na ulici Jaskový rad. Rovinatý pozemok ponúka dostatočné súkromie pre rodinné grill párty, detské zázemie, ale aj krásne výhľady na Slavín. Pred domom sú 3 pohodlné parkovaci ...
890 000 €
Bratislava
830 00
830 00
304 x
Označiť zlý inzerát Chybnú kategóriu Ohodnotiť užívateľa Zmazať/Upraviť/Topovať
Zaujímavá ponuka, na predaj priestranný investičný - [30.11. 2025]pozemok rozloha až 7 888m2, moderná novostavba rodinného domu, priľahlé gazdovstvo s domom, ponúka rôzne možnosti využitia v segmente agroturistiky a vydieckeho bývania.Kľudné, bezpečné prostredie, ucelený pozemok, voľné plochy.
v podhorskej obci do 20 min autom od Trnavy, Piešťany, Smolenice... Hl ...
1 495 000 €
Bratislava
830 00
830 00
801 x
Označiť zlý inzerát Chybnú kategóriu Ohodnotiť užívateľa Zmazať/Upraviť/Topovať
Exkluzívne na PREDAJ: Priestranný 4-podlažný rodinný dom (18 - [24.11. 2025]V exkluzívnom zastúpení ponúkame na predaj štýlový 4-podlažný rodinný dom na Pohronskej ulici, v pokojnej a vyhľadávanej časti Nového Mesta – Ľudovej štvrti. Táto zelená rezidenčná lokalita ponúka ideálnu rovnováhu medzi mestským životom a súkromím. Dom je súčasťou radovej zástavby a zaujme nielen s ...
754 900 €
Bratislava
830 00
830 00
363 x
Označiť zlý inzerát Chybnú kategóriu Ohodnotiť užívateľa Zmazať/Upraviť/Topovať
2-generačný starší rodinný dom na Kolibe s potenciálom - [9.11. 2025]Na predaj ponúkame rodinný dom na Kolibe, Chrasťova ulica.
Pôvodná časť domu z roku 1990, následne nadstavba z roku 2006 ponúka priestranné bývanie resp. podnikanie s možnosťou parkovania.
Zateplený dom s parkovaním, ktorý možno využiť ako bývanie viacčlennej rodiny, viacgeneračný resp. spojenie ...
750 000 €
Bratislava
830 00
830 00
290 x
Označiť zlý inzerát Chybnú kategóriu Ohodnotiť užívateľa Zmazať/Upraviť/Topovať
Predaj priestranného 4 izbového rodinného domu s bazénom na - [4.11. 2025]Typ: Rodinný dom
Ulica: Jalovcova
Mestská časť: Koliba
Obec: Bratislava-Nové Mesto
Realitná kancelária UPgreat Vám exkluzívne ponúka na predaj priestranný 4-izbový rodinný dom s bazénom a dvojgarážou na Kolibe, na Jalovcovej ulici – ideálny pre rodinu, ktorá hľadá komfort, dostatok priestoru a ...
799 000 €
Bratislava
830 00
830 00
656 x
Označiť zlý inzerát Chybnú kategóriu Ohodnotiť užívateľa Zmazať/Upraviť/Topovať
AXIS REAL | 5-izbový rodinný dom s garážou, BA Kramáre, Star - [31.10. 2025]POPIS DOMU:
Realitná kancelária AXIS REAL ponúka na predaj priestranný 5 – IZBOVÝ DVOJPODLAŽNÝ PODPIVNIČENÝ RODINNÝ DOM S GARÁŽOU (kolaudácia v roku 1999), ktorý sa nachádza v jednej z najžiadanejších častí Bratislavy – BRATISLAVA III – KRAMÁRE, na prestížnej a tichej ulici STÁRA KLENOVÁ. Táto loka ...
999 900 €
Bratislava
830 00
830 00
844 x
Označiť zlý inzerát Chybnú kategóriu Ohodnotiť užívateľa Zmazať/Upraviť/Topovať









