Voľná izba pre jednu osobu (spolu v 4-izb. byte len 2 osoby
- [21.12. 2025]Zmazať/ Upraviť/ Topovať




















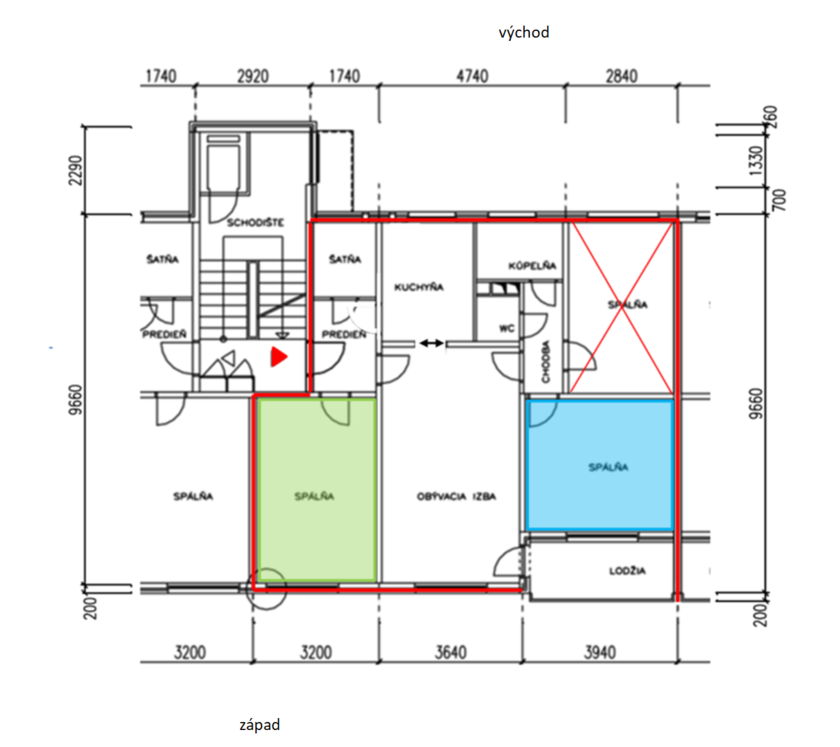
Ponúkam aj na dlhodobý prenájom slnečnú samostatnú izbu (zelená) v kompletne zariadenom štvorizbovom bauringu po rekonštrukcii v Martine na Ľadovni vo vyhľadávanom pokojnom prostredí. Byt sa nachádza na siedmom poschodí z ôsmych v zateplenom a nezaplesnenom dome s bezproblémovými susedmi a výťahom. Výhodná poloha, kompletná občianska vybavenosť, na skok do centra mesta, nemocnice aj do prírody.
Do izby je možné sa temer okamžite nasťahovať. Izba je nepriechodná, v izbe posteľ, skriňa, stôl, stolička, police,.. - viď fotografie. V druhej prenajatej izbe (modrá) je len 1 dospelá zarábajúca zodpovedná poriadkumilovná nekonfliktná priateľská osoba (rovnaké požiadavky máme aj na Vás), čiže v celom byte budete len 2 osoby, nikto iný.
K dispozícii máte aj prechodnú obývačku (20,9 m2) a príslušenstvo bytu - celkovo teda (bez štvrtej, nepoužívanej, neprístupnej, izby) cca 70 m2 plus zasklená lodžia a pivničné priestory. V teplom byte internet, TV, chladnička, kombinovaný sporák 60cm, plechy, hrnce, taniere, riady, práčka, okno v kúpeľni, umývadlo aj na WC a veľmi veľa úložného priestoru.
Zákaz fajčenia a držania zvierat v byte. Mesačný nájom 330€ vrátane energií. Dvojmesačný depozit + mesačný nájom sa platí pri podpise zmluvy. Neplatíte žiadne poplatky pre realitku!
viac foto na vegaby.webnode.sk/prenajom-bytu
Do izby je možné sa temer okamžite nasťahovať. Izba je nepriechodná, v izbe posteľ, skriňa, stôl, stolička, police,.. - viď fotografie. V druhej prenajatej izbe (modrá) je len 1 dospelá zarábajúca zodpovedná poriadkumilovná nekonfliktná priateľská osoba (rovnaké požiadavky máme aj na Vás), čiže v celom byte budete len 2 osoby, nikto iný.
K dispozícii máte aj prechodnú obývačku (20,9 m2) a príslušenstvo bytu - celkovo teda (bez štvrtej, nepoužívanej, neprístupnej, izby) cca 70 m2 plus zasklená lodžia a pivničné priestory. V teplom byte internet, TV, chladnička, kombinovaný sporák 60cm, plechy, hrnce, taniere, riady, práčka, okno v kúpeľni, umývadlo aj na WC a veľmi veľa úložného priestoru.
Zákaz fajčenia a držania zvierat v byte. Mesačný nájom 330€ vrátane energií. Dvojmesačný depozit + mesačný nájom sa platí pri podpise zmluvy. Neplatíte žiadne poplatky pre realitku!
viac foto na vegaby.webnode.sk/prenajom-bytu
|
| |||||||||||||||||||||||||||||||
Kontaktovať inzerenta e-mailom
Kontaktovať e-mailom môže iba overený užívateľ.
Overenie je zadarmo.
Vaše telefónne číslo *
Kontaktovať e-mailom môže iba overený užívateľ.
Overenie je zadarmo.
Vaše telefónne číslo *
Podobné inzeráty
PRENÁJOM Krásny kompletne zrekonštruovaný 2 izbový byt Jilem - [22.12. 2025]Ponúkame Vám na prenájom krásny priestranný 2 izbový byt nachádzajúci sa vo vyhľadávanej lokalite Martin Sever, na Jilemnického ul. Byt s rozlohou 53 m2 prešiel kompletnou rekonštrukciou. Prenajíma sa kompletne zariadený moderným nábytkom a spotrebičmi. K bytu prináleží balkón s rozlohou 3m2.
Loka ...
630 €
Martin
036 01
036 01
60 x
Označiť zlý inzerát Chybnú kategóriu Ohodnotiť užívateľa Zmazať/Upraviť/Topovať
PRENÁJOM 2- izbový byt v centre mesta Martin Jesenského ul. - [22.12. 2025]Ponúkame na prenájom prakticky riešený 2-izbový byt nachádzajúci sa v centre mesta Martin, v nízkopodlažnom zrekonštruovanom bytovom dome na ulici Jesenského v Martine. Byt s rozlohou 55 m2 sa nachádza na prvom poschodí. Dispozične pozostáva z predsiene, kúpeľne s WC, jedálne spojenej s kuchyňou, ob ...
530 €
Martin
036 01
036 01
60 x
Označiť zlý inzerát Chybnú kategóriu Ohodnotiť užívateľa Zmazať/Upraviť/Topovať
Na prenájom 2-izbovy byt, výborná lokalita centrum. - [21.12. 2025]Ponúkame na prenájom 2-izbový byt s rozlohou 57m².
Byt je po rekonštrukcii a je vhodný na trvalé bývanie. Nachádza sa na 1. poschodí, je zariadený a pripravený na okamžité nasťahovanie. Vhodné aj pre mladé rodiny alebo domácich miláčikov.
Dispozícia a vybavenie:
✅vstupná chodba
✅kúpeľňa + ...
600 €
Martin
036 01
036 01
385 x
Označiť zlý inzerát Chybnú kategóriu Ohodnotiť užívateľa Zmazať/Upraviť/Topovať
Prenájom 2 izbového bytu v centre Martina - [21.12. 2025]Sprostredkujem prenájom 2 izbového zrekonštruovaného bytu v Centre mesta Martin.
Byt sa nachádza v tehlovej bytovke bez belkóna, na prvom poschodí bytového domu bez výťahu.
Dispozíciu tvorí vstupná chodba, priestranná kúpeľňa spojená s WC, kuchyňa a dve samostatné nepriechodné izby.
Nehnuteľnosť ...
650 €
Martin
036 01
036 01
389 x
Označiť zlý inzerát Chybnú kategóriu Ohodnotiť užívateľa Zmazať/Upraviť/Topovať
2-izbový byt na prenájom, Priekopa - [21.12. 2025]Ponúkam na prenájom 2-izbový byt po čiastočnej rekonštrukcii, nachádzajúci sa v zateplenej tehlovej bytovke v mestskej časti Priekopa. Byt je situovaný na 4. poschodí s výťahom a je voľný ihneď k nasťahovaniu.
Dispozícia a vybavenie:
- vstupná chodba so vstavanou skriňou,
- 2 nepriechodné izby ...
590 €
Martin
036 01
036 01
379 x
Označiť zlý inzerát Chybnú kategóriu Ohodnotiť užívateľa Zmazať/Upraviť/Topovať
3-izb. byt - veľký balkón - Martin - Košúty - [20.12. 2025]Ponúkame Vám na dlhodobý prenájom 3-izbový bauring s veľkým balkónom v Martine (Ul. Hurbanova).
Nachádza na 3. poschodí zo štyroch v zateplenej bytovke bez výťahu.
Plocha bytu: 68m2 + 10m2 balkón.
Orientácia: východ/západ.
Prenajíma sa čiastočne zariadený (umývačka riadu, chladnička, práčka, mikrovl ...
495 €
Martin
036 01
036 01
581 x
Označiť zlý inzerát Chybnú kategóriu Ohodnotiť užívateľa Zmazať/Upraviť/Topovať
Prenájom 2 izbový byt Centrum, Štúrovo námestie - [20.12. 2025]Ponúkam na prenájom priestranný 2-izbový byt nachádzajúci sa na 3/3 poschodí bytového domu,
Rozloha bytu je cca 60 m2 + 6 m2 pivnica, orientácia na východ a západ, čo zabezpečuje príjemné svetelné podmienky počas celého dňa.
Dispozícia bytu:
Vstupná chodba
2 priestranné a samostatné izby
Kuchyň ...
560 €
Martin
036 01
036 01
507 x
Označiť zlý inzerát Chybnú kategóriu Ohodnotiť užívateľa Zmazať/Upraviť/Topovať
Zariadený 2 izbový byt Centrum, ul Holubyho - [20.12. 2025]Výhradne ponúkam a prenájom zariadený 2-izbový byt situovaný priamo v centre mesta Martin, na ulici Holubyho
Nachádza sa na 2 poschodí s rozlohou 55 m2.
Byt je vhodný maximálne pre 2 pracujúce osoby, bez domácich zvierat.
Dispozícia:
2 nepriechodné izby
samostatná kuchyňa
kúpeľňa so sprchovým kút ...
540 €
Martin
036 01
036 01
468 x
Označiť zlý inzerát Chybnú kategóriu Ohodnotiť užívateľa Zmazať/Upraviť/Topovať
Zariadený 2 izb byt Záturčie - [20.12. 2025]Ponúkam na prenájom príjemný, kompletne zrekonštruovaný a zariadený 2-izbový byt v Martine, mestská časť Záturčie. Byt sa nachádza na vyvýšenom prízemí bytového domu a disponuje rozlohou 48 m².
Dispozícia a vybavenie:
obývacia izba spojená s kuchyňou
samostatná spálňa
kúpeľňa po rekonštrukcii
byt ...
530 €
Martin
036 01
036 01
498 x
Označiť zlý inzerát Chybnú kategóriu Ohodnotiť užívateľa Zmazať/Upraviť/Topovať
2 izbový byt na prenájom - [19.12. 2025]Ponúkame na prenájom 2 izbový byt v lokalite Sever. Cena nájmu je uvedená vrátane energií a internetu.
Výmera: 56 m2
Balkón: nová, veľká loggia
Orientácia bytu: juh
Poschodie: 5
Stav bytu: kompletná, nadštandardná rekonštrukcia
Spotrebiče: chladnička, varná doska, elektrická rúra, mikrovlnk ...
600 €
Martin
036 01
036 01
607 x
Označiť zlý inzerát Chybnú kategóriu Ohodnotiť užívateľa Zmazať/Upraviť/Topovať