Na PREDAJ 4 izbová moderná a dizajnová NOVOSTAVBA Dvory nad
- [19.12. 2025]Zmazať/ Upraviť/ Topovať












Typ: Rodinný dom
Ulica: Dvory nad Žitavou
Obec: Dvory nad Žitavou
Ďalší skvelý projekt iba v našej ponuke !!!
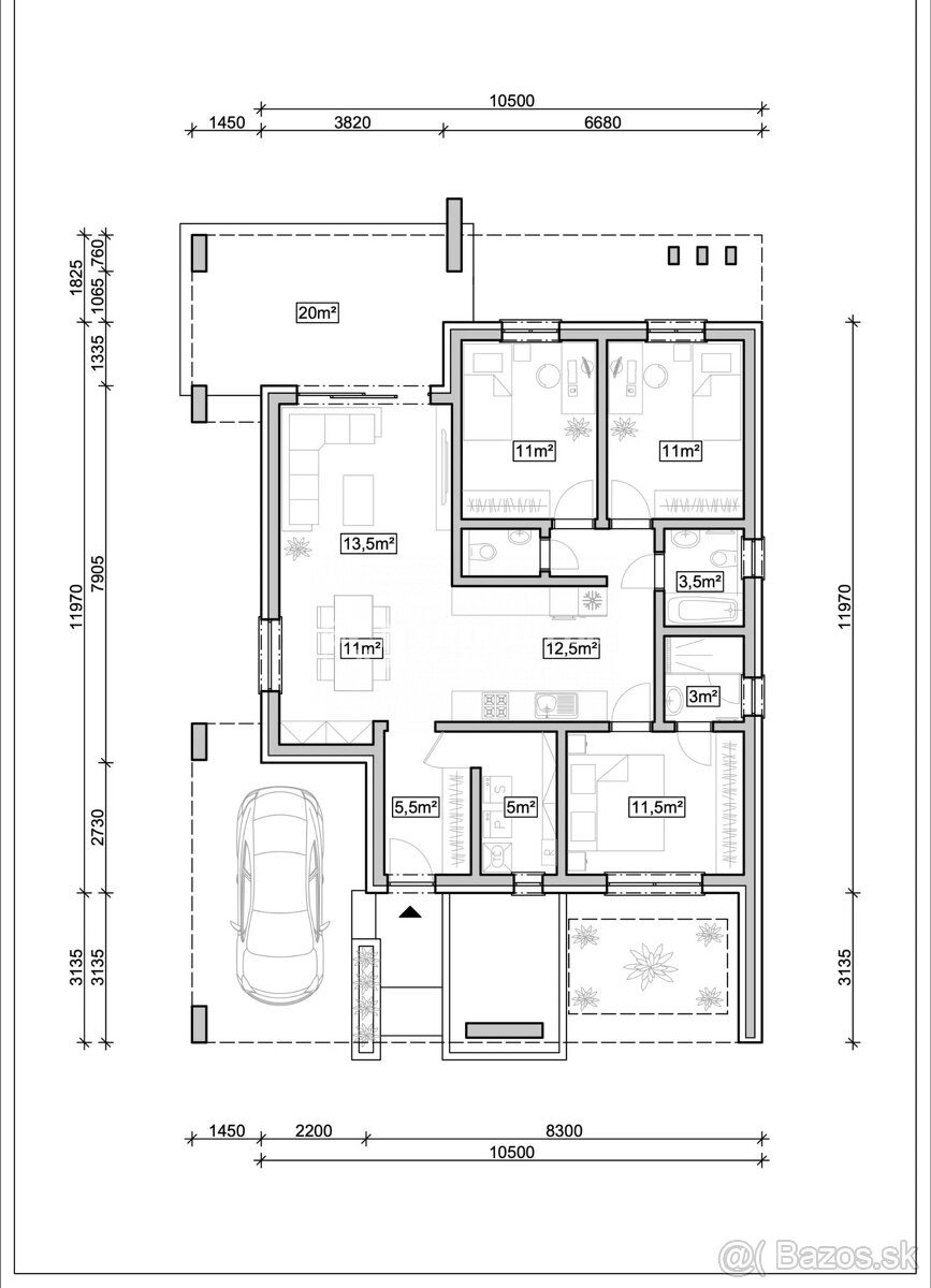
Ponúkame Vám na predaj modernú 4 izbovú NOVOSTAVBU v obci DVORY NAD ŽITAVOU.
Plocha: úžitková 92,,23m2, zastavaná 189,16m2, pozemku 640m2.
Steny: stierky, omietky. Okná: plastové - 3 sklo.Stav objektu: vydané stavebné povolenie . Konštrukcia objektu: DREVODOM. Kúrenie: podlahové, krb (PREDPRÍPRAVA).
Zabezpečenie bezpečnostnými dverami. Plochá strecha. Rovinatý pozemok.
Žiadne podpivničenie. Na pozemku sa nachádza elektrická prípojka (230/400V).Výhody: slnečný, pekný výhľad, turistika, cykloturistika.
-CENA ---- HOLODOM 191 000 eur (Zavolajte a rád vysvetlím Vám čo obsahujú jednotlivé ceny )
-CENA ---- NA KLÚČ (ŠTANDARD) 206 000 eur
Výstavba začatá :
30.11.2025 terénné úpravy
31.11.2025 kopanie obvodových pásov
2.12.2025 betonnáž obvodových pásov ........
-Máme prehlad v tejto lokalite preto vieme čo sa aktuálne stavia a a predává sa.
-Pre bližšie informácie a obhliadok neváhajte ma kontaktovať na telefónnom čísle: Krisztián Vámos 0908 583 729
alebo na e mailovej adrese office@cityrealplus.sk
Prijmeme posilu do nášho teamu.......... 0908 58 37 29
-právnický full servis v cene - bezpečnosť
-poplatky na kataster sú v cene
-vydávame potvrdenie k dedičskému konaniu
-najvýhodnejšie financovanie cez hypotekárny úver je v cene - spolupracujeme s každou bankou
Status: aktívne
Vlastníctvo: osobné
Plocha pozemku: 640 m2
Typ zeme: rovina
Teritórium: Intravilán
Šírka pozemku: 20 m
Dĺžka pozemku: 32 m
Úžitková plocha: 92.23 m2
Zastavaná plocha: 189.16 m2
Stav: Vo fáze projektovania
Počet izieb: 4
Energetický certifikát: A
Energetická náročnosť budovy: Nízkoenergetický
Terasa: áno
Celková plocha: 189 m2
Terasa plocha: 20 m2
Počet terás: 1
Orientácia: juhozápad
Inžinierske siete: áno
Voda: áno
Elektrika: áno
Kanalizácia: áno
Voda - na pozemku: áno
Elektrika - na pozemku: áno
Elektrika - na pozemku - 230 V: áno
Elektrika - na pozemku - 380 V: áno
Kanalizácia - na pozemku - kanalizácia: áno
Vykurovanie - podlahové: áno
Ulica: Dvory nad Žitavou
Obec: Dvory nad Žitavou
Ďalší skvelý projekt iba v našej ponuke !!!
Ponúkame Vám na predaj modernú 4 izbovú NOVOSTAVBU v obci DVORY NAD ŽITAVOU.
Plocha: úžitková 92,,23m2, zastavaná 189,16m2, pozemku 640m2.
Steny: stierky, omietky. Okná: plastové - 3 sklo.Stav objektu: vydané stavebné povolenie . Konštrukcia objektu: DREVODOM. Kúrenie: podlahové, krb (PREDPRÍPRAVA).
Zabezpečenie bezpečnostnými dverami. Plochá strecha. Rovinatý pozemok.
Žiadne podpivničenie. Na pozemku sa nachádza elektrická prípojka (230/400V).Výhody: slnečný, pekný výhľad, turistika, cykloturistika.
-CENA ---- HOLODOM 191 000 eur (Zavolajte a rád vysvetlím Vám čo obsahujú jednotlivé ceny )
-CENA ---- NA KLÚČ (ŠTANDARD) 206 000 eur
Výstavba začatá :
30.11.2025 terénné úpravy
31.11.2025 kopanie obvodových pásov
2.12.2025 betonnáž obvodových pásov ........
-Máme prehlad v tejto lokalite preto vieme čo sa aktuálne stavia a a predává sa.
-Pre bližšie informácie a obhliadok neváhajte ma kontaktovať na telefónnom čísle: Krisztián Vámos 0908 583 729
alebo na e mailovej adrese office@cityrealplus.sk
Prijmeme posilu do nášho teamu.......... 0908 58 37 29
-právnický full servis v cene - bezpečnosť
-poplatky na kataster sú v cene
-vydávame potvrdenie k dedičskému konaniu
-najvýhodnejšie financovanie cez hypotekárny úver je v cene - spolupracujeme s každou bankou
Status: aktívne
Vlastníctvo: osobné
Plocha pozemku: 640 m2
Typ zeme: rovina
Teritórium: Intravilán
Šírka pozemku: 20 m
Dĺžka pozemku: 32 m
Úžitková plocha: 92.23 m2
Zastavaná plocha: 189.16 m2
Stav: Vo fáze projektovania
Počet izieb: 4
Energetický certifikát: A
Energetická náročnosť budovy: Nízkoenergetický
Terasa: áno
Celková plocha: 189 m2
Terasa plocha: 20 m2
Počet terás: 1
Orientácia: juhozápad
Inžinierske siete: áno
Voda: áno
Elektrika: áno
Kanalizácia: áno
Voda - na pozemku: áno
Elektrika - na pozemku: áno
Elektrika - na pozemku - 230 V: áno
Elektrika - na pozemku - 380 V: áno
Kanalizácia - na pozemku - kanalizácia: áno
Vykurovanie - podlahové: áno
|
| |||||||||||||||||||||||||||||||
Kontaktovať inzerenta e-mailom
Kontaktovať e-mailom môže iba overený užívateľ.
Overenie je zadarmo.
Vaše telefónne číslo *
Kontaktovať e-mailom môže iba overený užívateľ.
Overenie je zadarmo.
Vaše telefónne číslo *