rkDOM | Príjemné kancelárie v ľahko dostupnej lokalite
- [19.12. 2025]Zmazať/ Upraviť/ Topovať


















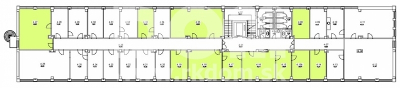
Ponúkame na prenájom klimatizované kancelárske priestory na Drieňovej ul. v Ružinove. Jedná sa o samostatné kancelárie o výmere 14 - 135 m2. Celkovo je k dispozícii 7 kancelárii o úhrnnej ploche 282 m2. Doba prenájmu min. 12 mesiacov. Vstup a strážená recepcia NONSTOP.
|
| |||||||||||||||||||||||||||||||
Kontaktovať inzerenta e-mailom
Kontaktovať e-mailom môže iba overený užívateľ.
Overenie je zadarmo.
Vaše telefónne číslo *
Kontaktovať e-mailom môže iba overený užívateľ.
Overenie je zadarmo.
Vaše telefónne číslo *
Podobné inzeráty
Ponúkam na prenájom priestor na služby 394m2, Bratislava II - [15.12. 2025]RK Byty Bratislava ponúka na prenájom komerčný priestor o výmere 394m2, vhodný pre fyzioterapeutov, masérov, rehabilitačné stredisko s rehabilitačným lekárom alebo kozmetický salón.
V priestore sa nachádzajú samostatné miestnosti (s umývadlami), sprchy, úložné boxy a recepcia.
Priestory sú kom ...
12 €
Bratislava
821 01
821 01
360 x
Označiť zlý inzerát Chybnú kategóriu Ohodnotiť užívateľa Zmazať/Upraviť/Topovať