V ŠTANDARDE - 4izb. BYT + TERASA - 120m2 a viac - REZIDENCIA
- [19.12. 2025]Zmazať/ Upraviť/ Topovať






























REWIN reality Vám EXKLUZÍVNE ponúka VEĽKORYSÝ 4 izbový BYT s LOGGIOU a BALKÓNOM o výmere 118,49 m2 v práve dokončenej a SKOLAUDOVANEJ novostavbe REZIDENCIA HLINY v Novej Dubnici. Prevádzky Billa supermarket & Benu lekáreň sú už spustené.
CENA PLATÍ PRE ŠTANDARDNÉ VYHOTOVENIE, NIŽŠIE OPIS ŠTANDARDU.
Základné technické pamaretre bytu o výmere 118,49 m2:
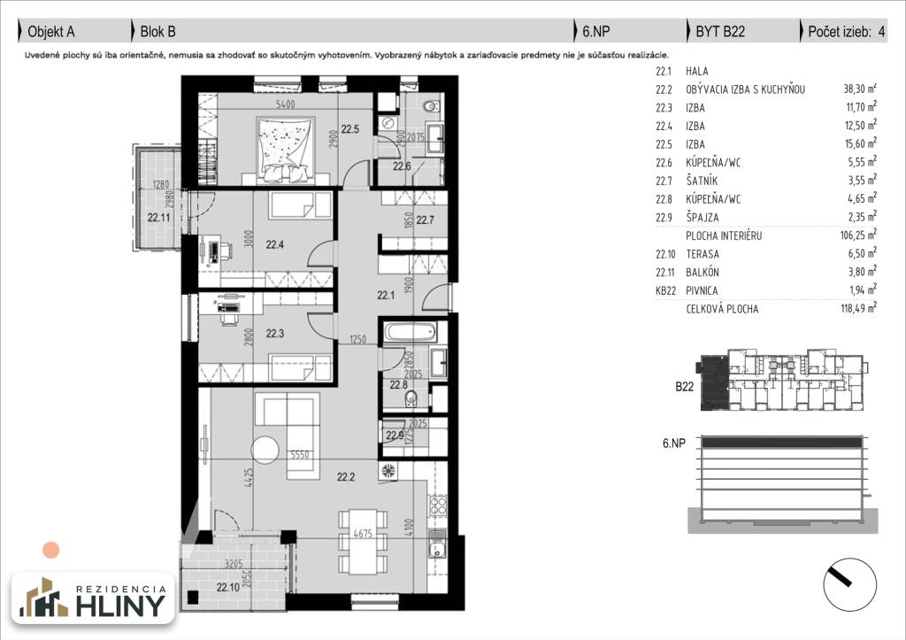
- 106,25 m2 výmera interiéru,
- 1,12 m2 výmera pivnice,
- 6,50 m2 výmera terasy,
- 3,80 m2 výmera balkónu.
Pozrite si pôdorys na poslednom mieste medzi fotografiami inzerátu.
Chcete vidieť všetky zvyšné fotky a virtuálnu obhliadku k bytu? Pošlite mi mail na martisek(zavinac)rewin(bodka)sk.
Projekt REZIDENCIA HLINY v energetickom štandarde (A0 - Primárna energia), bol na začiatku roka 2025 dokončený a skolaudovaný. Jedná sa o polyfunkčný objekt s vysokou úrovňou štandardu, v podobe veľkorysých dispozicií a rozmier bytov, komfortné veľké loggie a balkóny, pivnica ku každému bytu na poschodí, spoločné priestory pre obyvateľov domu pre každý vchod vzvlášť, vnútorné garážové a vonkajšie parkovacie miesta, a v neposlednom rade nadpriemerná vybavenosť v podobe Billa supermarketu a Benu lekárne priamo v objekte.
ŠTANDARD, ktorý Vás očarí
Predpríprava na externé rolety, predpríprava na klimatizáciu, pasívna rekuperácia na vetranie, predpríprava na smart ovládanie domácnosti, 6-komorové okná s izolačným trosjklom, závesny WC systém Geberit, vaňa alebo sprchový kút, odsávací ventilátor so spätnou klapkou, optický kábel pre internet a TV privedený priamo do bytu, domáci telefón a elektronický vrátnik, protipožiarne bezpečnostné viacbodové vchodové dvere, vysoká úroveň izolácie stien.
MOŽNOSŤ ZAKÚPIŤ v prevedení HOLOBYT, ŠTANDARD a aj KOMPLETNÉ ZARIADENIE vďaka partnerovi projektu TOMI štúdio Ilava.
Lokalita NOVÁ DUBNICA
Výnimočné mesto s bohatou občianskou vybavenosťou a dostupnosťou. Centrum mesta je známe svojou jedinečnou architektúrou z 50. rokov minulého storočia navrhnutou architektom Jiřím Krohom. Množstvo kultúrnych podujatí v rámci celého roka. Vybavenosť obchodov ako sú BILLA, LIDL, Coop jednota, Tesco, lekárne Benu, Dr. Max, Sara Medica, kino, známa zmrzlina VELICE, doplnkové obchody, kvetinárstva, a kvalitné reštaurácie. V letných mesiacoch poteší ochladenie v Kúpalisku LETKA, v zime zas krytá plaváreň. Toto mesto poskytuje všetko na život či ste mladý človek, začinajúci pár alebo väčšia rodina s deťmi rôzneho veku. Pre športovcov a milovníkov prírody je toto ideálne miesto na bývanie vzhľadom na dostupnosť do rekreácie.
Dostupnosť na kľúčové miesta z projektu:
- pešia dostupnosť do Novej Dubnice,
- 5 min. napojenie na D1 autom,
- do 15 min. presun autom do Trenčína,
- do 5 min. presun autom do Dubnice nad Váhom.
Chcete vedieť presné náklady k bytu a ostatné technické detaily? Pošlite mi mail a odošlem Vám dodatočné informácie.
V prípade záujmu o viac informácií alebo obhliadku ma neváhajte konta
CENA PLATÍ PRE ŠTANDARDNÉ VYHOTOVENIE, NIŽŠIE OPIS ŠTANDARDU.
Základné technické pamaretre bytu o výmere 118,49 m2:
- 106,25 m2 výmera interiéru,
- 1,12 m2 výmera pivnice,
- 6,50 m2 výmera terasy,
- 3,80 m2 výmera balkónu.
Pozrite si pôdorys na poslednom mieste medzi fotografiami inzerátu.
Chcete vidieť všetky zvyšné fotky a virtuálnu obhliadku k bytu? Pošlite mi mail na martisek(zavinac)rewin(bodka)sk.
Projekt REZIDENCIA HLINY v energetickom štandarde (A0 - Primárna energia), bol na začiatku roka 2025 dokončený a skolaudovaný. Jedná sa o polyfunkčný objekt s vysokou úrovňou štandardu, v podobe veľkorysých dispozicií a rozmier bytov, komfortné veľké loggie a balkóny, pivnica ku každému bytu na poschodí, spoločné priestory pre obyvateľov domu pre každý vchod vzvlášť, vnútorné garážové a vonkajšie parkovacie miesta, a v neposlednom rade nadpriemerná vybavenosť v podobe Billa supermarketu a Benu lekárne priamo v objekte.
ŠTANDARD, ktorý Vás očarí
Predpríprava na externé rolety, predpríprava na klimatizáciu, pasívna rekuperácia na vetranie, predpríprava na smart ovládanie domácnosti, 6-komorové okná s izolačným trosjklom, závesny WC systém Geberit, vaňa alebo sprchový kút, odsávací ventilátor so spätnou klapkou, optický kábel pre internet a TV privedený priamo do bytu, domáci telefón a elektronický vrátnik, protipožiarne bezpečnostné viacbodové vchodové dvere, vysoká úroveň izolácie stien.
MOŽNOSŤ ZAKÚPIŤ v prevedení HOLOBYT, ŠTANDARD a aj KOMPLETNÉ ZARIADENIE vďaka partnerovi projektu TOMI štúdio Ilava.
Lokalita NOVÁ DUBNICA
Výnimočné mesto s bohatou občianskou vybavenosťou a dostupnosťou. Centrum mesta je známe svojou jedinečnou architektúrou z 50. rokov minulého storočia navrhnutou architektom Jiřím Krohom. Množstvo kultúrnych podujatí v rámci celého roka. Vybavenosť obchodov ako sú BILLA, LIDL, Coop jednota, Tesco, lekárne Benu, Dr. Max, Sara Medica, kino, známa zmrzlina VELICE, doplnkové obchody, kvetinárstva, a kvalitné reštaurácie. V letných mesiacoch poteší ochladenie v Kúpalisku LETKA, v zime zas krytá plaváreň. Toto mesto poskytuje všetko na život či ste mladý človek, začinajúci pár alebo väčšia rodina s deťmi rôzneho veku. Pre športovcov a milovníkov prírody je toto ideálne miesto na bývanie vzhľadom na dostupnosť do rekreácie.
Dostupnosť na kľúčové miesta z projektu:
- pešia dostupnosť do Novej Dubnice,
- 5 min. napojenie na D1 autom,
- do 15 min. presun autom do Trenčína,
- do 5 min. presun autom do Dubnice nad Váhom.
Chcete vedieť presné náklady k bytu a ostatné technické detaily? Pošlite mi mail a odošlem Vám dodatočné informácie.
V prípade záujmu o viac informácií alebo obhliadku ma neváhajte konta
|
| |||||||||||||||||||||||||||||||
Kontaktovať inzerenta e-mailom
Kontaktovať e-mailom môže iba overený užívateľ.
Overenie je zadarmo.
Vaše telefónne číslo *
Kontaktovať e-mailom môže iba overený užívateľ.
Overenie je zadarmo.
Vaše telefónne číslo *
Podobné inzeráty
V ŠTANDARDE - 1i. BYT s balkónom - 41,27 m2 - REZIDENCIA HLI - [19.12. 2025]REWIN reality Vám EXKLUZÍVNE ponúka VEĽKORYSÝ 1 izbový BYT s BALKÓNOM o výmere 41,27 m2 v práve dokončenej a SKOLAUDOVANEJ novostavbe REZIDENCIA HLINY v Novej Dubnici. Prevádzky Billa supermarket & Benu lekáreň sú už spustené.
CENA PLATÍ PRE ŠTANDARDNÉ VYHOTOVENIE, NIŽŠIE OPIS ŠTANDARDU.
Zákl ...
114 980 €
Ilava
018 51
018 51
299 x
Označiť zlý inzerát Chybnú kategóriu Ohodnotiť užívateľa Zmazať/Upraviť/Topovať
V ŠTANDARDE - 2izb. BYT + loggia 50,37 m2 a viac - REZIDENCI - [19.12. 2025]REWIN reality Vám EXKLUZÍVNE ponúka VEĽKORYSÝ 2 izbový BYT s LOGGIOU o výmere 50,37 m2 v práve dokončenej a SKOLAUDOVANEJ novostavbe REZIDENCIA HLINY v Novej Dubnici. Prevádzky Billa supermarket & Benu lekáreň sú už spustené.
CENA PLATÍ PRE ŠTANDARDNÉ VYHOTOVENIE, NIŽŠIE OPIS ŠTANDARDU.
Zákla ...
135 788 €
Ilava
018 51
018 51
297 x
Označiť zlý inzerát Chybnú kategóriu Ohodnotiť užívateľa Zmazať/Upraviť/Topovať
INVESTIČNÝ 1izbový byt S BALKÓNOM A NÁJOMCOM - REZIDENCIA HL - [19.12. 2025]REWIN reality Vám EXKLUZÍVNE ponúka INVESTIČNÝ 1-IZBOVÝ BYT S BALKÓNOM A NÁJOMCOM v projekte REZIDENCIA HLINY
CENA PLATÍ PRE ŠTANDARDNÉ VYHOTOVENIE, NIŽŠIE OPIS ŠTANDARDU.
LIMITOVANÁ PONUKA: Využite možnosť zakúpenia bytu s nájomcom. Bez starosti s hľadaním nájomcu, stabilný mesačný príjem z ...
114 980 €
Ilava
018 51
018 51
297 x
Označiť zlý inzerát Chybnú kategóriu Ohodnotiť užívateľa Zmazať/Upraviť/Topovať
V ŠTANDARDE - 3 izb. BYT + loggia - 72,62 m2 - REZIDENCIA HL - [19.12. 2025]REWIN reality Vám EXKLUZÍVNE ponúka VEĽKORYSÝ 3 izbový BYT s LOGGIOU o výmere 72,62 m2 v práve dokončenej a SKOLAUDOVANEJ novostavbe REZIDENCIA HLINY v Novej Dubnici. Prevádzky Billa supermarket & Benu lekáreň sú už spustené.
CENA PLATÍ PRE ŠTANDARDNÉ VYHOTOVENIE, NIŽŠIE OPIS ŠTANDARDU.
Zákla ...
189 980 €
Ilava
018 51
018 51
310 x
Označiť zlý inzerát Chybnú kategóriu Ohodnotiť užívateľa Zmazať/Upraviť/Topovať
Na predaj: 3-izbový byt po kompletnej rekonštrukcii s... - [19.12. 2025]V TU reality Vám ponúkame na predaj vkusne zrekonštruovaný 3-izbový byt o výmere 62 m2, ktorý sa nachádza na 3. poschodí bytového domu v tichej a vyhľadávanej lokalite mesta Nová Dubnica. Súčasťou bytu je balkón, ktorý ponúka priestor na relax a oddych.
Byt aktuálne prechádza kompletnou rekonštrukc ...
149 000 €
Ilava
018 51
018 51
321 x
Označiť zlý inzerát Chybnú kategóriu Ohodnotiť užívateľa Zmazať/Upraviť/Topovať
1 izbový byt na predaj Dubnica nad Váhom - [17.12. 2025]1 izbový byt na predaj Dubnica nad Váhom, bližšie info telefonicky.
Cena je konečná, už sa nenavyšuje a zahŕňa poplatky :
-vypracovanie kúpnej zmluvy a návrhu na vklad
-poplatok za overenie podpisov u notára
-poplatok za vklad do katastra nehnuteľností
-podanie návrhu na vklad na kataster
-zabezpe ...
92 900 €
Ilava
018 51
018 51
402 x
Označiť zlý inzerát Chybnú kategóriu Ohodnotiť užívateľa Zmazať/Upraviť/Topovať
Moderný 3-izbový byt s balkónom a veľkou pivnicou v centre N - TOP - [20.12. 2025]Ihneď k dispozícii k nasťahovaniu je moderný a veľmi vkusne prerobený trojizbový byt (64 m²) na ulici Komenského sady v Novej Dubnici – v blízkosti občianskej vybavenosti a výborného dopravného napojenia. Tri samostatné izby, oddelené kuchyňa, kúpeľňa a samostatná toaleta, balkón a ako bonus nadšta ...
139 000 €
Ilava
018 51
018 51
396 x
Označiť zlý inzerát Chybnú kategóriu Ohodnotiť užívateľa Zmazať/Upraviť/Topovať
Veľký 3 izbový byt | 81 m2 | Nová Dubnica, P.O. Hviezdoslava - TOP - [20.12. 2025]Na predaj veľký podkrovný 3 izbový byt o výmere 81 m2 v meste Nová Dubnica vo vyhľadávanej lokalite blízko centra mesta na ulici P. O. Hviezdoslava. Byt je umiestnený na 5. poschodí tehlového bytového domu, v tichej príjemnej lokalite plnej zelene.
Byt je priestranný, s výmerou až 81 m2. ...
115 000 €
Ilava
018 51
018 51
448 x
Označiť zlý inzerát Chybnú kategóriu Ohodnotiť užívateľa Zmazať/Upraviť/Topovať
BartanusReality - Na predaj kompletne zrekoštruovaný 3 izbov - [14.12. 2025]3D Virtuálna prehliadka TU.
https://my.matterport.com/show/?m=SZmY4WqSSiL
Ponúkame na predaj kompletne zrekonštruovaný byt v Novej Dubnici, ulica P.O. Hviezdoslava.
Úžitková plocha bytu je 62 m2.
Byt je situovaný v tehlovom bytovom dome na 3. poschodí z 4 bez výťahu.
K bytu patrí balkón a pivnic ...
149 000 €
Ilava
018 51
018 51
343 x
Označiť zlý inzerát Chybnú kategóriu Ohodnotiť užívateľa Zmazať/Upraviť/Topovať
REZERVÁCIA:NA PREDAJ PEKNÝ 2-IZBOVÝ BYT V NOVEJ DUBNICI... - [13.12. 2025]TUreality ponúka na predaj pekný 2-izbový byt v Novej Dubnici na ulici Komenského sady s výmerou 58M2,pozrite si vídeo,,,,https://youtu.be/OOegBF7svs0. Byt je na 3/3 poschodí bez výťahu. Bytový dom je po kompletnej prerábke s novou fasádou, strechou, el. vrátnik, vstupné dvere, upravený vchod vymaľo ...
133 000 €
Ilava
018 51
018 51
592 x
Označiť zlý inzerát Chybnú kategóriu Ohodnotiť užívateľa Zmazať/Upraviť/Topovať









