NÁJOM priestory ambulancie, Trenčín, Gagarinova, Sihoť
- [19.12. 2025]Zmazať/ Upraviť/ Topovať














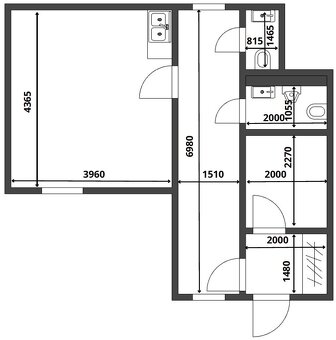
BIBI reality s.r.o. Vám ponúka na prenájom pekné čisté priestory vhodné na podnikanie v meste Trenčín, Lokalita Sihoť II, ul. Gagarinova. Celková výmera priestorov je 38,5 m2. Priestory pozostávajú zo vstupnej predsiene, malý sklad, dlhá chodba (čakáreň), 2x WC a hlavná miestnosť. Svojou dispozíciou sú to vhodné priestory napríklad pre ambulanciu, kaderníctvo alebo aj samostatný kancelársky priestor. Hlavná miestnosť je klimatizovaná. Priestory sú kompletne vymaľované a pripravené pre nového nájomcu. Podlaha je všade dlažba a priestor je kompletne na prízemí.
VÝMERA:
- úžitková plocha celkovo: 38,5 m2
PARKOVANIE:
- možnosť dohodnúť sa na 1x súkromné parkovacie miesto
- v okolí verejné parkovanie
LOKALITA:
- výborná lokalita
- kompletná občianska vybavenosť
VÝHODY:
+ priestranný
+ čistý
+ zariadený
+ výborná lokalita
CENA: 550€ / mesačne bez DPH, vrátane energií + možnosť dohodnúť sa na 1x súkromné parkovacie miesto
pri podpise nájomnej zmluvy sa platí 1x nájom, 1x provízia, 2x depozit
KONTAKT:
Mgr. Martin Krajčík
0915 746 667
krajcik@bibireality.sk
VÝMERA:
- úžitková plocha celkovo: 38,5 m2
PARKOVANIE:
- možnosť dohodnúť sa na 1x súkromné parkovacie miesto
- v okolí verejné parkovanie
LOKALITA:
- výborná lokalita
- kompletná občianska vybavenosť
VÝHODY:
+ priestranný
+ čistý
+ zariadený
+ výborná lokalita
CENA: 550€ / mesačne bez DPH, vrátane energií + možnosť dohodnúť sa na 1x súkromné parkovacie miesto
pri podpise nájomnej zmluvy sa platí 1x nájom, 1x provízia, 2x depozit
KONTAKT:
Mgr. Martin Krajčík
0915 746 667
krajcik@bibireality.sk
|
| |||||||||||||||||||||||||||||||
Kontaktovať inzerenta e-mailom
Kontaktovať e-mailom môže iba overený užívateľ.
Overenie je zadarmo.
Vaše telefónne číslo *
Kontaktovať e-mailom môže iba overený užívateľ.
Overenie je zadarmo.
Vaše telefónne číslo *