🏡Slnečný 3-izbový byt novostavba pri Bardejovských Kúpeľoch
- [18.12. 2025]Zmazať/ Upraviť/ Topovať



























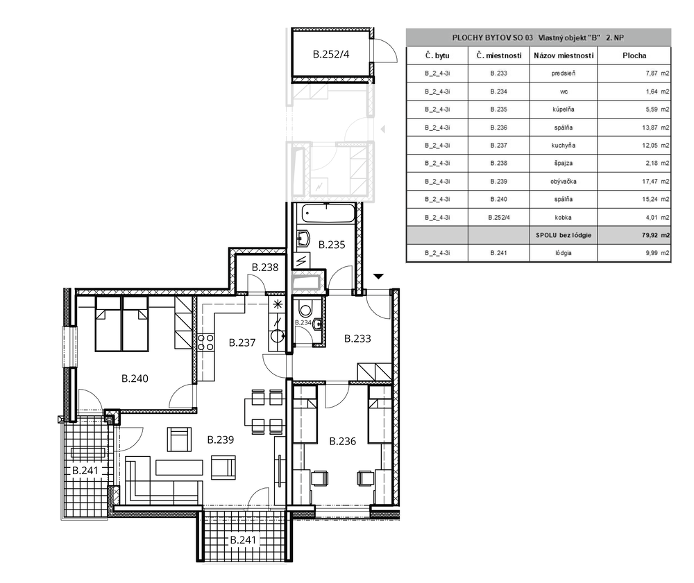
Ponúkam na predaj priestranný, moderný 3-izbový byt v projekte Biele Piesky, na Zafírovej ulici v mestskej časti Dlhá Lúka (Bardejov) – len pár minút chôdze od Bardejovských Kúpeľov. Byt sa nachádza na 1. poschodí (2. NP) a vďaka juhozápadnej orientácii je celý deň príjemne presvetlený. V rámci projektu patrí medzi najatraktívnejšie jednotky s vysokou bonitou.
✅ Hlavné benefity bytu:
- Novostavba s kvalitnou výstavbou
- Výborná orientácia (JZ) – slnečný a svetlý byt počas celého dňa
- Nízka energetická náročnosť – fotovoltaika, tepelné čerpadlá, rekuperácia s antivírusovou filtráciou
- Podlahové vykurovanie, príprava na klimatizáciu a vonkajšie žalúzie
- Ideálny pre rodinné bývanie aj ako investícia
- Tichá lokalita v bezprostrednej blízkosti prírody a kúpeľov
- Bezproblémové parkovanie – 1 vnútorné (15 000 €) a 1 vonkajšie miesto (5 000 €) v cene
🛋 Dispozícia bytu (79,92 m² + 2 loggie 9,99 m²):
- vstupná predsieň
- obývacia izba s kuchyňou
- 2 samostatné spálne
- kúpeľňa so sprchovým kútom
- samostatné WC so spŕškou
- 2 priestranné loggie
- kobka na poschodí
🧱 Technické vybavenie a stav:
- Vysokokvalitné dubové parkety značky BOEN
- Interiérové omietky a biele maľby
- Bezpečnostné vstupné dvere
- 6-komorové okná GEALAN s trojsklom, pripravené rozvody pre optiku a TV
- Elektroinštalácia so zásuvkami, vypínačmi a videovrátnikom
- Miesto pre klimatizáciu, elektrina pre žalúzie, zásuvka na loggii
- Zariadenie kuchyne je predmetom dohody
🧒 👨👩👧👦 Lokalita a občianska vybavenosť:
- Bývanie v pokojnom prostredí s detským ihriskom priamo pri dome
- Vynikajúca dostupnosť do mesta Bardejov
- Relaxačná zóna s lesom a kúpeľmi doslova na dosah
🟢 Vďaka svojej dispozícii a lokalite je tento byt ideálny nielen pre rodiny, ale aj ako výhodná investičná príležitosť – napríklad na prenájom pre kúpeľných hostí alebo ako rekreačný apartmán.
📞 V prípade záujmu o obhliadku alebo viac informácií ma neváhajte kontaktovať.
✅ Hlavné benefity bytu:
- Novostavba s kvalitnou výstavbou
- Výborná orientácia (JZ) – slnečný a svetlý byt počas celého dňa
- Nízka energetická náročnosť – fotovoltaika, tepelné čerpadlá, rekuperácia s antivírusovou filtráciou
- Podlahové vykurovanie, príprava na klimatizáciu a vonkajšie žalúzie
- Ideálny pre rodinné bývanie aj ako investícia
- Tichá lokalita v bezprostrednej blízkosti prírody a kúpeľov
- Bezproblémové parkovanie – 1 vnútorné (15 000 €) a 1 vonkajšie miesto (5 000 €) v cene
🛋 Dispozícia bytu (79,92 m² + 2 loggie 9,99 m²):
- vstupná predsieň
- obývacia izba s kuchyňou
- 2 samostatné spálne
- kúpeľňa so sprchovým kútom
- samostatné WC so spŕškou
- 2 priestranné loggie
- kobka na poschodí
🧱 Technické vybavenie a stav:
- Vysokokvalitné dubové parkety značky BOEN
- Interiérové omietky a biele maľby
- Bezpečnostné vstupné dvere
- 6-komorové okná GEALAN s trojsklom, pripravené rozvody pre optiku a TV
- Elektroinštalácia so zásuvkami, vypínačmi a videovrátnikom
- Miesto pre klimatizáciu, elektrina pre žalúzie, zásuvka na loggii
- Zariadenie kuchyne je predmetom dohody
🧒 👨👩👧👦 Lokalita a občianska vybavenosť:
- Bývanie v pokojnom prostredí s detským ihriskom priamo pri dome
- Vynikajúca dostupnosť do mesta Bardejov
- Relaxačná zóna s lesom a kúpeľmi doslova na dosah
🟢 Vďaka svojej dispozícii a lokalite je tento byt ideálny nielen pre rodiny, ale aj ako výhodná investičná príležitosť – napríklad na prenájom pre kúpeľných hostí alebo ako rekreačný apartmán.
📞 V prípade záujmu o obhliadku alebo viac informácií ma neváhajte kontaktovať.
|
| |||||||||||||||||||||||||||||||
Kontaktovať inzerenta e-mailom
Kontaktovať e-mailom môže iba overený užívateľ.
Overenie je zadarmo.
Vaše telefónne číslo *
Kontaktovať e-mailom môže iba overený užívateľ.
Overenie je zadarmo.
Vaše telefónne číslo *






