TUreality ponúka na predaj rodinný dom, okres Senec
- [18.12. 2025]Zmazať/ Upraviť/ Topovať












TUreality ponúka rodinný dom za cenu bytu! Áno, existuje – a práve ho predávame!
Hľadáš bývanie, ktoré ti dá súkromie, záhradku, terasu a vlastné parkovanie, ale nechceš sa zadlžiť na tri životy?
Tento dvojizbový rodinný dom v blízkosti Senca je presne to riešenie, ktoré dnes každý hľadá… a málokto nájde.
Čo dostaneš:
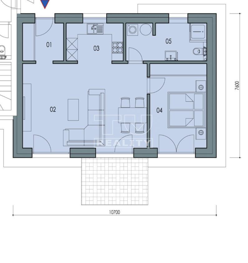
Samostatnú spálňu, priestrannú dennú časť s kuchyňou a obývačkou. Veľké presklenie a výhľad rovno do zelene. Vlastnú terasu a záhradu – miesto na kávičku, bazén či psíka. Nízke náklady na údržbu.
Parkovacie miesto priamo pri dome za príplatok 5.000Eur.
Holobyt prevedenie – dlažby, podlahy aj kuchyňu si vyberieš presne podľa seba.
Žiadne prerábanie po niekom.
Žiadni susedia nad hlavou.
Žiadny hluk paneláku.
A najlepšia časť?
Je to novostavba. Nikto tu ešte nebýval.
Čistý štart, čisté emócie, čisté bývanie.
Toto je plnohodnotný domov s tým najdôležitejším bonusom:
NEZRUINUJE ŤA FINANČNE.
Bývaš v dome… za cenu bytu.
Ak chceš vedieť viac alebo si dom pozrieť osobne, ozvi sa mi – radi ti ukážeme, prečo je to jedna z najrozumnejších volieb na trhu.
Energetický certifikát nebol dodaný.
???? 0413 217 800
?? skokan@tureality.sk
Hľadáš bývanie, ktoré ti dá súkromie, záhradku, terasu a vlastné parkovanie, ale nechceš sa zadlžiť na tri životy?
Tento dvojizbový rodinný dom v blízkosti Senca je presne to riešenie, ktoré dnes každý hľadá… a málokto nájde.
Čo dostaneš:
Samostatnú spálňu, priestrannú dennú časť s kuchyňou a obývačkou. Veľké presklenie a výhľad rovno do zelene. Vlastnú terasu a záhradu – miesto na kávičku, bazén či psíka. Nízke náklady na údržbu.
Parkovacie miesto priamo pri dome za príplatok 5.000Eur.
Holobyt prevedenie – dlažby, podlahy aj kuchyňu si vyberieš presne podľa seba.
Žiadne prerábanie po niekom.
Žiadni susedia nad hlavou.
Žiadny hluk paneláku.
A najlepšia časť?
Je to novostavba. Nikto tu ešte nebýval.
Čistý štart, čisté emócie, čisté bývanie.
Toto je plnohodnotný domov s tým najdôležitejším bonusom:
NEZRUINUJE ŤA FINANČNE.
Bývaš v dome… za cenu bytu.
Ak chceš vedieť viac alebo si dom pozrieť osobne, ozvi sa mi – radi ti ukážeme, prečo je to jedna z najrozumnejších volieb na trhu.
Energetický certifikát nebol dodaný.
???? 0413 217 800
?? skokan@tureality.sk
|
| |||||||||||||||||||||||||||||||
Kontaktovať inzerenta e-mailom
Kontaktovať e-mailom môže iba overený užívateľ.
Overenie je zadarmo.
Vaše telefónne číslo *
Kontaktovať e-mailom môže iba overený užívateľ.
Overenie je zadarmo.
Vaše telefónne číslo *