Stavebný pozemok v intraviláne mesta Krupina za výbornú cenu
- TOP - [19.12. 2025]Zmazať/ Upraviť/ Topovať


























Realitná kancelária DOMY BYTY POZEMKY s. r. o. ponúka exkluzívne na predaj stavebný pozemok v meste Krupina.
Pokiaľ hľadáte veľkorysý pozemok s udeleným stavebným povolením na výstavbu rodinného domu a projektovou dokumentáciou alebo investičnú príležitosť v podobe stavebného pozemku za výbornú cenu, uvedená ponuka by mohla byť vhodná práve pre Vás!
Veľkosť pozemku: 1932 m2
Druh pozemku: Ostatná plocha - 782 m2, Záhrada – 1150 m2
Pozemok pod domom bol odčlenený geometrickým plánom, pôvodná poľnohospodárska pôda bola vyňatá z pôdneho fondu a týmto sa zmenil druh pozemku na ostatnú plochu.
Sklon pozemku: rovinatý až mierne svahovitý.
Pripravenosť k výstavbe: Vydané stavebné povolenie na výstavbu rodinného domu.
Základné údaje charakterizujúce stavbu v zmysle projektovej dokumentácie a stavebného povolenia:
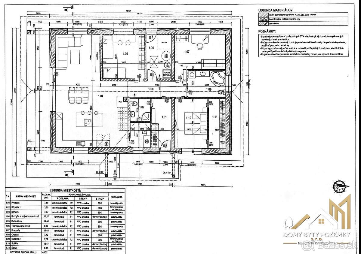
Novostavba samostatne stojaceho, prízemného rodinného domu typu bungalov, obdĺžnikového pôdorysu rozmerov 18,15m x 10,80m, bez podpivničenia, bez obytného podkrovia. Súčasťou stavebného povolenia je aj samostatná garáž a oporný múr pozdĺž miestnej komunikácie pre spevnenie a vyrovnanie pozemku.
IS: elektrická prípojka NN a vodovodná prípojka budú v réžii nového stavebníka – prípojky možné na hranici pozemku a v jej blízkosti.
Umiestnenie: Ul. Nad mestom, zastavané územie mesta Krupina
Prístup až k pozemku je po asfaltovej komunikácii.
Cena: 74 000 € = len 38,3 € / m2
https://miroslavdian.sk/na-predaj-stavebny-pozemok-v-intravilane-mesta-krupina-za-vybornu-cenu
Realitný a právny servis vrátane vypracovania všetkých potrebných zmlúv, návrhu na vklad, katastrálnych prípadne notárskych poplatkov je v cene. Projektová dokumentácia pre stavebné povolenie JE zahrnutá v cene pozemku.
V prípade potreby ďalších informácií ma prosím neváhajte kontaktovať na 0917145820 alebo kontakt@miroslavdian.sk
DOMY BYTY POZEMKY s. r. o.
Plavárenská 468/12
963 01 Krupina
Pokiaľ hľadáte veľkorysý pozemok s udeleným stavebným povolením na výstavbu rodinného domu a projektovou dokumentáciou alebo investičnú príležitosť v podobe stavebného pozemku za výbornú cenu, uvedená ponuka by mohla byť vhodná práve pre Vás!
Veľkosť pozemku: 1932 m2
Druh pozemku: Ostatná plocha - 782 m2, Záhrada – 1150 m2
Pozemok pod domom bol odčlenený geometrickým plánom, pôvodná poľnohospodárska pôda bola vyňatá z pôdneho fondu a týmto sa zmenil druh pozemku na ostatnú plochu.
Sklon pozemku: rovinatý až mierne svahovitý.
Pripravenosť k výstavbe: Vydané stavebné povolenie na výstavbu rodinného domu.
Základné údaje charakterizujúce stavbu v zmysle projektovej dokumentácie a stavebného povolenia:
Novostavba samostatne stojaceho, prízemného rodinného domu typu bungalov, obdĺžnikového pôdorysu rozmerov 18,15m x 10,80m, bez podpivničenia, bez obytného podkrovia. Súčasťou stavebného povolenia je aj samostatná garáž a oporný múr pozdĺž miestnej komunikácie pre spevnenie a vyrovnanie pozemku.
IS: elektrická prípojka NN a vodovodná prípojka budú v réžii nového stavebníka – prípojky možné na hranici pozemku a v jej blízkosti.
Umiestnenie: Ul. Nad mestom, zastavané územie mesta Krupina
Prístup až k pozemku je po asfaltovej komunikácii.
Cena: 74 000 € = len 38,3 € / m2
https://miroslavdian.sk/na-predaj-stavebny-pozemok-v-intravilane-mesta-krupina-za-vybornu-cenu
Realitný a právny servis vrátane vypracovania všetkých potrebných zmlúv, návrhu na vklad, katastrálnych prípadne notárskych poplatkov je v cene. Projektová dokumentácia pre stavebné povolenie JE zahrnutá v cene pozemku.
V prípade potreby ďalších informácií ma prosím neváhajte kontaktovať na 0917145820 alebo kontakt@miroslavdian.sk
DOMY BYTY POZEMKY s. r. o.
Plavárenská 468/12
963 01 Krupina
|
| |||||||||||||||||||||||||||||||
Kontaktovať inzerenta e-mailom
Kontaktovať e-mailom môže iba overený užívateľ.
Overenie je zadarmo.
Vaše telefónne číslo *
Kontaktovať e-mailom môže iba overený užívateľ.
Overenie je zadarmo.
Vaše telefónne číslo *





