Prenajmem priestor pre ambulancie, obchod, kancelárie v BN
- [18.12. 2025]Zmazať/ Upraviť/ Topovať






















Prenajmem do dlhodobého nájmu priestor vhodný na rôzne účely, najmä obchod so skladmi, obchodné kancelárie so skladom, ambulancie pre lekárov s čakárňou, menšia výroba a ďalšie. Objekt sa nachádza v Bánovciach nad Bebravou - časť Dolné Ozorovce, veľmi dobre dostupný osobnou aj nákladnou dopravou.
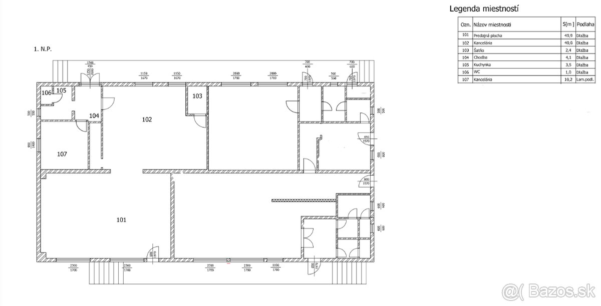
Hlavné zázemie v kompletne rekonštruovanej budove predstavuje plochu 101 m2. viď. priložený pôdorys s ozn. priestorov č. 101-106. Parkovanie a zásobovanie bezproblémové.
Pre lekárov: variabilita priestorov pre viacero ambulancii s recepciou, úpravy dohodou.
Priestor je energeticky nenáročný, budova energeticky zodpovedá aktuálnej dobe. Kúrenie plynom - vlastný kotol, optický internet k dispozícii v prípade potreby (Telekom/Orange) dostupný, prípadne lokálna sieť / lokálny dodávateľ.
K hlavnému priestoru je možné prenajať variabilne viacero skladových priestorov:
1. exteriérová plocha v uzavretom objekte dostupná automatickou bránou v šírke 3,1m,
2. suterénový sklad,
3. externý sklad napojený na budovu, kamerový a bezpečnostný systém.
4. Možnosť doprenajať garáž naviac v uzavretom priestore prístupnom automatickou posuvnou bránou, zabezpečený kamerou.
Konkrétna dohoda pri obhliadke. Budova je dostupná pre zásobovanie kamiónom s návesom, nakládka/vykládka bez problémov.
Priestor je dostupný ihneď. Odporúčam vidieť!
Cena nájmu predstavuje 8,-EUR/m2/mesiac. Pri podpise zmluvy sa skladá zábezpeka vo výške dvoj-mesačného nájmu.
V prípade záujmu o obhliadku nás kontaktujte.
Hlavné zázemie v kompletne rekonštruovanej budove predstavuje plochu 101 m2. viď. priložený pôdorys s ozn. priestorov č. 101-106. Parkovanie a zásobovanie bezproblémové.
Pre lekárov: variabilita priestorov pre viacero ambulancii s recepciou, úpravy dohodou.
Priestor je energeticky nenáročný, budova energeticky zodpovedá aktuálnej dobe. Kúrenie plynom - vlastný kotol, optický internet k dispozícii v prípade potreby (Telekom/Orange) dostupný, prípadne lokálna sieť / lokálny dodávateľ.
K hlavnému priestoru je možné prenajať variabilne viacero skladových priestorov:
1. exteriérová plocha v uzavretom objekte dostupná automatickou bránou v šírke 3,1m,
2. suterénový sklad,
3. externý sklad napojený na budovu, kamerový a bezpečnostný systém.
4. Možnosť doprenajať garáž naviac v uzavretom priestore prístupnom automatickou posuvnou bránou, zabezpečený kamerou.
Konkrétna dohoda pri obhliadke. Budova je dostupná pre zásobovanie kamiónom s návesom, nakládka/vykládka bez problémov.
Priestor je dostupný ihneď. Odporúčam vidieť!
Cena nájmu predstavuje 8,-EUR/m2/mesiac. Pri podpise zmluvy sa skladá zábezpeka vo výške dvoj-mesačného nájmu.
V prípade záujmu o obhliadku nás kontaktujte.
|
| |||||||||||||||||||||||||||||||
Kontaktovať inzerenta e-mailom
Kontaktovať e-mailom môže iba overený užívateľ.
Overenie je zadarmo.
Vaše telefónne číslo *
Kontaktovať e-mailom môže iba overený užívateľ.
Overenie je zadarmo.
Vaše telefónne číslo *

