Rozostavaná stavba s veľkým pozemkom na predaj
- [18.12. 2025]Zmazať/ Upraviť/ Topovať



























Oto Horváth ponúka vám rozostavanú stavbu v meste Veľký Meder. Dom sa nachádza v príjemnom tichom prostredí. K pozemku vedie privátna cesta s prístupom na miestnu komunikáciu.
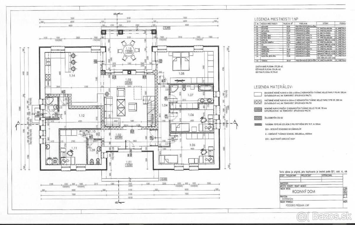
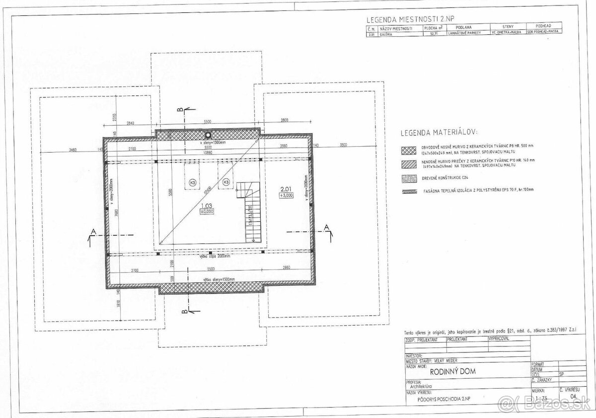
Stavba je umiestnená na skoro 30 árovom pozemku. Zastavaná plocha domu je 272m2.
Dispozičné riešenie domu:
Obývačka spojená s jedálňou a kuchyňou 63m2
Spálňa 21m2
Dve detské izby 18m2 a 12m2
Dve kúpeľne 11m2 a 3m2
Hosťovská izba alebo pracovňa 10m2
Vedľa pracovne je ďalšia WC pre hostí.
Technická miestnosť a práčovňa 18m2
Dom je vo výbornom stave a predáva ako rozostavaná stavba. Dokončenie môžete mať vo vlastných rukách.
Kompletná občianska vybavenosť: základná škola, materská škola, vlaková stanica, samostatné ambulancie, lekárne, pošta, knižnica, futbalové ihrisko, kemping, kúpalisko umelé alebo prírodné, obchody, banky, poisťovne, a iné
Atrakcie a zaujímavosti v okolí:
- termálne kúpalisko Veľký Meder
- termálne kúpalisko Topoľníky a Thermalpark Dunajská Streda
Veľký Meder, je jeden z najvýznamnejších vyhľadávaných turistických centier na Slovensku. Kúpeľné mesto na juhu má 940 ročnú históriu s termálnou vodou.
V prípade záujmu neváhajte ma kontaktovať, teším sa na stretnutie s Vami!
Kontaktná osoba: Oto Horváth
tel.: 0917 347 564
Cena ponúkanej nehnuteľnosti zahŕňa:
- vypracovanie potrebnej zmluvnej dokumentácie a realizáciu celej transakcie,
- poplatok za návrh na vklad do katastra nehnuteľností,
- poplatky za overenie podpisov u notára,
- doručenie podkladov na kataster,
- asistenciu pri odovzdaní nehnuteľnosti a prehlásení energií a služieb,
- ďalšiu potrebnú asistenciu podľa dohody.
Stavba je umiestnená na skoro 30 árovom pozemku. Zastavaná plocha domu je 272m2.
Dispozičné riešenie domu:
Obývačka spojená s jedálňou a kuchyňou 63m2
Spálňa 21m2
Dve detské izby 18m2 a 12m2
Dve kúpeľne 11m2 a 3m2
Hosťovská izba alebo pracovňa 10m2
Vedľa pracovne je ďalšia WC pre hostí.
Technická miestnosť a práčovňa 18m2
Dom je vo výbornom stave a predáva ako rozostavaná stavba. Dokončenie môžete mať vo vlastných rukách.
Kompletná občianska vybavenosť: základná škola, materská škola, vlaková stanica, samostatné ambulancie, lekárne, pošta, knižnica, futbalové ihrisko, kemping, kúpalisko umelé alebo prírodné, obchody, banky, poisťovne, a iné
Atrakcie a zaujímavosti v okolí:
- termálne kúpalisko Veľký Meder
- termálne kúpalisko Topoľníky a Thermalpark Dunajská Streda
Veľký Meder, je jeden z najvýznamnejších vyhľadávaných turistických centier na Slovensku. Kúpeľné mesto na juhu má 940 ročnú históriu s termálnou vodou.
V prípade záujmu neváhajte ma kontaktovať, teším sa na stretnutie s Vami!
Kontaktná osoba: Oto Horváth
tel.: 0917 347 564
Cena ponúkanej nehnuteľnosti zahŕňa:
- vypracovanie potrebnej zmluvnej dokumentácie a realizáciu celej transakcie,
- poplatok za návrh na vklad do katastra nehnuteľností,
- poplatky za overenie podpisov u notára,
- doručenie podkladov na kataster,
- asistenciu pri odovzdaní nehnuteľnosti a prehlásení energií a služieb,
- ďalšiu potrebnú asistenciu podľa dohody.
|
| |||||||||||||||||||||||||||||||
Kontaktovať inzerenta e-mailom
Kontaktovať e-mailom môže iba overený užívateľ.
Overenie je zadarmo.
Vaše telefónne číslo *
Kontaktovať e-mailom môže iba overený užívateľ.
Overenie je zadarmo.
Vaše telefónne číslo *






