PINK Reality - NOVOSTAVBA 2 - izbový byt s krytou terasou a
- [18.12. 2025]Zmazať/ Upraviť/ Topovať






























Doprajte si bývanie kde sa spája moderný dizajn, súkromie a komfort v pokojnom prostredí s výbornou dostupnosťou do centra mesta Sládkovičovo.
Nový projekt ponúka na predaj 48 moderných bytov, ktoré spĺňajú nároky aj tých najnáročnejších.
3D Prehliadku bytu si viete pozrieť skopírovaním nasledujúceho odkazu:
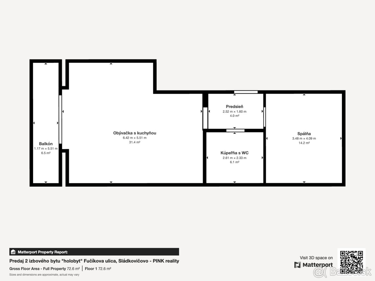
Holobyt:
https://my.vpromo.sk/sk/tour/bde5j9hz9
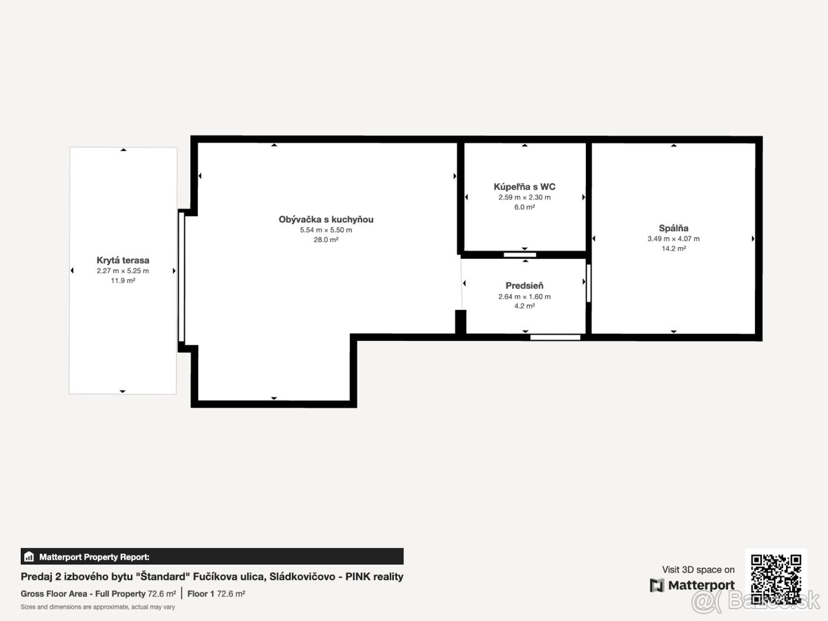
Štandard:
https://my.vpromo.sk/sk/tour/rxn11ghaxe
V ponuke sú krásne:
* 2 izbové byty s rozlohou 54,9 m2 - ideálne pre páry či jednotlivcov, ktorí chcú viac priestoru
Dispozícia 2 izbových bytov na PRÍZEMÍ s krytou terasou a záhradkou:
* predsieň (4,2 m2)
* priestranná obývacia miestnosť prepojená s kuchyňou (28 m2)
* veľká kúpeľňa s vaňou a toaletou (6 m2)
* spálňa (14,2 m2)
* krytá terasa (7,1 m2)
* záhrada (od 32 m2 do 116 m2)
Moderný dizajn a praktická dispozícia navrhnutá pre pohodlný život. Byty sa predávajú v štádiu HOLOBYT, takže si ten svoj môžete dokončiť presne podľa svojich predstáv.
Ale ak chcete mať všetko bez starostí, ponúkame aj možnosť dokončenia do ŠTANDARDU, ktorý si viete vybrať z ponuky moderných materiálov.
ŠTANDARD obsahuje:
- laminátové podlahy v celom byte s lištami
- interiérové dvere
- obklady a dlažby do kúpeľne
- sanita: toaleta, vaňa
- vymaľovanie na bielo
Cena ŠTANDARDU pre 2 izbový byt je 8000€
Technické vybavenie bytu:
- elektrické podlahové kúrenie s termostatom v každej miestnosti
- predpríprava na videovrátnika
- predpríprava na klimatizáciu
- rekuperácia
Spodné 2-izbové byty ponúkajú súkromné záhrady, ktorých veľkosti sa pohybujú od 32 m2 až po 116 m2 - vyberte si presne takú ako potrebujete.
Cena 2 izbových bytov v štádiu HOLOBYT je OD 120 760€.
Ceny týchto bytov sa odvíjajú od veľkosti záhrady.
Cena bytu dokončeného do štandardu od 120 760€ + 8000€
VÝBORNÁ LOKALITA
Projekt ponúka výbornú dostupnosť do centra Sládkovičova, kde máte všetko na dosah - školy, škôlky, potraviny. Zároveň je projekt navrhnutý tak aby vznikol bezpečný priestor pre pokojné rodinné bývanie.
Kontaktujte nás ešte dnes a zarezervujte si svoj nový DOMOV!
Ing. Lea Fodorová
+421 944 971 717
fodorova.lea@pinkreality.sk
PINK reality
Nový projekt ponúka na predaj 48 moderných bytov, ktoré spĺňajú nároky aj tých najnáročnejších.
3D Prehliadku bytu si viete pozrieť skopírovaním nasledujúceho odkazu:
Holobyt:
https://my.vpromo.sk/sk/tour/bde5j9hz9
Štandard:
https://my.vpromo.sk/sk/tour/rxn11ghaxe
V ponuke sú krásne:
* 2 izbové byty s rozlohou 54,9 m2 - ideálne pre páry či jednotlivcov, ktorí chcú viac priestoru
Dispozícia 2 izbových bytov na PRÍZEMÍ s krytou terasou a záhradkou:
* predsieň (4,2 m2)
* priestranná obývacia miestnosť prepojená s kuchyňou (28 m2)
* veľká kúpeľňa s vaňou a toaletou (6 m2)
* spálňa (14,2 m2)
* krytá terasa (7,1 m2)
* záhrada (od 32 m2 do 116 m2)
Moderný dizajn a praktická dispozícia navrhnutá pre pohodlný život. Byty sa predávajú v štádiu HOLOBYT, takže si ten svoj môžete dokončiť presne podľa svojich predstáv.
Ale ak chcete mať všetko bez starostí, ponúkame aj možnosť dokončenia do ŠTANDARDU, ktorý si viete vybrať z ponuky moderných materiálov.
ŠTANDARD obsahuje:
- laminátové podlahy v celom byte s lištami
- interiérové dvere
- obklady a dlažby do kúpeľne
- sanita: toaleta, vaňa
- vymaľovanie na bielo
Cena ŠTANDARDU pre 2 izbový byt je 8000€
Technické vybavenie bytu:
- elektrické podlahové kúrenie s termostatom v každej miestnosti
- predpríprava na videovrátnika
- predpríprava na klimatizáciu
- rekuperácia
Spodné 2-izbové byty ponúkajú súkromné záhrady, ktorých veľkosti sa pohybujú od 32 m2 až po 116 m2 - vyberte si presne takú ako potrebujete.
Cena 2 izbových bytov v štádiu HOLOBYT je OD 120 760€.
Ceny týchto bytov sa odvíjajú od veľkosti záhrady.
Cena bytu dokončeného do štandardu od 120 760€ + 8000€
VÝBORNÁ LOKALITA
Projekt ponúka výbornú dostupnosť do centra Sládkovičova, kde máte všetko na dosah - školy, škôlky, potraviny. Zároveň je projekt navrhnutý tak aby vznikol bezpečný priestor pre pokojné rodinné bývanie.
Kontaktujte nás ešte dnes a zarezervujte si svoj nový DOMOV!
Ing. Lea Fodorová
+421 944 971 717
fodorova.lea@pinkreality.sk
PINK reality
|
| |||||||||||||||||||||||||||||||
Kontaktovať inzerenta e-mailom
Kontaktovať e-mailom môže iba overený užívateľ.
Overenie je zadarmo.
Vaše telefónne číslo *
Kontaktovať e-mailom môže iba overený užívateľ.
Overenie je zadarmo.
Vaše telefónne číslo *
Podobné inzeráty
SKOLAUDOVANÉ Novostavby 2 - izbových bytov v novom rezidenčn - [18.12. 2025]Doprajte si bývanie kde sa spája moderný dizajn, súkromie a komfort v pokojnom prostredí s výbornou dostupnosťou do centra mesta Sládkovičovo.
Nový projekt ponúka na predaj 48 moderných bytov, ktoré spĺňajú nároky aj tých najnáročnejších.
3D Prehliadku bytu si viete pozrieť skopírovaním nasledujúce ...
118 200 €
Galanta
925 21
925 21
312 x
Označiť zlý inzerát Chybnú kategóriu Ohodnotiť užívateľa Zmazať/Upraviť/Topovať
1. ETAPA SKOLAUDOVANÁ Výnimočné bývanie, ktoré si zamiluj - [18.12. 2025]Doprajte si bývanie kde sa spája moderný dizajn, súkromie a komfort v pokojnom prostredí s výbornou dostupnosťou do centra mesta Sládkovičovo.
Nový projekt ponúka na predaj 48 moderných bytov, ktoré spĺňajú nároky aj tých najnáročnejších.
3D Prehliadku bytu si viete pozrieť skopírovaním nasledu ...
136 800 €
Galanta
925 21
925 21
276 x
Označiť zlý inzerát Chybnú kategóriu Ohodnotiť užívateľa Zmazať/Upraviť/Topovať
Predaj reknštr.4izb bytu 79m2+mur.pivnica 18m2-Predajom voľn - [9.12. 2025]Typ: 4-izbový byt
Ulica: sídlisko Jána Dalloša
Obec: Sládkovičovo
Ponúkame na predaj rekonštruovaný čiastočne zariadený 4izb byt 79,4m2 + murovaná pivnica 18,36m2 na 2 z 5poschodí s výťahom na sídl. J. Dalloša v Sládkovičove.
Tento celý deň presvetlený, priestranný byt s veľkým úlo ...
147 000 €
Galanta
925 21
925 21
804 x
Označiť zlý inzerát Chybnú kategóriu Ohodnotiť užívateľa Zmazať/Upraviť/Topovať
Nadštandardný 2 izbový byt 100 m2 s 2 terasami Sládkovičovo - [8.12. 2025]TOP REALITY KIČKOVÁ ǀ BALUCHOVÁ 17 rokov na trhu ponúka Exkluzívne na predaj
Nadštandardne veľký 2 izbový byt o výmere 100 m2 s 2 terasami v centre mesta Sládkovičovo, ul. Fučíkova.
Novšia stavba sa nachádza v polyfunkčnom dome, na prízemí je supermarket COOP Jednota.
Byt je slnečný, veľký, ...
Dohodou
Galanta
925 21
925 21
587 x
Označiť zlý inzerát Chybnú kategóriu Ohodnotiť užívateľa Zmazať/Upraviť/Topovať
Predaj moderného 3izb bytu 70m2 v novostavbe v centre Sládko - [8.12. 2025]Typ: 3-izbový byt
Ulica: Fučíkova
Obec: Sládkovičovo
Ponúkame na predaj zariadený, moderný 3izb byt s balkónom a lodžiou, v novostavbe trojposchodového, zatepleného bytového domu s výťahom, v novovybudovanej tichej lokalite Marína, v centre mest ...
187 500 €
Galanta
925 21
925 21
750 x
Označiť zlý inzerát Chybnú kategóriu Ohodnotiť užívateľa Zmazať/Upraviť/Topovať
REZERVOVANÉ -3i byt 114m2, dve kúpeľne, Sládkovičovo - TOP - [16.12. 2025]Typ: 3-izbový byt
Ulica: fučíková
Obec: Sládkovičovo
SaleA vám prináša do ponuky na predaj priestranný 3-izbový byt s výnimočnou atmosférou v Sládkovičove.
Táto nehnuteľnosť vás očarí hneď niekoľkými prednosťami – vysokými stropmi, premysleným dispozičným riešením, a stálou hodnotou investície ...
154 900 €
Galanta
925 21
925 21
846 x
Označiť zlý inzerát Chybnú kategóriu Ohodnotiť užívateľa Zmazať/Upraviť/Topovať
Predaj 3izb bytov v novostavbe v Sládkovičove v novovybudova - [26.11. 2025]Typ: 3-izbový byt
Ulica: Fučíkova
Obec: Sládkovičovo
Realitná kancelária OB-Real s.r.o. Vám exkluzívne ponúka na predaj 2-izbové a 3-izbové byty v novom rezidenčnom projekte Oriešky - Zátišie v Sládkovičove.
Tento moderný bytový komplex ponúka výborné dispozičné riešenie bytov s nízk ...
136 800 €
Galanta
925 21
925 21
661 x
Označiť zlý inzerát Chybnú kategóriu Ohodnotiť užívateľa Zmazať/Upraviť/Topovať
AKCIA zľava 5000,- eur Predaj 2izb Skolaudovaných bytov s t - [26.11. 2025]Typ: 2-izbový byt
Ulica: Fučíkova
Obec: Sládkovičovo
Realitná kancelária OB-Real s.r.o. Vám exkluzívne ponúka na predaj 2-izbové a 3-izbové byty v novom rezidenčnom projekte Oriešky - Zátišie v Sládkovičove.
Tento moderný bytový komplex ponúka výborné dispozičné riešenie bytov s nízk ...
120 760 €
Galanta
925 21
925 21
704 x
Označiť zlý inzerát Chybnú kategóriu Ohodnotiť užívateľa Zmazať/Upraviť/Topovať
Predaj 2izb bytov v novostavbe v Sládkovičove v novovybudova - [26.11. 2025]Typ: 2-izbový byt
Ulica: Fučíkova
Obec: Sládkovičovo
Realitná kancelária OB-Real s.r.o. Vám exkluzívne ponúka na predaj 2-izbové a 3-izbové byty v novom rezidenčnom projekte Oriešky - Zátišie v Sládkovičove.
Tento moderný bytový komplex ponúka výborné dispozičné riešenie bytov s nízk ...
118 200 €
Galanta
925 21
925 21
650 x
Označiť zlý inzerát Chybnú kategóriu Ohodnotiť užívateľa Zmazať/Upraviť/Topovať
Predaj moderných 3izb bytov 82m2 v novostavbe v centre Sládk - [19.11. 2025]Typ: 3-izbový byt
Ulica: Fučíkova
Obec: Sládkovičovo
Ponúkame na predaj moderné 3izb holobyty s balkónom a lodžiou, v trojposchodovom zateplenom bytovom dome s výťahom, v novovybudovanej tichej lokalite Marína, v centre mesta Sládkovičovo.
Na každom poschodí ...
168 000 €
Galanta
925 21
925 21
280 x
Označiť zlý inzerát Chybnú kategóriu Ohodnotiť užívateľa Zmazať/Upraviť/Topovať









