2 izbový byt v Rezidencií Gabriele v Moldave nad Bodvou
- [17.12. 2025]Zmazať/ Upraviť/ Topovať





























Objavte domov v Rezidencií Gabriele, ktorá sa nachádza v absolútnom centre mesta Moldavy nad Bodvou.
Realitná kancelária TOBI Real Vám ponúka na predaj 2 izbový byt v rámci bytového projektu Rezidencia Gabriele.
Rezidenčný projekt Gabriele Vám ponúka 11 bytových jednotiek v kompletne uzavretom areáli s kamerovým systémom.
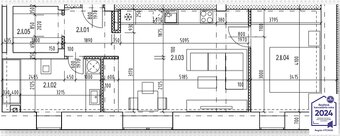
Cena 2 izbového bytu 2.I (viď pôdorys) v štádiu HOLOBYT je 85 000 €. Dispozične je byt riešený ako presvetlená denná časť s kuchyňou prepojenou s obývacou izbou, samostatná spálňa, priestranná vstupná chodba, kúpeľňa a samostatná toaleta. Súčasťou bytu je aj priestor vhodný na zriadenie šatníka. K bytu prislúcha pivnica o výmere 7 m², ktorá nie je započítaná do podlahovej plochy bytu.
Byt je možné dokončiť do vyhotovenia ŠTANDARD, ktorý zahŕňa interiérové dvere, zárubne, podlahové krytiny a sanitu. Cena prevedenia štandard je 90 000 €. Pre náročnejších klientov ponúkame za príplatok aj vyhotovenie NADŠTANDARD, klient si na želanie môže zvoliť rozsah vybraného nadštandardu.
V rámci mesta je rezidencia Gabriele umiestnená priamo v centre, kde všetko čo potrebujete, máte na dosah v minútových vzdialenostiach.
K bytovým jednotkám je možné dokúpiť si samostatnú garáž s elektricky ovládanou bránou v cene 25 000 €, alebo vonkajšie parkovacie miesto v cene 5 000 €.
Pre podrobnejšiu predstavu o rozložení a detailoch si môžete pozrieť našu 3D obhliadku prostredníctvom tohto odkazu:
https://my.matterport.com/show/?m=s8xBD91QDLf
https://my.matterport.com/show/?m=s8xBD91QDLf
https://my.matterport.com/show/?m=eWBrdGuud1B
(je potrebné odkaz skopírovať a vložiť priamo do adresného riadku prehliadača).
Cena tejto nehnuteľnosti je 85 000 € vrátane kompletného zabezpečenia prevodu vlastníckych práv, právneho servisu, vypracovania všetkých zmlúv. Právna istota je zabezpečená advokátskou kanceláriou. Taktiež Vám radi pomôžeme s hypotekárnym úverom prostredníctvom nášho interného finančného centra, ktoré Vám sprostredkuje poskytnutie najvýhodnejšieho úveru na trhu.
Použité fotografie sú zo vzorového bytu a nemusia presne odrážať realitu, byt sa nachádza v stave holobyt.
VŠETKY INFORMÁCIE O PROJEKTE A PONUKE BYTOV NÁJDETE NA WEBE gabriele.sk
Sme certifikovaná realitná kancelária a člen NARKS.
Realitná kancelária TOBI Real Vám ponúka na predaj 2 izbový byt v rámci bytového projektu Rezidencia Gabriele.
Rezidenčný projekt Gabriele Vám ponúka 11 bytových jednotiek v kompletne uzavretom areáli s kamerovým systémom.
Cena 2 izbového bytu 2.I (viď pôdorys) v štádiu HOLOBYT je 85 000 €. Dispozične je byt riešený ako presvetlená denná časť s kuchyňou prepojenou s obývacou izbou, samostatná spálňa, priestranná vstupná chodba, kúpeľňa a samostatná toaleta. Súčasťou bytu je aj priestor vhodný na zriadenie šatníka. K bytu prislúcha pivnica o výmere 7 m², ktorá nie je započítaná do podlahovej plochy bytu.
Byt je možné dokončiť do vyhotovenia ŠTANDARD, ktorý zahŕňa interiérové dvere, zárubne, podlahové krytiny a sanitu. Cena prevedenia štandard je 90 000 €. Pre náročnejších klientov ponúkame za príplatok aj vyhotovenie NADŠTANDARD, klient si na želanie môže zvoliť rozsah vybraného nadštandardu.
V rámci mesta je rezidencia Gabriele umiestnená priamo v centre, kde všetko čo potrebujete, máte na dosah v minútových vzdialenostiach.
K bytovým jednotkám je možné dokúpiť si samostatnú garáž s elektricky ovládanou bránou v cene 25 000 €, alebo vonkajšie parkovacie miesto v cene 5 000 €.
Pre podrobnejšiu predstavu o rozložení a detailoch si môžete pozrieť našu 3D obhliadku prostredníctvom tohto odkazu:
https://my.matterport.com/show/?m=s8xBD91QDLf
https://my.matterport.com/show/?m=s8xBD91QDLf
https://my.matterport.com/show/?m=eWBrdGuud1B
(je potrebné odkaz skopírovať a vložiť priamo do adresného riadku prehliadača).
Cena tejto nehnuteľnosti je 85 000 € vrátane kompletného zabezpečenia prevodu vlastníckych práv, právneho servisu, vypracovania všetkých zmlúv. Právna istota je zabezpečená advokátskou kanceláriou. Taktiež Vám radi pomôžeme s hypotekárnym úverom prostredníctvom nášho interného finančného centra, ktoré Vám sprostredkuje poskytnutie najvýhodnejšieho úveru na trhu.
Použité fotografie sú zo vzorového bytu a nemusia presne odrážať realitu, byt sa nachádza v stave holobyt.
VŠETKY INFORMÁCIE O PROJEKTE A PONUKE BYTOV NÁJDETE NA WEBE gabriele.sk
Sme certifikovaná realitná kancelária a člen NARKS.
|
| |||||||||||||||||||||||||||||||
Kontaktovať inzerenta e-mailom
Kontaktovať e-mailom môže iba overený užívateľ.
Overenie je zadarmo.
Vaše telefónne číslo *
Kontaktovať e-mailom môže iba overený užívateľ.
Overenie je zadarmo.
Vaše telefónne číslo *








