DOHODA MOŽNÁ NA PREDAJ POZEMOK, 973 M2, KOKOŠOVCE PRI PREŠOV
- [17.12. 2025]Zmazať/ Upraviť/ Topovať





























Ponúkame na predaj pekný veľký pozemok o rozlohe 973 m2 v Kokošovciach pri Prešove. Momentálne sa využíva ako záhrada, ale je vhodný aj na stavbu domu.
Nachádza sa v tichej uličke mimo hlavnej cesty, dookola sú postavené nové rodinné domy.
Na pozemku je vlastná studňa a elektrina, na hranici pozemku kanalizácia a plyn. Pozemok je čiastočne rovinatý, niekde mierne vlnitý, je celý oplotený.
Na pozemku je záhradná chatka (rozmer cca 7x3 m vrátane terasky), pivnica či iné miestnosti ako dielnička, odkladací priestor na náradie a drevo.
Sú tu vysadené viaceré ovocné stromy ako jabloň, orech, slivky a tiež hrozno.
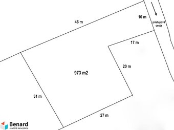
- pozemok 973 m2 (rozmery viď priložená foto), čiastočne rovinatý, resp. mierne vlnitý
- osobné vlastníctvo
- prístupová cesta - obecná asfaltová
- kúrenie v chatke - piecka
- studňa a elektrina na pozemku
- kanalizácia a plyn na hranici pozemku
- chatka postavená pred cca 30 rokmi
- pivnica, dielnička, odkladací priestor na drevo a náradie
- suché WC
- pozemok je vysporiadaný, bez tiarch
Obec Kokošovce je od mesta Prešov vzdialená 12 km, neďaleko je rekreačná oblasť Sigord a Zlatá baňa. V obci sa nachádza materská a základná škola, potraviny, pošta, zastávka, tiež kostol.
Ak máte záujem o obhliadku prípadne potrebujete viac informácii nájdete nás v realitnom centre na Slovenskej ul. č. 8 v Prešove, prípadne na kocisova@benard.sk alebo na telefónnom čísle 0910 900 920
ZADARMO K TEJTO NEHNUTEĽNOSTI DOSTANETE:
¬ inzerovanie nehnuteľnosti na najsledovanejších realitných portáloch a v miestnych novinách;
¬ preverenie právneho stavu a tiarch danej nehnuteľnosti;
¬ vysvetlenie problémov záložných tiarch, vecných bremien a pod.;
¬ právny servis zabezpečený právnikom s dlhoročnými skúsenosťami;
¬ kópiu LV prípadne katastrálnej mapy s kolkom na právne účely;
¬ poplatky za overenie podpisov na zmluvách u notára;
¬ správny poplatok za vklad vlastníckeho práva do katastra vo výške 100,-€
¬ realitné, daňové a právne poradenstvo;¬ zabezpečenie znalca na vypracovania znaleckého posudku;
¬ vypracovanie ponúk na zabezpečenie úveru u nášho hypotekárneho odborníka, ktorý spolupracuje s viacerými bankami
Rozloha pozemku: 973m²
Vlastníctvo: osobné
El. napätie: 230V
Plyn: áno
Kanalizácia: áno
Inžinierske siete: áno
Terén: mierny svah
Prístupová cesta: asfaltová cesta
Pripravené na výstavbu: predbežný súhlas
Nachádza sa v tichej uličke mimo hlavnej cesty, dookola sú postavené nové rodinné domy.
Na pozemku je vlastná studňa a elektrina, na hranici pozemku kanalizácia a plyn. Pozemok je čiastočne rovinatý, niekde mierne vlnitý, je celý oplotený.
Na pozemku je záhradná chatka (rozmer cca 7x3 m vrátane terasky), pivnica či iné miestnosti ako dielnička, odkladací priestor na náradie a drevo.
Sú tu vysadené viaceré ovocné stromy ako jabloň, orech, slivky a tiež hrozno.
- pozemok 973 m2 (rozmery viď priložená foto), čiastočne rovinatý, resp. mierne vlnitý
- osobné vlastníctvo
- prístupová cesta - obecná asfaltová
- kúrenie v chatke - piecka
- studňa a elektrina na pozemku
- kanalizácia a plyn na hranici pozemku
- chatka postavená pred cca 30 rokmi
- pivnica, dielnička, odkladací priestor na drevo a náradie
- suché WC
- pozemok je vysporiadaný, bez tiarch
Obec Kokošovce je od mesta Prešov vzdialená 12 km, neďaleko je rekreačná oblasť Sigord a Zlatá baňa. V obci sa nachádza materská a základná škola, potraviny, pošta, zastávka, tiež kostol.
Ak máte záujem o obhliadku prípadne potrebujete viac informácii nájdete nás v realitnom centre na Slovenskej ul. č. 8 v Prešove, prípadne na kocisova@benard.sk alebo na telefónnom čísle 0910 900 920
ZADARMO K TEJTO NEHNUTEĽNOSTI DOSTANETE:
¬ inzerovanie nehnuteľnosti na najsledovanejších realitných portáloch a v miestnych novinách;
¬ preverenie právneho stavu a tiarch danej nehnuteľnosti;
¬ vysvetlenie problémov záložných tiarch, vecných bremien a pod.;
¬ právny servis zabezpečený právnikom s dlhoročnými skúsenosťami;
¬ kópiu LV prípadne katastrálnej mapy s kolkom na právne účely;
¬ poplatky za overenie podpisov na zmluvách u notára;
¬ správny poplatok za vklad vlastníckeho práva do katastra vo výške 100,-€
¬ realitné, daňové a právne poradenstvo;¬ zabezpečenie znalca na vypracovania znaleckého posudku;
¬ vypracovanie ponúk na zabezpečenie úveru u nášho hypotekárneho odborníka, ktorý spolupracuje s viacerými bankami
Rozloha pozemku: 973m²
Vlastníctvo: osobné
El. napätie: 230V
Plyn: áno
Kanalizácia: áno
Inžinierske siete: áno
Terén: mierny svah
Prístupová cesta: asfaltová cesta
Pripravené na výstavbu: predbežný súhlas
|
| |||||||||||||||||||||||||||||||
Kontaktovať inzerenta e-mailom
Kontaktovať e-mailom môže iba overený užívateľ.
Overenie je zadarmo.
Vaše telefónne číslo *
Kontaktovať e-mailom môže iba overený užívateľ.
Overenie je zadarmo.
Vaše telefónne číslo *








