Predaj 3-izbového bytu, Svätoplukova, Púchov
- [17.12. 2025]Zmazať/ Upraviť/ Topovať



























Ponúkame Vám na predaj pekný trojizbový byt v novostavbe v Púchove.
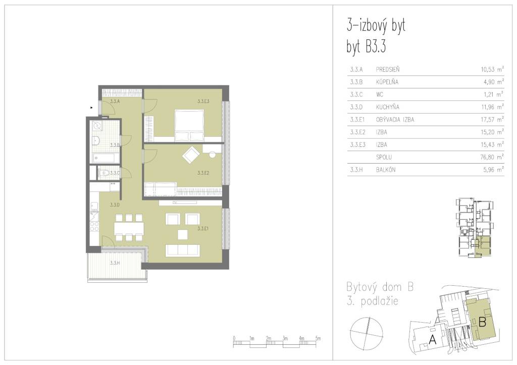
Byt o výmere 76,8 m2 sa nachádza na prízemí bytového domu s výťahom. K bytu patrí balkón o výmere 5,96 m2. Má veľmi dobré dispozičné riešenie. Priestranný obývací priestor s kuchyňou, dve samostatné nepriechodné izby, samostatnú toaletu, veľkú kúpeľňu, vstupnú chodbu a balkón. Predáva sa v stave holobyt, a to je : plastové okná, príprava na podlahy, a kuchyňu, radiátory, zásuvky, vypínače a bezpečnostné vchodové dvere. Kúpeľňa a WC sú dokončené s obkladom, dlažbou a doplní sa sanita. Vykurovanie je centrálne. Záujemca má možnosť prikúpiť si garážové státie v objekte alebo vonkajšie parkovacie miesto. Bytový dom je skolaudovaný a je možné prísť na obhliadku. Z tohto druhu máme voľné ešte dva byty. Zvýhodnená úroková sadzba pri financovaní vo VÚB banke na základe developerského projektu.
Veľmi radi Vás a pomôžeme pri výbere.
Cena bytu: 179. 341,- €.
Bližšie informácie, prípadne obhliadku si môžete dohodnúť na tel. čísle: 0902 674 171
Dodatok k cene: , vrátane provízie
Obytná plocha: 83m²
Celková rozloha: 77m²
Úžitková plocha: 83m²
Vlastníctvo: firemné
Stav: holopriestor
Odvoz odpadu: áno
Plyn: áno
Internet: optika
Kúpeľňa: áno
Vykurovanie: spoločné – vlastná kotolňa
Balkón: áno - 1
Lódžia: nie
Terasa: nie
Pivnica: áno
Výťah: áno
Parkovanie: vnútorné
Postavené z: Zmiešané
Zariadenie: nezariadený
Zateplený objekt: áno
Káblová televízia: áno
Energetický certifikát: A
Predzáhradka: nie
Bezbariérový prístup : áno
Okná: plastové
Orientácia: juhozápadná
Byt o výmere 76,8 m2 sa nachádza na prízemí bytového domu s výťahom. K bytu patrí balkón o výmere 5,96 m2. Má veľmi dobré dispozičné riešenie. Priestranný obývací priestor s kuchyňou, dve samostatné nepriechodné izby, samostatnú toaletu, veľkú kúpeľňu, vstupnú chodbu a balkón. Predáva sa v stave holobyt, a to je : plastové okná, príprava na podlahy, a kuchyňu, radiátory, zásuvky, vypínače a bezpečnostné vchodové dvere. Kúpeľňa a WC sú dokončené s obkladom, dlažbou a doplní sa sanita. Vykurovanie je centrálne. Záujemca má možnosť prikúpiť si garážové státie v objekte alebo vonkajšie parkovacie miesto. Bytový dom je skolaudovaný a je možné prísť na obhliadku. Z tohto druhu máme voľné ešte dva byty. Zvýhodnená úroková sadzba pri financovaní vo VÚB banke na základe developerského projektu.
Veľmi radi Vás a pomôžeme pri výbere.
Cena bytu: 179. 341,- €.
Bližšie informácie, prípadne obhliadku si môžete dohodnúť na tel. čísle: 0902 674 171
Dodatok k cene: , vrátane provízie
Obytná plocha: 83m²
Celková rozloha: 77m²
Úžitková plocha: 83m²
Vlastníctvo: firemné
Stav: holopriestor
Odvoz odpadu: áno
Plyn: áno
Internet: optika
Kúpeľňa: áno
Vykurovanie: spoločné – vlastná kotolňa
Balkón: áno - 1
Lódžia: nie
Terasa: nie
Pivnica: áno
Výťah: áno
Parkovanie: vnútorné
Postavené z: Zmiešané
Zariadenie: nezariadený
Zateplený objekt: áno
Káblová televízia: áno
Energetický certifikát: A
Predzáhradka: nie
Bezbariérový prístup : áno
Okná: plastové
Orientácia: juhozápadná
|
| |||||||||||||||||||||||||||||||
Kontaktovať inzerenta e-mailom
Kontaktovať e-mailom môže iba overený užívateľ.
Overenie je zadarmo.
Vaše telefónne číslo *
Kontaktovať e-mailom môže iba overený užívateľ.
Overenie je zadarmo.
Vaše telefónne číslo *






