Kancelárie na Vajnorskej ulici, Bratislava III
- [17.12. 2025]Zmazať/ Upraviť/ Topovať
















Ponúkame na prenájom kancelárie na Vajnorskej ulici, neďaleko nákupného centra Palace na Zlatých Pieskoch, Bratislava 3.
Kancelárie rôzneho štandardu, výrobné priestory a haly, prístrešky, skladové priestory zateplené a nezateplené, garáže pre motorové vozidlá, voľné plochy – odstavné a skladové plochy rôznych rozmerov.
Na prízemí sa nachádza reštaurácia s denným menu.
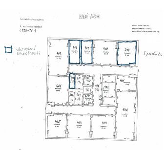
Kancelárie sú rôzne, od výmery 14 m2, klimatizované. Internet optika (V-net).
Nájomné je 9,08 €/m2/mesiac + energie a služby.
Napr. nájom 3 kancelárii na 3.p, celk. výmery 88 m2 (14+46+28 m2) je 841 €/mesiac + energie.
V cene prenájmu je aj jedno PARKOVACIE MIESTO štatutára. Ceny sú bez DPH. Záujemca neplatí províziu. Viac informácii u uvedeného realitného manažéra.
Kancelárie rôzneho štandardu, výrobné priestory a haly, prístrešky, skladové priestory zateplené a nezateplené, garáže pre motorové vozidlá, voľné plochy – odstavné a skladové plochy rôznych rozmerov.
Na prízemí sa nachádza reštaurácia s denným menu.
Kancelárie sú rôzne, od výmery 14 m2, klimatizované. Internet optika (V-net).
Nájomné je 9,08 €/m2/mesiac + energie a služby.
Napr. nájom 3 kancelárii na 3.p, celk. výmery 88 m2 (14+46+28 m2) je 841 €/mesiac + energie.
V cene prenájmu je aj jedno PARKOVACIE MIESTO štatutára. Ceny sú bez DPH. Záujemca neplatí províziu. Viac informácii u uvedeného realitného manažéra.
|
| |||||||||||||||||||||||||||||||
Kontaktovať inzerenta e-mailom
Kontaktovať e-mailom môže iba overený užívateľ.
Overenie je zadarmo.
Vaše telefónne číslo *
Kontaktovať e-mailom môže iba overený užívateľ.
Overenie je zadarmo.
Vaše telefónne číslo *