V ŠTANDARDE - 4izb. BYT + TERASA - 120m2 a viac - REZIDENCIA
- [16.12. 2025]Zmazať/ Upraviť/ Topovať






























REWIN reality Vám EXKLUZÍVNE ponúka VEĽKORYSÝ 4 izbový BYT s LOGGIOU a BALKÓNOM o výmere 118,49 m2 v práve dokončenej a SKOLAUDOVANEJ novostavbe REZIDENCIA HLINY v Novej Dubnici. Prevádzky Billa supermarket & Benu lekáreň sú už spustené.
CENA PLATÍ PRE ŠTANDARDNÉ VYHOTOVENIE, NIŽŠIE OPIS ŠTANDARDU.
Základné technické pamaretre bytu o výmere 118,49 m2:
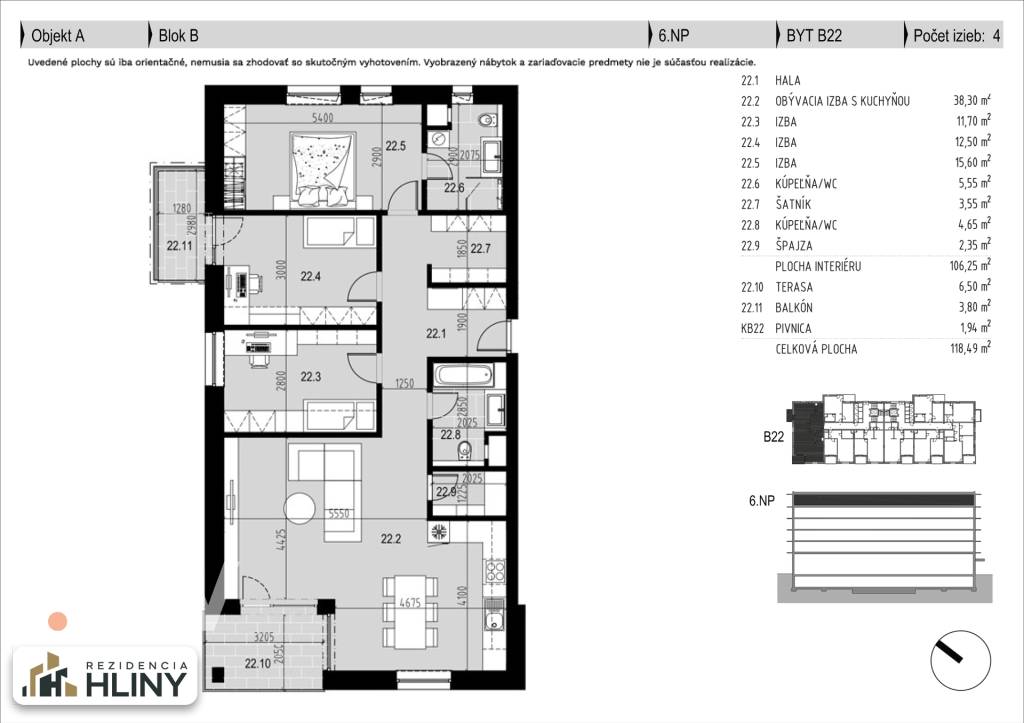
- 106,25 m2 výmera interiéru,
- 1,12 m2 výmera pivnice,
- 6,50 m2 výmera terasy,
- 3,80 m2 výmera balkónu.
Pozrite si pôdorys na poslednom mieste medzi fotografiami inzerátu.
Chcete vidieť všetky zvyšné fotky a virtuálnu obhliadku k bytu? Pošlite mi mail na martisek(zavinac)rewin(bodka)sk.
Projekt REZIDENCIA HLINY v energetickom štandarde (A0 - Primárna energia), bol na začiatku roka 2025 dokončený a skolaudovaný. Jedná sa o polyfunkčný objekt s vysokou úrovňou štandardu, v podobe veľkorysých dispozicií a rozmier bytov, komfortné veľké loggie a balkóny, pivnica ku každému bytu na poschodí, spoločné priestory pre obyvateľov domu pre každý vchod vzvlášť, vnútorné garážové a vonkajšie parkovacie miesta, a v neposlednom rade nadpriemerná vybavenosť v podobe Billa supermarketu a Benu lekárne priamo v objekte.
ŠTANDARD, ktorý Vás očarí
Predpríprava na externé rolety, predpríprava na klimatizáciu, pasívna rekuperácia na vetranie, predpríprava na smart ovládanie domácnosti, 6-komorové okná s izolačným trosjklom, závesny WC systém Geberit, vaňa alebo sprchový kút, odsávací ventilátor so spätnou klapkou, optický kábel pre internet a TV privedený priamo do bytu, domáci telefón a elektronický vrátnik, protipožiarne bezpečnostné viacbodové vchodové dvere, vysoká úroveň izolácie stien.
MOŽNOSŤ ZAKÚPIŤ v prevedení HOLOBYT, ŠTANDARD a aj KOMPLETNÉ ZARIADENIE vďaka partnerovi projektu TOMI štúdio Ilava.
Lokalita NOVÁ DUBNICA
Výnimočné mesto s bohatou občianskou vybavenosťou a dostupnosťou. Centrum mesta je známe svojou jedinečnou architektúrou z 50. rokov minulého storočia navrhnutou architektom Jiřím Krohom. Množstvo kultúrnych podujatí v rámci celého roka. Vybavenosť obchodov ako sú BILLA, LIDL, Coop jednota, Tesco, lekárne Benu, Dr. Max, Sara Medica, kino, známa zmrzlina VELICE, doplnkové obchody, kvetinárstva, a kvalitné reštaurácie. V letných mesiacoch poteší ochladenie v Kúpalisku LETKA, v zime zas krytá plaváreň. Toto mesto poskytuje všetko na život či ste mladý človek, začinajúci pár alebo väčšia rodina s deťmi rôzneho veku. Pre športovcov a milovníkov prírody je toto ideálne miesto na bývanie vzhľadom na dostupnosť do rekreácie.
Dostupnosť na kľúčové miesta z projektu:
- pešia dostupnosť do Novej Dubnice,
- 5 min. napojenie na D1 autom,
- do 15 min. presun autom do Trenčína,
- do 5 min. presun autom do Dubnice nad Váhom.
Chcete vedieť presné náklady k bytu a ostatné technické detaily? Pošlite mi mail a odošlem Vám dodatočné informácie.
V prípade záujmu o viac informácií alebo obhliadku ma neváhajte konta
CENA PLATÍ PRE ŠTANDARDNÉ VYHOTOVENIE, NIŽŠIE OPIS ŠTANDARDU.
Základné technické pamaretre bytu o výmere 118,49 m2:
- 106,25 m2 výmera interiéru,
- 1,12 m2 výmera pivnice,
- 6,50 m2 výmera terasy,
- 3,80 m2 výmera balkónu.
Pozrite si pôdorys na poslednom mieste medzi fotografiami inzerátu.
Chcete vidieť všetky zvyšné fotky a virtuálnu obhliadku k bytu? Pošlite mi mail na martisek(zavinac)rewin(bodka)sk.
Projekt REZIDENCIA HLINY v energetickom štandarde (A0 - Primárna energia), bol na začiatku roka 2025 dokončený a skolaudovaný. Jedná sa o polyfunkčný objekt s vysokou úrovňou štandardu, v podobe veľkorysých dispozicií a rozmier bytov, komfortné veľké loggie a balkóny, pivnica ku každému bytu na poschodí, spoločné priestory pre obyvateľov domu pre každý vchod vzvlášť, vnútorné garážové a vonkajšie parkovacie miesta, a v neposlednom rade nadpriemerná vybavenosť v podobe Billa supermarketu a Benu lekárne priamo v objekte.
ŠTANDARD, ktorý Vás očarí
Predpríprava na externé rolety, predpríprava na klimatizáciu, pasívna rekuperácia na vetranie, predpríprava na smart ovládanie domácnosti, 6-komorové okná s izolačným trosjklom, závesny WC systém Geberit, vaňa alebo sprchový kút, odsávací ventilátor so spätnou klapkou, optický kábel pre internet a TV privedený priamo do bytu, domáci telefón a elektronický vrátnik, protipožiarne bezpečnostné viacbodové vchodové dvere, vysoká úroveň izolácie stien.
MOŽNOSŤ ZAKÚPIŤ v prevedení HOLOBYT, ŠTANDARD a aj KOMPLETNÉ ZARIADENIE vďaka partnerovi projektu TOMI štúdio Ilava.
Lokalita NOVÁ DUBNICA
Výnimočné mesto s bohatou občianskou vybavenosťou a dostupnosťou. Centrum mesta je známe svojou jedinečnou architektúrou z 50. rokov minulého storočia navrhnutou architektom Jiřím Krohom. Množstvo kultúrnych podujatí v rámci celého roka. Vybavenosť obchodov ako sú BILLA, LIDL, Coop jednota, Tesco, lekárne Benu, Dr. Max, Sara Medica, kino, známa zmrzlina VELICE, doplnkové obchody, kvetinárstva, a kvalitné reštaurácie. V letných mesiacoch poteší ochladenie v Kúpalisku LETKA, v zime zas krytá plaváreň. Toto mesto poskytuje všetko na život či ste mladý človek, začinajúci pár alebo väčšia rodina s deťmi rôzneho veku. Pre športovcov a milovníkov prírody je toto ideálne miesto na bývanie vzhľadom na dostupnosť do rekreácie.
Dostupnosť na kľúčové miesta z projektu:
- pešia dostupnosť do Novej Dubnice,
- 5 min. napojenie na D1 autom,
- do 15 min. presun autom do Trenčína,
- do 5 min. presun autom do Dubnice nad Váhom.
Chcete vedieť presné náklady k bytu a ostatné technické detaily? Pošlite mi mail a odošlem Vám dodatočné informácie.
V prípade záujmu o viac informácií alebo obhliadku ma neváhajte konta
|
| |||||||||||||||||||||||||||||||
Kontaktovať inzerenta e-mailom
Kontaktovať e-mailom môže iba overený užívateľ.
Overenie je zadarmo.
Vaše telefónne číslo *
Kontaktovať e-mailom môže iba overený užívateľ.
Overenie je zadarmo.
Vaše telefónne číslo *









