4-izbový bungalov v mestskej časti Turčianskych Teplíc
- [16.12. 2025]Zmazať/ Upraviť/ Topovať





























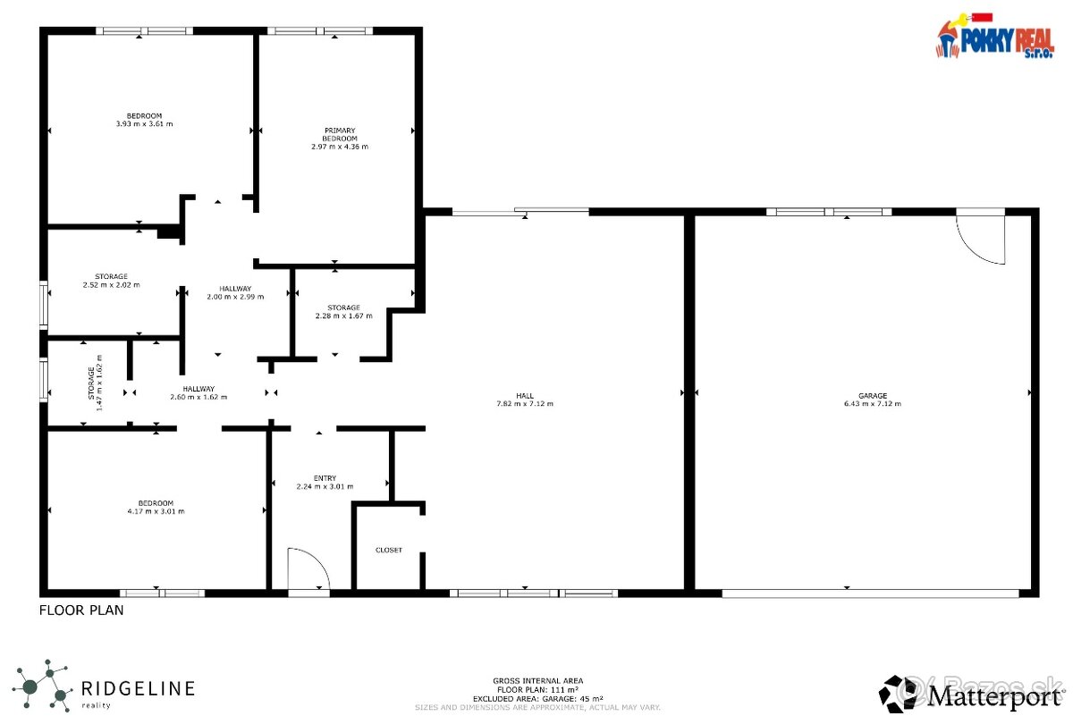
Ponúkame na predaj priestranný 4-izbový bungalov v mestskej časti Turčianskych Teplíc – Turčiansky Michal, časť Sever. Dom stojí na rovinatom pozemku o výmere 771 m². Úžitková plocha domu je približne 167 m², z toho cca 45 m² tvorí priestranná dvojgaráž so samostatným východom. Jedná sa o jednopodlažný dom bez pivnice. Dispozičné riešenie: vstupná chodba, priestranná obývacia izba prepojená s kuchyňou a jedálňou, špajza, kúpeľňa, samostatné WC, technická miestnosť a tri samostatné izby. Ideálny dom pre rodinu, ktorá chce všetko pohodlne „na jednom podlaží. Technické prevedenie – holodom: strešná krytina KM Beta, komín Schiedel (pripravený na krb/kachle), plastové okná Slovaktual – trojsklo vo farbe antracit, elektrické podlahové kúrenie so samostatnou reguláciou v každej miestnosti, rozvody elektriny (vrátane vypínačov a zásuviek) a vody, striekané sadrové omietky, sadrokartónové stropy maľované na bielo, ohrev vody elektrickým bojlerom, pripojenie na vodu, kanalizáciu. energetický certifikát v príprave. Priestranná dvojgaráž so samostatným východom do exteriéru, veľká garážová brána – pohodlný vjazd aj pre väčšie auto. Dom sa predáva bez vonkajších terénnych úprav, oplotenia. Po dohode je možnosť dokončenia domu na kľúč v štandarde podľa vášho výberu.
|
| |||||||||||||||||||||||||||||||
Kontaktovať inzerenta e-mailom
Kontaktovať e-mailom môže iba overený užívateľ.
Overenie je zadarmo.
Vaše telefónne číslo *
Kontaktovať e-mailom môže iba overený užívateľ.
Overenie je zadarmo.
Vaše telefónne číslo *
Podobné inzeráty
🏡 Moderný pasívny rodinný dom, Turč.Teplice,T.Michal - TOP - [18.12. 2025]Obývaný od r. 2020, mesačné náklady len 109 €
✔️ Tehla, zateplenie 18 cm
🔥 Tepelné čerpadlo vzduch–voda + podlahové kúrenie (v lete chladenie)
🔥 Krb
📐 120 m² + terasa 40 m²
🌳 Pozemok 862 m²
🛏️ obývačka s kuchyňou + 3 izby + šatník + pracovný kút
🛁 Kúpeľňa + 2× WC
🍽️ Kuchyňa so vstavanými s ...
285 000 €
Turčianske Teplice
039 01
039 01
351 x
Označiť zlý inzerát Chybnú kategóriu Ohodnotiť užívateľa Zmazať/Upraviť/Topovať
Na predaj 3 moderné nízkoenergetické rodinné domy v obci Val - [17.12. 2025]Typ: Rodinný dom
Obec: Turčianske Teplice
Ponúkame vám výnimočnú príležitosť bývať v obľúbenej a pokojnej obci Valča, kde sa spája pokoj vidieka s výbornou dostupnosťou do okresného mesta Martin. Na predaj sú tri samostatné rodinné domy, každý v inom štádiu dokončenia – ideálne riešenie pre tých ...
219 000 €
Turčianske Teplice
039 01
039 01
179 x
Označiť zlý inzerát Chybnú kategóriu Ohodnotiť užívateľa Zmazať/Upraviť/Topovať
Rodinný dom v Turčianskych Tepliciach - Znížená cena - [16.12. 2025]Predaj rodinného domu – ( dom sociálnych služieb ) výborná lokalita, blízko centra a akvaparku
Na predaj priestranný rodinný dom nachádzajúci sa len 150 m od akvaparku a 200 m od centra mesta. Výborná strategická poloha – v pešej dostupnosti stanica, park a farebná fontána.
Dom má 2 podlažia + ...
399 000 €
Turčianske Teplice
039 01
039 01
336 x
Označiť zlý inzerát Chybnú kategóriu Ohodnotiť užívateľa Zmazať/Upraviť/Topovať
dom + veľká záhrada - Čremošné - okr. Turč.Teplice - [15.12. 2025]Ponúkame Vám na predaj rodinný dom/chalupu v obci ČREMOŠNĚ (okres Turčianske Teplice).Zastavaná plocha: dom - 137 m² + humno - 132 m²Pozemok: 1568 m²Na záhrade sú rodiace ovocné stromy (jablone, hrušky, čerešňa, orech...) a ríbezle.Materiál: prízemie - kameň (60cm múry) + poschodie - tehla (50cm múr ...
210 000 €
Turčianske Teplice
039 01
039 01
281 x
Označiť zlý inzerát Chybnú kategóriu Ohodnotiť užívateľa Zmazať/Upraviť/Topovať
NA PREDAJ – Rodinný dom s veľkým pozemkom a dvomi bytovými j - [12.12. 2025]EXKLUZÍVNE NA PREDAJ
Rodinný dom s veľkým pozemkom, nízkymi nákladmi a možnosťou dvoch bytových jednotiek v srdci kúpeľných Turčianskych Teplíc
Ponúkame vám jedinečnú príležitosť získať nadštandardnú rodinnú nehnuteľnosť v atraktívnej lokalite kúpeľného mesta Turčianske Teplice, na prestížnej ulici ...
333 000 €
Turčianske Teplice
039 01
039 01
476 x
Označiť zlý inzerát Chybnú kategóriu Ohodnotiť užívateľa Zmazať/Upraviť/Topovať
Na predaj Skolaudovaný rodinný dom Turčiansky Michal - TOP - [18.12. 2025]Ponúkame na predaj novostavbu 3-izbového murovaného bungalovu na rovinatom pozemku o výmere 403 m²
v pokojnej lokalite s priamym prístupom z asfaltovej cesty.
Zastavaná plocha: 95,8 m², Úžitková plocha: 70,4 m²
Dispozícia je premyslená tak, aby prirodzene rozdeľovala dennú a nočnú časť.
http ...
180 000 €
Turčianske Teplice
039 01
039 01
509 x
Označiť zlý inzerát Chybnú kategóriu Ohodnotiť užívateľa Zmazať/Upraviť/Topovať
Rodinný dom Turčiansky Michal - [8.12. 2025]Predám skolaudovaný rodinný domček v k.ú. Turčiansky Michal. Postavený na parcele C KN 219/2 o veľkosti 403 m². Zastavaná plocha domu je cca 88 m². Jedná sa o jednopodlažný rodinný dom bez pivničných priestorov. V dispozičnom riešení kuchyňa prepojená s obývacou miestnosťou, kúpeľňu, WC a 2 mies ...
180 000 €
Turčianske Teplice
039 01
039 01
494 x
Označiť zlý inzerát Chybnú kategóriu Ohodnotiť užívateľa Zmazať/Upraviť/Topovať
TARGETreal | ZNÍŽENÁ CENA Rodinný dom s 2 garážami, Turčians - [5.12. 2025]Na predaj priestranný 3-podlažný rodinný dom v Turčianskych Tepliciach, ul. Kuzmányho
Ponúkame na predaj veľkoryso riešený rodinný dom nachádzajúci sa v pokojnej a vyhľadávanej lokalite Turčianskych Teplíc. Nehnuteľnosť je situovaná na rovinatom pozemku s celkovou výmerou 583 m², s výbornou dostupno ...
235 000 €
Turčianske Teplice
039 01
039 01
520 x
Označiť zlý inzerát Chybnú kategóriu Ohodnotiť užívateľa Zmazať/Upraviť/Topovať
Rodinný dom na predaj Jazernica - TOP - [18.12. 2025]Ponúkam Vám rodinný dom na predaj Jazernica okres Turčianske Teplice.
Obytný dom má 3 poschodia, samostatné vchody pre 2x 3 izbový byt a 1x 2 izbový byt, zastavaná plocha je 120 m2.
Pozemok je 948 m2.
Na pozemku sa nachádza
- rodinný dom
- zásobník na plyn od Probugas
- garáž pre 1 auto, l ...
175 000 €
Turčianske Teplice
039 01
039 01
498 x
Označiť zlý inzerát Chybnú kategóriu Ohodnotiť užívateľa Zmazať/Upraviť/Topovať
Na predaj rodinný dom Turčianske Teplice - TOP - [16.12. 2025]Dohoda na cene možná
Dispozične vhodný po úprave ako penzión, ubytovacie zariadenie.
👉Ponúkame Vám na predaj rodinný dom v kúpeľnom meste Turčianske Teplice blízko centra.
👉Dom bol skolaudovaný v r.1980, postavený z kvádry na pozemku o rozlohe 624 m2.
👉 Technické údaje: medená elektroin ...
235 000 €
Turčianske Teplice
039 01
039 01
529 x
Označiť zlý inzerát Chybnú kategóriu Ohodnotiť užívateľa Zmazať/Upraviť/Topovať








