PREDAJ 5i rekreačný RD | Pekná cesta | Lesopark Rača
- [16.12. 2025]Zmazať/ Upraviť/ Topovať

























GRAVITAS vám ponúka na predaj rekreačný rodinný dom v lesoparku Rača. Tento rodinný dom predstavuje unikátne a tiché bývanie, ktoré spája dokonalú polohu pri lese s modernou architektúrou, vynikajúcim štandardom a súkromnou prístupovou komunikáciou. Výnimočné umiestnenie so širokým výhľadom na vinice a mesto je synonymom pre dokonalé spojenie luxusu, prírody a vysokého štandardu bývania. Tento dom je vhodný pre tých, ktorí túžia po súkromí, pokoji a pohodlí, bez toho, aby sa vzdialili od všetkých výhod a atrakcií, ktoré mesto Bratislava ponúka.
LOKALITA:
Dom sa nachádza vo veľmi dobre dostupnej, ale tichej lokalite medzi viničom a lesoparkom Rača len na skok od prírody. Milovníci cyklistiky, behu a príjemných prechádzok tu nájdu svoje vysnívané miesto. Dom sa nachádza aj v blízkosti plnej občianskej vybavenosti, ktorú ponúka Pekná cesta, len 7 min. pešo. Nájdete tu napr. potraviny LIDL, potraviny Kraj, kaviarne a reštaurácie, banky, materské škôlky, ZŠ na Hubeného ulici, Gymnázium Hubeného a základnú umeleckú školu. Okrem toho, centrum Bratislavy je ľahko dostupné autom a hlavne električkou čo zabezpečuje skvelú konektivitu s mestom. Zastávka električky je na začiatku Peknej cesty.
ŠTANDARD:
V dome budú zabudované kvalitné hliníkové okná s izolačným trojsklom vo farbe antracit, vonkajšie elektricky ovládané exteriérové žalúzie, hliníkové vstupné dvere so sklom, betónové potery, sadrové vnútorné omietky, maľovky, sadrokartonové stropy, príprava pre kuchynskú linku, kompletná vodoinštalácia a elektroinštalácia. Dom je napojený na vlastnú studňu a žumpu. Predáva sa vo vysokom technologickom prevedení v štádiu HOLODOM. Je postavený z tehly hr. 300mm, zateplený s kvalitným zatepľovacím systémom (polystyrén hrúbky 200mm) s kombináciou fasády a tehlového alebo dreveného obkladu. Strecha je väzníkový krov, s krytinou betónová škridla vo farbe antracit. Kúrenie zabezpečuje tepelné čerpadlo systémom vzduch – voda. V celom dome je podlahové vykurovanie. Objekt bude mať aj predprípravu pre krb, predprípravu pre klimatizáciu, predprípravu pre fotovoltiku a predprípravu pre alarm a bezpečnostné kamery. Budú dokončené hrubé terénne úpravy. Dom bude oplotený z troch strán, ale bez vstupnej brány a bráničky. Ku vstupu do domu bude viesť vydláždený chodník zo zámkovej dlažby. Dažďova voda je odvádzaná do vsakov. Bude dodaná aj prípojka a verejné LED osvetlenie komunikácie. Zámková dlažba pre terasy a parkovacie miesta nie sú predmetom dodania.
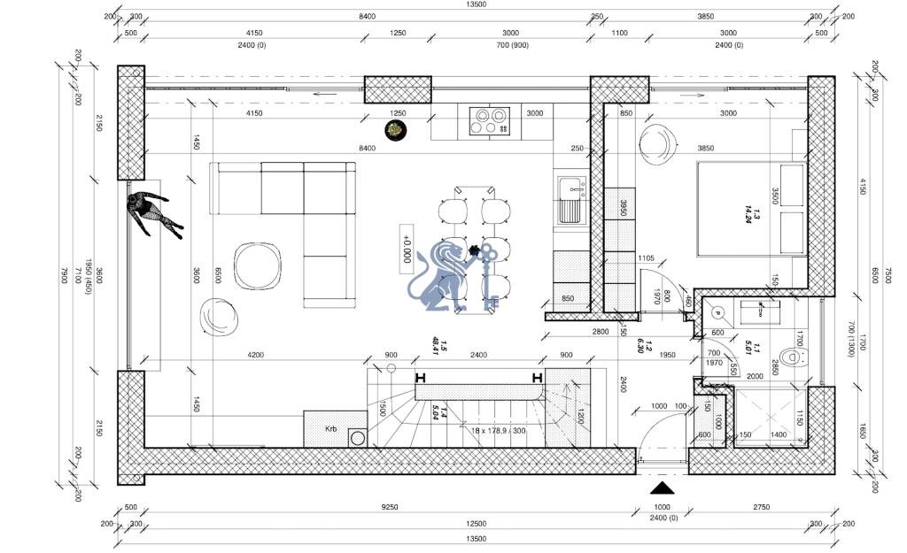
DISPOZÍCIA:
Dom je navrhnutý pre pohodlný život a komfortné bývanie. Pozostáva z dvoch samostatných poschodí. Na prvom NP je vstupná chodba, samostatná kúpeľňa s WC, hosťovská izba, schodisko a priestranná obývačka prepojená s funkčne navrhnutou kuchyňou - jedálňou s priamym výstupom na terasu a do veľkej záhrady.
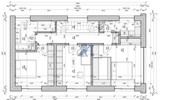
Druhé NP pozostáva z priestrannej chodby, samostatnej kúpeľne s WC, technologickej miestnosti s tepelným čerpadlom a zariadením na úpravu vody zo studne, dvoch detských izieb a rod
LOKALITA:
Dom sa nachádza vo veľmi dobre dostupnej, ale tichej lokalite medzi viničom a lesoparkom Rača len na skok od prírody. Milovníci cyklistiky, behu a príjemných prechádzok tu nájdu svoje vysnívané miesto. Dom sa nachádza aj v blízkosti plnej občianskej vybavenosti, ktorú ponúka Pekná cesta, len 7 min. pešo. Nájdete tu napr. potraviny LIDL, potraviny Kraj, kaviarne a reštaurácie, banky, materské škôlky, ZŠ na Hubeného ulici, Gymnázium Hubeného a základnú umeleckú školu. Okrem toho, centrum Bratislavy je ľahko dostupné autom a hlavne električkou čo zabezpečuje skvelú konektivitu s mestom. Zastávka električky je na začiatku Peknej cesty.
ŠTANDARD:
V dome budú zabudované kvalitné hliníkové okná s izolačným trojsklom vo farbe antracit, vonkajšie elektricky ovládané exteriérové žalúzie, hliníkové vstupné dvere so sklom, betónové potery, sadrové vnútorné omietky, maľovky, sadrokartonové stropy, príprava pre kuchynskú linku, kompletná vodoinštalácia a elektroinštalácia. Dom je napojený na vlastnú studňu a žumpu. Predáva sa vo vysokom technologickom prevedení v štádiu HOLODOM. Je postavený z tehly hr. 300mm, zateplený s kvalitným zatepľovacím systémom (polystyrén hrúbky 200mm) s kombináciou fasády a tehlového alebo dreveného obkladu. Strecha je väzníkový krov, s krytinou betónová škridla vo farbe antracit. Kúrenie zabezpečuje tepelné čerpadlo systémom vzduch – voda. V celom dome je podlahové vykurovanie. Objekt bude mať aj predprípravu pre krb, predprípravu pre klimatizáciu, predprípravu pre fotovoltiku a predprípravu pre alarm a bezpečnostné kamery. Budú dokončené hrubé terénne úpravy. Dom bude oplotený z troch strán, ale bez vstupnej brány a bráničky. Ku vstupu do domu bude viesť vydláždený chodník zo zámkovej dlažby. Dažďova voda je odvádzaná do vsakov. Bude dodaná aj prípojka a verejné LED osvetlenie komunikácie. Zámková dlažba pre terasy a parkovacie miesta nie sú predmetom dodania.
DISPOZÍCIA:
Dom je navrhnutý pre pohodlný život a komfortné bývanie. Pozostáva z dvoch samostatných poschodí. Na prvom NP je vstupná chodba, samostatná kúpeľňa s WC, hosťovská izba, schodisko a priestranná obývačka prepojená s funkčne navrhnutou kuchyňou - jedálňou s priamym výstupom na terasu a do veľkej záhrady.
Druhé NP pozostáva z priestrannej chodby, samostatnej kúpeľne s WC, technologickej miestnosti s tepelným čerpadlom a zariadením na úpravu vody zo studne, dvoch detských izieb a rod
|
| |||||||||||||||||||||||||||||||
Kontaktovať inzerenta e-mailom
Kontaktovať e-mailom môže iba overený užívateľ.
Overenie je zadarmo.
Vaše telefónne číslo *
Kontaktovať e-mailom môže iba overený užívateľ.
Overenie je zadarmo.
Vaše telefónne číslo *




