PNORF – zrekonštruovaný 3i RD, klimatizácia, Rozmarínová ul.
- [16.12. 2025]Zmazať/ Upraviť/ Topovať

























Rezervovaný/Exkluzívne iba v PNORF – REAL ESTATE ponúkame na predaj kompletne zrekonštruovaný 3-izbový rodinný dom s kuchyňou, kúpeľnou a útulným nádvorím nachádzajúci sa v tichej časti širšieho centra mesta na Rozmarínovej ul. v Hlohovci.
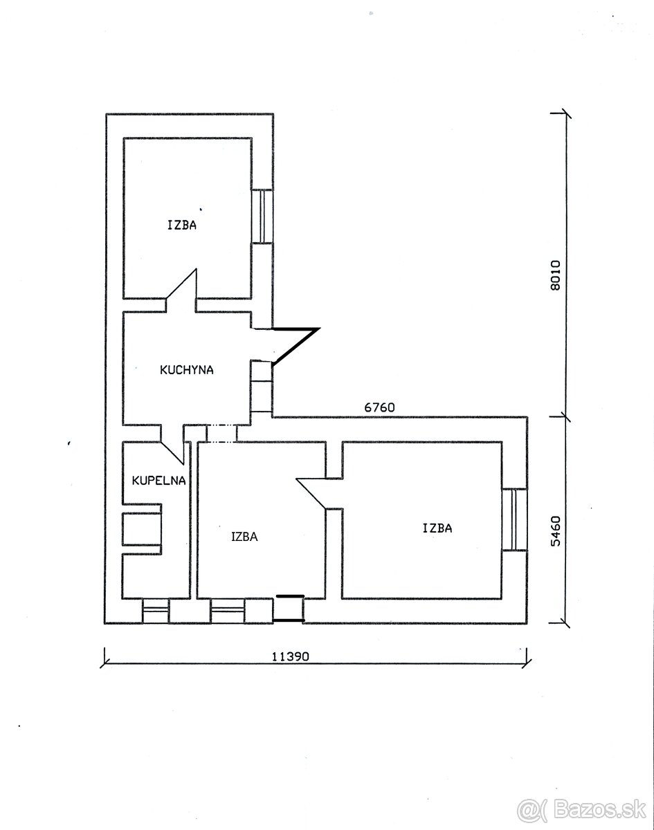
Dispozícia
Dom v tvare písmena L má praktické dva vstupy, z dvora a z Rozmarínovej ulice, ktorý sa aktuálne nepoužíva. Denná časť domu sa nachádza v pravej časti, kde je kuchyňa a obývacia izba. Z kuchyne sa vstupuje do kúpeľne so sprchovým kútom, toaletou, rebrinovým radiátorom, plynovým kondenzačným kotlom so zásobníkom a priestorom pre práčku a sušičku. Za kuchyňou sa nachádza prechodná detská izba, z ktorej sa vstupuje do spálne.
Stav a energie
Nehnuteľnosť so sedlovou strechou a krytinou z asfaltového šindľa prešla kompletnou rekonštrukciou v roku 2017: podrezanie obvodového muriva, betónová podlaha z izoláciou, zateplenie, nová strecha, odkvapový systém, nové sadrokartónové podhľady a obklady tehlových priečok, vchodové dvere a plastové okná s izolačným dvojsklom, laminátová a dlažbová podlaha, rozvody sietí, zateplenie, nová kovaná brána a zámková dlažba na nádvorí. Ohrev vody a vykurovanie prostredníctvom radiátorov zabezpečuje už spomínaný plynový kotol. V nehnuteľnosti je tiež nainštalovaná klimatizácia. Dom je pripojený ku všetkým inžinierskym sieťam.
Lokalita a pozemok
Nehnuteľnosť sa nachádza v jednosmernej, tichej a málo frekventovanej ulici s a výbornou pešou dostupnosťou do centra mesta. Stojí na rovinatom pozemku a oplotenom pozemku s výmerou 137 m2 južnej orientácie.
Prednosti nehnuteľnosti
Strategická poloha v meste, tichá a málo frekventovaná ulica, nízke prevádzkové náklady a kompletne zrekonštruovaná nehnuteľnosť.
P n o r f
–
r e a l
e s t a t e:
p r o f e s i o n á l n e
p r á v n e
a
r e a l i t n é
s l u ž b y.
V PRÍPADE ZÁUJMU NÁS KONTAKTUJTE NA tel. č. 0904 825 980 ALEBO NÁM NAPÍŠTE NA EMAIL pnorf.realestate@hotmail.com
+ Hypotekárne poradenstvo zdarma.
Dispozícia
Dom v tvare písmena L má praktické dva vstupy, z dvora a z Rozmarínovej ulice, ktorý sa aktuálne nepoužíva. Denná časť domu sa nachádza v pravej časti, kde je kuchyňa a obývacia izba. Z kuchyne sa vstupuje do kúpeľne so sprchovým kútom, toaletou, rebrinovým radiátorom, plynovým kondenzačným kotlom so zásobníkom a priestorom pre práčku a sušičku. Za kuchyňou sa nachádza prechodná detská izba, z ktorej sa vstupuje do spálne.
Stav a energie
Nehnuteľnosť so sedlovou strechou a krytinou z asfaltového šindľa prešla kompletnou rekonštrukciou v roku 2017: podrezanie obvodového muriva, betónová podlaha z izoláciou, zateplenie, nová strecha, odkvapový systém, nové sadrokartónové podhľady a obklady tehlových priečok, vchodové dvere a plastové okná s izolačným dvojsklom, laminátová a dlažbová podlaha, rozvody sietí, zateplenie, nová kovaná brána a zámková dlažba na nádvorí. Ohrev vody a vykurovanie prostredníctvom radiátorov zabezpečuje už spomínaný plynový kotol. V nehnuteľnosti je tiež nainštalovaná klimatizácia. Dom je pripojený ku všetkým inžinierskym sieťam.
Lokalita a pozemok
Nehnuteľnosť sa nachádza v jednosmernej, tichej a málo frekventovanej ulici s a výbornou pešou dostupnosťou do centra mesta. Stojí na rovinatom pozemku a oplotenom pozemku s výmerou 137 m2 južnej orientácie.
Prednosti nehnuteľnosti
Strategická poloha v meste, tichá a málo frekventovaná ulica, nízke prevádzkové náklady a kompletne zrekonštruovaná nehnuteľnosť.
P n o r f
–
r e a l
e s t a t e:
p r o f e s i o n á l n e
p r á v n e
a
r e a l i t n é
s l u ž b y.
V PRÍPADE ZÁUJMU NÁS KONTAKTUJTE NA tel. č. 0904 825 980 ALEBO NÁM NAPÍŠTE NA EMAIL pnorf.realestate@hotmail.com
+ Hypotekárne poradenstvo zdarma.
|
| |||||||||||||||||||||||||||||||
Kontaktovať inzerenta e-mailom
Kontaktovať e-mailom môže iba overený užívateľ.
Overenie je zadarmo.
Vaše telefónne číslo *
Kontaktovať e-mailom môže iba overený užívateľ.
Overenie je zadarmo.
Vaše telefónne číslo *




