4izb, byt/dom, 2podlažný, novostavba, "B" certifikát
- [14.12. 2025]Zmazať/ Upraviť/ Topovať



























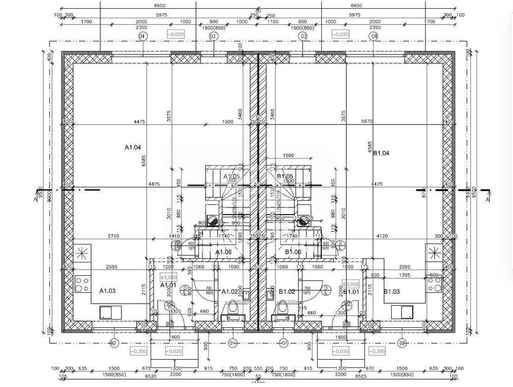
LIVEREAL s.r.o. ponúka na predaj v k.ú. Zohor v tichej slepej uličke 4 izb. 2 podlažný byt/dom o podlahovej ploche 99m2. Je postavený na pozemku o celkovej výmere 248m2 Rozmer pozemku: šírka 12m, dĺžka 22m. Na liste vlastníctva je nehnuteľnosť definovaná ako rodinný dom s dvoma bytovými jednotkami, pričom každý byt/dom má svoju stenu a medzi oboma domami je zvuková izolácia. Zastavaná plocha jedného domu je 64m2 (rozmer jedného domu 9,5m x 6,7m), plocha zvyšného pozemku je 184m2. IS - elektrina, mestská voda, kanalizácia ( v ulici nie je plyn a optika sa bude riešiť na jeseň 2024).
Kolaudácia domu prebehla v roku 2023, energetický certifikát ,,B". Dom je postavený z tehly 30cm, zateplený 15 cm polystyrénom, krytina betónová škridla, stropy zaizolované 27 cm minerálnou vatou, kúrenie je podlahové vodné (aj prízemie aj poschodie) elektrický kotol so zásobníkom vody, plastové okná 3-sklo, klasické omietky, zárubne a dvere, laminátové podlahy a dlažba. Byt/dom je v prevedení štandard bez kuchynskej linky.
Dispozícia: prízemie: vstupná hala, WC s predprípravou na pračku, komora pod schodmi, veľká obývacia izba prepojená s predpripraveným kuchynským kútom, schodisko na poschodie, poschodie: 3izby, kúpeľňa s vaňou, chodba s kotlom.
Pozemok je oplotený z 3 strán, vybudované 2x parkovacie miesto priamo pred bytom/domom, predné oplotenie je už na realizácii podľa predstáv záujemcu. Predáva sa aj podiel na prístupovej ceste.
Kolaudácia domu prebehla v roku 2023, energetický certifikát ,,B". Dom je postavený z tehly 30cm, zateplený 15 cm polystyrénom, krytina betónová škridla, stropy zaizolované 27 cm minerálnou vatou, kúrenie je podlahové vodné (aj prízemie aj poschodie) elektrický kotol so zásobníkom vody, plastové okná 3-sklo, klasické omietky, zárubne a dvere, laminátové podlahy a dlažba. Byt/dom je v prevedení štandard bez kuchynskej linky.
Dispozícia: prízemie: vstupná hala, WC s predprípravou na pračku, komora pod schodmi, veľká obývacia izba prepojená s predpripraveným kuchynským kútom, schodisko na poschodie, poschodie: 3izby, kúpeľňa s vaňou, chodba s kotlom.
Pozemok je oplotený z 3 strán, vybudované 2x parkovacie miesto priamo pred bytom/domom, predné oplotenie je už na realizácii podľa predstáv záujemcu. Predáva sa aj podiel na prístupovej ceste.
|
| |||||||||||||||||||||||||||||||
Kontaktovať inzerenta e-mailom
Kontaktovať e-mailom môže iba overený užívateľ.
Overenie je zadarmo.
Vaše telefónne číslo *
Kontaktovať e-mailom môže iba overený užívateľ.
Overenie je zadarmo.
Vaše telefónne číslo *
Podobné inzeráty
NA PREDAJ NOVOSTAVBA samostatný 4-izbový rodinný dom Zohor - [16.12. 2025]Ponúkame na predaj novostavbu samostatne stojaceho 4-izbového rodinného domu tvaru L v Zohore.
Nehnuteľnosť je situovaná v peknej, novovybudovanej lokalite v smere na Láb v blízkosti parku.
Výmery:
- vnútorná podlahová plocha má 123,5 m2
- výmera pozemku 510 m2
- zastavaná plocha domu 14 ...
369 000 €
Malacky
900 51
900 51
278 x
Označiť zlý inzerát Chybnú kategóriu Ohodnotiť užívateľa Zmazať/Upraviť/Topovať
Moderný 4izb, byt/dom, 2podlažný, novostavba, "B" certifik - [14.12. 2025]LIVEREAL s.r.o. ponúka na predaj v k.ú. Zohor v tichej slepej uličke 4 izb. 2 podlažný byt/dom o podlahovej ploche 99m2. Je postavený na pozemku o celkovej výmere 248m2 Rozmer pozemku: šírka 12m, dĺžka 22m. Na liste vlastníctva je nehnuteľnosť definovaná ako rodinný dom s dvoma bytovými jednotkami, ...
249 900 €
Malacky
900 51
900 51
335 x
Označiť zlý inzerát Chybnú kategóriu Ohodnotiť užívateľa Zmazať/Upraviť/Topovať
KOLAUDUJEME, PREDAJ, 4i rodinný dom s garážou, ul. Jelšová, - [12.11. 2025]Ponúkame Vám na predaj novostavbu 4 izbového rodinný dom s garážou typu bungalov v príjemnom tichom prostredí v zástavbe rodinných domov na Jelšovej ul. v obci Zohor.
DOM:
4 izbový bungalov má výmeru podlahovej plochy 140 m2 + 10 m2 terasa. Dom sa predáva vo vyhotov ...
339 000 €
Malacky
900 51
900 51
164 x
Označiť zlý inzerát Chybnú kategóriu Ohodnotiť užívateľa Zmazať/Upraviť/Topovať
Kompletne zariadený dom s dvomi bytmi u nás v Zóhri - [10.11. 2025]Exkluzívne - Ponúkame na prodaj pjekný a veľký rodzinný dúm v Zóhri, kúsek od Mauacek (Malacky 15km) a kúsek od hlavného mjesta (BA 25km) - takže u nás na Záhorí !!! V pôvodnej zastavanej časti obce, kľudná a tichá ulica.
Kompletne zariadený dom s dvomi bytmi a priestorom na podnikanie.
Krásna t ...
443 900 €
Malacky
900 51
900 51
172 x
Označiť zlý inzerát Chybnú kategóriu Ohodnotiť užívateľa Zmazať/Upraviť/Topovať
MA/ZOHOR - Rodinný dom s 2 bytovými jednotkami a 3 garážami - [21.10. 2025]Rozmýšlate nad kúpu rodinného domu ale nechcete veľmi zaťažiť rozpočet? Máme pre vás riešenie. Ponúkame na predaj rodinný dom v obci Zohor, ktorý disponuje dvomi samostatnými bytovými jednotkami (zapísané na Liste vlastníctva ako rodinný dom). V jednej časti môžete pohodlne bývať a druhú prenajímať, ...
350 000 €
Malacky
900 51
900 51
582 x
Označiť zlý inzerát Chybnú kategóriu Ohodnotiť užívateľa Zmazať/Upraviť/Topovať






