ASSENZIO-EXKLUZÍVNE-PRENÁJOM-KOMERČNÝ PRIESTOR-574M2-DEVÍNSK
- [12.12. 2025]Zmazať/ Upraviť/ Topovať
























Realitná kancelária Assenzio s.r.o. ponúka exkluzívne na prenájom komerčný priestor, o rozlohe 574m2, na pozemku o rozlohe 2134m2 ktorý sa nachádza v Devínskej Novej vsi, na ulici Na Vyhliadke.
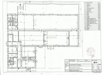
Dispozícia:
- Recepcia 36,8m2
- Showroom 106m2
- Kancelária 20,9m2
- Sklad 59,6m2
- Predsieň WC zákazníci 2,62m2
- 2x WC zákazníci 6m2
- Kuchynka 2,27m2
- Sklad kuchynky 7,76m2
- Dielňa 57,5m2
- 2x sklad 16m2
- Chodba 18,2m2
- Zázemie pre zamestnancov, 2x WC, 2x Sprcha 20m2
- Upratovačka 1,53m2
- Sklad 14,4m2
- Kotolňa 3,64m2
- Terasa 91,6m2
- Vstup 4,23m2
Vybavenie a doplnkové priestory:
Veľkorysý komerčný priestor ponúka ideálne priestory pre podnikanie, výrobu alebo skladovanie. Samostatná budova sa nachádza na rozsiahlom pozemku, s vysúvacou bránou a veľkým množstvom parkovacích miest. Členenie budovy ponúka dostatočný priestor pre vedenie, , zamestnancov ako aj možnosti realizácie showroomu. Priestor ponúka dostatočné WC priestory ako aj sprchovaciu časť, pre zamestnancov. Objekt prešiel rekonštrukciou v roku 2022.
Výborná lokalita a dostupnosť:
Lokalita Na Vyhliadke Devínska Nová Ves, je ideálna pre firmu so zamestnancami, keďže je situovaná v ideálnej časti Devínska Nová ves, s výbornou dostupnosťou MHD. Ponúka kompletnú občiansku vybavenosť, ako aj pre podnikateľskú činnosť, ako aj pre bývanie.
CENA PRENÁJMU: info v RK, dohodou
Komerčný priestor je voľný ihneď.
Zastavaná plocha: 574m²
Obytná plocha: 513.57m²
Celková rozloha: 2708m²
Rozloha pozemku: 2134m²
Úžitková plocha: 513.57m²
Vlastníctvo: firemné
Stav: po rekonštrukcii
Odvoz odpadu: áno - separovaný
Voda: verejný vodovod
El. napätie: 230/400V
Plyn: áno
Kanalizácia: áno
Internet: wifi
Vykurovanie: áno
Terasa: áno - 1
Garáž: áno
Výťah: nie
Parkovanie: vnútorné
Inžinierske siete: áno
Postavené z: tehla
Zateplený objekt: áno
Káblová televízia: áno
Energetický certifikát: áno
Predzáhradka: neuvedené
Bezbariérový prístup : áno
Okná: plastové
Dispozícia:
- Recepcia 36,8m2
- Showroom 106m2
- Kancelária 20,9m2
- Sklad 59,6m2
- Predsieň WC zákazníci 2,62m2
- 2x WC zákazníci 6m2
- Kuchynka 2,27m2
- Sklad kuchynky 7,76m2
- Dielňa 57,5m2
- 2x sklad 16m2
- Chodba 18,2m2
- Zázemie pre zamestnancov, 2x WC, 2x Sprcha 20m2
- Upratovačka 1,53m2
- Sklad 14,4m2
- Kotolňa 3,64m2
- Terasa 91,6m2
- Vstup 4,23m2
Vybavenie a doplnkové priestory:
Veľkorysý komerčný priestor ponúka ideálne priestory pre podnikanie, výrobu alebo skladovanie. Samostatná budova sa nachádza na rozsiahlom pozemku, s vysúvacou bránou a veľkým množstvom parkovacích miest. Členenie budovy ponúka dostatočný priestor pre vedenie, , zamestnancov ako aj možnosti realizácie showroomu. Priestor ponúka dostatočné WC priestory ako aj sprchovaciu časť, pre zamestnancov. Objekt prešiel rekonštrukciou v roku 2022.
Výborná lokalita a dostupnosť:
Lokalita Na Vyhliadke Devínska Nová Ves, je ideálna pre firmu so zamestnancami, keďže je situovaná v ideálnej časti Devínska Nová ves, s výbornou dostupnosťou MHD. Ponúka kompletnú občiansku vybavenosť, ako aj pre podnikateľskú činnosť, ako aj pre bývanie.
CENA PRENÁJMU: info v RK, dohodou
Komerčný priestor je voľný ihneď.
Zastavaná plocha: 574m²
Obytná plocha: 513.57m²
Celková rozloha: 2708m²
Rozloha pozemku: 2134m²
Úžitková plocha: 513.57m²
Vlastníctvo: firemné
Stav: po rekonštrukcii
Odvoz odpadu: áno - separovaný
Voda: verejný vodovod
El. napätie: 230/400V
Plyn: áno
Kanalizácia: áno
Internet: wifi
Vykurovanie: áno
Terasa: áno - 1
Garáž: áno
Výťah: nie
Parkovanie: vnútorné
Inžinierske siete: áno
Postavené z: tehla
Zateplený objekt: áno
Káblová televízia: áno
Energetický certifikát: áno
Predzáhradka: neuvedené
Bezbariérový prístup : áno
Okná: plastové
|
| |||||||||||||||||||||||||||||||
Kontaktovať inzerenta e-mailom
Kontaktovať e-mailom môže iba overený užívateľ.
Overenie je zadarmo.
Vaše telefónne číslo *
Kontaktovať e-mailom môže iba overený užívateľ.
Overenie je zadarmo.
Vaše telefónne číslo *



