(A9) Moderný dom pre aktívnu rodinu - 4 izbový dom s gar?
- [12.12. 2025]Zmazať/ Upraviť/ Topovať










Dom, ktorý dáva priestor životu. Dom A9 ponúka priestranné a pohodlné bývanie, ideálne pre každodenný rodinný život. Nová zástavba v Bitarovej spája pokojnú atmosféru vidieka s dostupnosťou do centra Žiliny.
Rodinný dom typu A9 má všetko, čo potrebuje aktívna rodina:
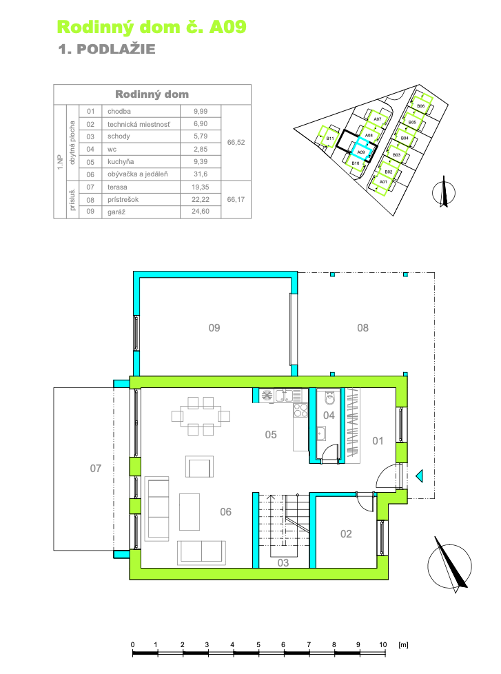
na prízemí sa nachádza veľkorysá obývacia izba prepojená s kuchyňou a jedálňou, odkiaľ sa vychádza na terasu so záhradou – ideálne miesto na oddych, rodinné večery či grilovanie s priateľmi,
vstupná chodba ponúka šatník a technickú miestnosť, nechýba samostatné WC,
na poschodí sú tri izby, kúpeľňa, šatník a samostatné WC,
garáž a parkovacie miesto pod prístreškom zaručia komfortné parkovanie.
Kvalita a poctivá výstavba
Na projekte pracujeme s dôrazom na kvalitu a detaily.
Dom je aktuálne vysoko rozostavaný – dokončené vnútorné omietky, hrubé inštalácie, fasáda, práve realizujeme podlahové kúrenie a finálne úpravy chodníkov a terás.
Vonkajšie inžinierske siete sú na 90% hotové (elektro, verejné osvetlenie, vodovod, dažďová kanalizácia, žumpy, vodomerné šachty).
Cesta je pripravená s podkladnými štrkovými vrstvami a časťou obrubníkov.
Používame len overené materiály a technológie:
tehly POROTHERM Profi,
zateplenie BAUMIT,
plastové okná s trojsklom,
rovná strecha s 30 cm izoláciou,
moderný, minimalistický dizajn a premyslené detaily.
Domy ponúkame v štádiu holodomu, s možnosťou kompletného dokončenia podľa priania klienta – od podláh až po kuchyňu a sanitu.
Moderné a úsporné vykurovanie
Dom je vybavený tepelným čerpadlom vzduch-voda VIESSMANN VITOCAL 222-S, ktoré zabezpečuje podlahové vykurovanie s nízkym energetickým spádom.
Príprava teplej vody je riešená integrovaným zásobníkom 220 l s rúrkovým výmenníkom a poistným ventilom, čím je zabezpečená dostatočná zásoba teplej vody pre celú rodinu.
Komfortná rekuperácia vzduchu
Dom je pripravený aj na decentralizované nútené vetranie s jednotkami Viessmann Vitovent 200 D, ktoré sa umiestnia v obytných miestnostiach a umožnia reguláciu výkonu vetrania.
Odvod kondenzátu je riešený diskrétne na fasáde RD.
Vďaka tomu získavate zdravé vnútorné prostredie, čerstvý vzduch a nižšie náklady na energiu.
Technické vybavenie a nadštandardné prvky
Vykurovanie: Úsporné podlahové vykurovanie s moderným tepelným čerpadlom VIESSMANN, ktoré výrazne znižuje prevádzkové náklady.
Príprava teplej vody: Integrovaný zásobník 220 l s rúrkovým výmenníkom a poistným ventilom.
Rekuperácia: Nútené vetranie decentralizovanými jednotkami Viessmann Vitovent 200 D pre zdravé a komfortné vnútorné prostredie.
Parkovanie: Murovaná garáž s diaľkovým ovládaním a prístrešok pre druhé auto.
Inžinierske siete: Dom je pripojený na elektrinu, vodu, dažďovú kanalizáciu a disponuje 12 m³ žumpou. Verejné osvetlenie a vodomerné šachty sú súčasťou projektu.
Dom
Rodinný dom typu A9 má všetko, čo potrebuje aktívna rodina:
na prízemí sa nachádza veľkorysá obývacia izba prepojená s kuchyňou a jedálňou, odkiaľ sa vychádza na terasu so záhradou – ideálne miesto na oddych, rodinné večery či grilovanie s priateľmi,
vstupná chodba ponúka šatník a technickú miestnosť, nechýba samostatné WC,
na poschodí sú tri izby, kúpeľňa, šatník a samostatné WC,
garáž a parkovacie miesto pod prístreškom zaručia komfortné parkovanie.
Kvalita a poctivá výstavba
Na projekte pracujeme s dôrazom na kvalitu a detaily.
Dom je aktuálne vysoko rozostavaný – dokončené vnútorné omietky, hrubé inštalácie, fasáda, práve realizujeme podlahové kúrenie a finálne úpravy chodníkov a terás.
Vonkajšie inžinierske siete sú na 90% hotové (elektro, verejné osvetlenie, vodovod, dažďová kanalizácia, žumpy, vodomerné šachty).
Cesta je pripravená s podkladnými štrkovými vrstvami a časťou obrubníkov.
Používame len overené materiály a technológie:
tehly POROTHERM Profi,
zateplenie BAUMIT,
plastové okná s trojsklom,
rovná strecha s 30 cm izoláciou,
moderný, minimalistický dizajn a premyslené detaily.
Domy ponúkame v štádiu holodomu, s možnosťou kompletného dokončenia podľa priania klienta – od podláh až po kuchyňu a sanitu.
Moderné a úsporné vykurovanie
Dom je vybavený tepelným čerpadlom vzduch-voda VIESSMANN VITOCAL 222-S, ktoré zabezpečuje podlahové vykurovanie s nízkym energetickým spádom.
Príprava teplej vody je riešená integrovaným zásobníkom 220 l s rúrkovým výmenníkom a poistným ventilom, čím je zabezpečená dostatočná zásoba teplej vody pre celú rodinu.
Komfortná rekuperácia vzduchu
Dom je pripravený aj na decentralizované nútené vetranie s jednotkami Viessmann Vitovent 200 D, ktoré sa umiestnia v obytných miestnostiach a umožnia reguláciu výkonu vetrania.
Odvod kondenzátu je riešený diskrétne na fasáde RD.
Vďaka tomu získavate zdravé vnútorné prostredie, čerstvý vzduch a nižšie náklady na energiu.
Technické vybavenie a nadštandardné prvky
Vykurovanie: Úsporné podlahové vykurovanie s moderným tepelným čerpadlom VIESSMANN, ktoré výrazne znižuje prevádzkové náklady.
Príprava teplej vody: Integrovaný zásobník 220 l s rúrkovým výmenníkom a poistným ventilom.
Rekuperácia: Nútené vetranie decentralizovanými jednotkami Viessmann Vitovent 200 D pre zdravé a komfortné vnútorné prostredie.
Parkovanie: Murovaná garáž s diaľkovým ovládaním a prístrešok pre druhé auto.
Inžinierske siete: Dom je pripojený na elektrinu, vodu, dažďovú kanalizáciu a disponuje 12 m³ žumpou. Verejné osvetlenie a vodomerné šachty sú súčasťou projektu.
Dom
|
| |||||||||||||||||||||||||||||||
Kontaktovať inzerenta e-mailom
Kontaktovať e-mailom môže iba overený užívateľ.
Overenie je zadarmo.
Vaše telefónne číslo *
Kontaktovať e-mailom môže iba overený užívateľ.
Overenie je zadarmo.
Vaše telefónne číslo *
Podobné inzeráty
(A1) Moderné bývanie v Bitarovej - 4 izbový dom s garáž - [12.12. 2025]Miesto, kde sa býva s ľahkosťou. Dom, ktorý ponúka pokoj, priestor a každodenný komfort – bez kompromisov.
V novej zástavbe v Bitarovej vzniká moderné rodinné bývanie, ktoré spája výhody života pri meste s atmosférou tichej vidieckej lokality.
Rodinný dom typu A1 má všetko, čo potrebuje aktívna ...
357 519 €
Žilina
010 04
010 04
18 x
Označiť zlý inzerát Chybnú kategóriu Ohodnotiť užívateľa Zmazať/Upraviť/Topovať
REZERVOVANÉ (B2) Priestranný dom s pokojom a komfortom, le - [12.12. 2025]Domov, kde každý deň začína s úsmevom. Dom B2 ponúka priestor, pokoj a moderný komfort pre celú rodinu. V tichej lokalite Bitarovej vzniká rezidenčná štvrť, ktorá kombinuje pokoj vidieka s výhodami života blízko mesta.
Rodinný dom typu B2 má všetko, čo potrebuje aktívna rodina:
na prízemí s ...
337 440 €
Žilina
010 04
010 04
20 x
Označiť zlý inzerát Chybnú kategóriu Ohodnotiť užívateľa Zmazať/Upraviť/Topovať
(B10) Pokojné bývanie v Bitarovej - 4 izbový dom s teraso - [12.12. 2025]Miesto, kde sa rodina cíti dobre. Dom B10 kombinuje funkčný dizajn, pohodlie a moderné technológie.
V Bitarovej vzniká nová rezidenčná štvrť, kde pokojné prostredie stretáva život pri meste.
Rodinný dom typu B10 má všetko, čo potrebuje aktívna rodina:
na prízemí sa nachádza veľkorysá obýva ...
327 139 €
Žilina
010 04
010 04
16 x
Označiť zlý inzerát Chybnú kategóriu Ohodnotiť užívateľa Zmazať/Upraviť/Topovať
Na predaj rodinný dom s garážou - novostavba Bitarová - [12.12. 2025]Typ: Rodinný dom
Obec: Bitarová
Predaj novostavby 4-izbového bungalovu v Bitarovej – len 5 minút od Žiliny.
Ponúkame na predaj moderný 4-izbový rodinný dom s garážou v jednej z najvyhľadávanejších obcí v okolí Žiliny – Bitarová, ktorá sa nachádza iba 5 minút od mesta Žilina. Ide o pokojné prost ...
289 900 €
Žilina
010 04
010 04
172 x
Označiť zlý inzerát Chybnú kategóriu Ohodnotiť užívateľa Zmazať/Upraviť/Topovať
Rodinný dom so 4x parkovaním a záhradkou - [10.12. 2025]HLAVNÁ VÝHODA PRE VÁS: KÚPA BEZ PROVÍZIE RK!
🏡 Na predaj trojpodlažný 6izbový rodinný dom s možnosťou vytvorenia samostatných apartmánov – Žilina, prímestská časť
Súkromná osoba / majiteľ ponúka exkluzívne na predaj kompletne zrekonštruovaný rodinný dom až po tehlu, nachádzajúci sa v tichej pr ...
415 000 €
Žilina
010 04
010 04
208 x
Označiť zlý inzerát Chybnú kategóriu Ohodnotiť užívateľa Zmazať/Upraviť/Topovať
Rozostavaný rodinný dom s veľkým pozemkom (732m2) v... - TOP - [13.12. 2025]Predtým ako si pozriete foto-galériu skopírujte si nasledujúci link a pozrite si videoprehliadku domu **https://youtu.be/yGcick_M0yI**
TUreality vám exkluzívne ponúka na predaj rozostavaný rodinný dom v pokojnej a vyhľadávanej obci Bitarová, len 5 minút od Žiliny. Momentálne je vo fáze rekonštruk ...
174 000 €
Žilina
010 04
010 04
919 x
Označiť zlý inzerát Chybnú kategóriu Ohodnotiť užívateľa Zmazať/Upraviť/Topovať
Rodinný dom v hrubej stavbe na predaj – Brezany pri Žiline - [28.11. 2025]Ponúkame na predaj priestranný rodinný dom v štádiu hrubej stavby, ktorý sa nachádza v malebnej obci Brezany, len 7 km od centra Žiliny. Lokalita poskytuje ideálne spojenie kľudného bývania v prírode s rýchlou dostupnosťou do mesta.
Základné informácie:
Zastavaná plocha: 148 m²
Úžitková plo ...
239 900 €
Žilina
010 04
010 04
382 x
Označiť zlý inzerát Chybnú kategóriu Ohodnotiť užívateľa Zmazať/Upraviť/Topovať
TARGETreal | Na predaj, 3 nízkoenergetické bungalovy, novost - [14.11. 2025]Ponúkame Vám na predaj novostavby nízkoenergetických bungalovov v obci Ovčiarsko (voľné 3 z 5), vzdialenej 9 km (15 minút) do centra krajského mesta Žilina. Rodinné domy sa nachádzajú v tichej časti obce, na pozemkoch s južnou orientáciou.
Nadštandardné výmery domov sa rozkladajú medzi 3 spálne, pr ...
180 000 €
Žilina
010 04
010 04
445 x
Označiť zlý inzerát Chybnú kategóriu Ohodnotiť užívateľa Zmazať/Upraviť/Topovať
4 izb dom v Zavodi - [30.10. 2025]Ponúkam na predaj priestranný rodinný dom v tichej časti obce Závoi
Dom má rozmery 9 × 9 m, je dvojpodlažný a plne podpivničený. Kolaudovaný bol v roku 1984, prešiel kompletnou rekonštrukciou v roku 2018.
✅ Technické informácie:
murivo: tehla 40 cm + zateplenie 10 cm
keramická stropná dosk ...
473 500 €
Žilina
010 04
010 04
728 x
Označiť zlý inzerát Chybnú kategóriu Ohodnotiť užívateľa Zmazať/Upraviť/Topovať
TARGETreal | Na predaj, 4-izbová novostavba rodinného domu B - TOP - [13.12. 2025]EXKLUZÍVNE V PONUKE
Prejdite si nehnuteľnosť cez virtuálnu obhliadku a nechajte sa inšpirovať!
- https://my.matterport.com/show/?m=UgRuk8jdQ4n
Ponúkame Vám na predaj moderný 4-izbový nízkoenergetický bungalov, ktorý spája pohodlie vidieckeho bývania s dokonalou dostupnosťou do centra Žiliny – le ...
259 990 €
Žilina
010 04
010 04
1131 x
Označiť zlý inzerát Chybnú kategóriu Ohodnotiť užívateľa Zmazať/Upraviť/Topovať