Na predaj stavebný pozemok s IS aj stav. povolením Bernoláko
- [11.12. 2025]Zmazať/ Upraviť/ Topovať












Licencovaná realitná kancelária Orin real Vám ponúka na predaj rožný stavebný pozemok v Bernolákove v novej časti s rozlohou 475m2 so šírkou pozemku 15m a dĺžkou 33m.
Je to roh ulice Kondrótova a Čučoriedková, nová ulica s aktuálnou výstavbou na približne rovnakých pozemkoch.
Priamo na pozemok sú zavedené všetky inžinierske siete - plyn, elektrina, voda.
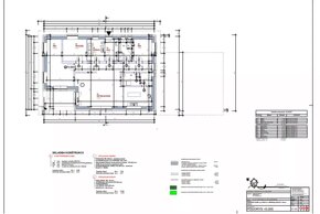
Pozemok je aj so stavebným povolením na RD na fotkách a podoryse, približná cena v stave holodom bola 70.000,- Eur podľa tohto projeku v stave na komplet okrem okien je 145.000,- Eur. Pozemok je ihneď k dispozícii s možnosťou okamžitej výstavby.
Obec Bernolákovo je rozvíjajúca sa obec s bohatou občnianskou vybavenosťou. V blízkosti v obci do 5min autom nájdete: poštu, obecný úrad - nové informačné centrum, matrika, školy, škôlky, strednú školu, reštaurácie, ihriská pre deti aj fotbalove ihrisko a novú športovú halu, Billa a obchodné centrum drogerie Pepco, Lidl a veľa iného...Okresné mesto Senec, pod ktoré Bernolákovo patrí ponúka kompletnú občiansku vybavenosť.
Cena pozemku je 189.900,- Eur + provízia RK 4.000,- Eur
0915957390
Je to roh ulice Kondrótova a Čučoriedková, nová ulica s aktuálnou výstavbou na približne rovnakých pozemkoch.
Priamo na pozemok sú zavedené všetky inžinierske siete - plyn, elektrina, voda.
Pozemok je aj so stavebným povolením na RD na fotkách a podoryse, približná cena v stave holodom bola 70.000,- Eur podľa tohto projeku v stave na komplet okrem okien je 145.000,- Eur. Pozemok je ihneď k dispozícii s možnosťou okamžitej výstavby.
Obec Bernolákovo je rozvíjajúca sa obec s bohatou občnianskou vybavenosťou. V blízkosti v obci do 5min autom nájdete: poštu, obecný úrad - nové informačné centrum, matrika, školy, škôlky, strednú školu, reštaurácie, ihriská pre deti aj fotbalove ihrisko a novú športovú halu, Billa a obchodné centrum drogerie Pepco, Lidl a veľa iného...Okresné mesto Senec, pod ktoré Bernolákovo patrí ponúka kompletnú občiansku vybavenosť.
Cena pozemku je 189.900,- Eur + provízia RK 4.000,- Eur
0915957390
|
| |||||||||||||||||||||||||||||||
Kontaktovať inzerenta e-mailom
Kontaktovať e-mailom môže iba overený užívateľ.
Overenie je zadarmo.
Vaše telefónne číslo *
Kontaktovať e-mailom môže iba overený užívateľ.
Overenie je zadarmo.
Vaše telefónne číslo *
Podobné inzeráty
Stavebný pozemok v Bernolákove, Višňová ulica - [8.12. 2025]Gravitas ponúka exkluzívne na predaj stavebný pozemok pre rodinný dom v peknom prostredí Bernolákova na ulici Višňová.
- samotný pozemok má výmeru 700m2
- rozmery sú cca 26m x 27m
- ½ podiel s výmerou 70,5m2 na parcele príjazdovej cesty
- 1/8 podiel s výmerou 186,5m2 na parcele hlavnej príst ...
Dohodou
Senec
900 27
900 27
63 x
Označiť zlý inzerát Chybnú kategóriu Ohodnotiť užívateľa Zmazať/Upraviť/Topovať
Predaj stavebný pozemok,Bernolákovo,Senec - [2.12. 2025]Ponúkame na predaj SP v starej časti obce Bernolákovo v blízkosti nákupného centra BILLA,výmera 12 á,všetky inžinierske siete.Na pozemku je starý rodinný dom.Dohoda možná Bližšie info na maila tel.0918 108 037
300 000 €
Senec
900 27
900 27
765 x
Označiť zlý inzerát Chybnú kategóriu Ohodnotiť užívateľa Zmazať/Upraviť/Topovať
Stavebný pozemok v atraktívnej časti BERNOLÁKOVO - [30.11. 2025]Predám stavebný pozemok, ulica Kondrótova, obec Bernolákovo.
Výmera pozemku je 662 m2 (cca 19,5 x 34 m), číslo pozemku 5272.
Na pozemku je možné ihneď začať stavať.
Jedná sa o rovinatý pozemok, kde sú novovybudované, skolaudované inžinierske siete – priamo na pozemku sú voda, kanalizáci ...
264 800 €
Senec
900 27
900 27
1093 x
Označiť zlý inzerát Chybnú kategóriu Ohodnotiť užívateľa Zmazať/Upraviť/Topovať
Predaj pozemku 1023 m2 - Grobská ulica, Bernolákovo. - [27.11. 2025]Ponúkame na predaj ornú pôdu s výmerou 1023 m2 a priamym prístupom z Grobskej ulice s hranicami na Dukelskej ulici.
Pozemok sa nachádza v zastavanom území obce Bernolákovo, v blízkosti hlavnej Seneckej cesty, čo zabezpečuje výbornú dostupnosť.
Podľa schváleného funkčného využitia a existujúci ...
102 300 €
Senec
900 27
900 27
940 x
Označiť zlý inzerát Chybnú kategóriu Ohodnotiť užívateľa Zmazať/Upraviť/Topovať
Na predaj stavebný pozemok – Bernolákovo - [19.11. 2025]Na predaj stavebný pozemok – Bernolákovo, 697 m²
Ponúkame Vám jedinečnú príležitosť kúpy stavebného pozemku o rozlohe 697 m² v
lukratívnej a vyhľadávanej časti obce Bernolákovo.
Parametre pozemku:
určený na individuálnu výstavbu rodinného domu (max. 2 podlažia)
šírka: 19 m
rovinatý, slnečn ...
261 375 €
Senec
900 27
900 27
560 x
Označiť zlý inzerát Chybnú kategóriu Ohodnotiť užívateľa Zmazať/Upraviť/Topovať
Investičný pozemok Bernolákovo 604m2 - na podnikanie - [18.11. 2025]Licencovaná realitná kancelária Orin reál Vám ponúka na predaj pekný investičný pozemok v zastavanej časti obce Bernolákovo (za Lidlom) pri ulici Bottová a hlavnom ťahu - Senecká cesta.
Pozemok je práve prerozdelovaný na 3 menšie časti - upi je vyžiadané - pozemok by mal slúžiť na podnikateľské č ...
170 000 €
Senec
900 27
900 27
311 x
Označiť zlý inzerát Chybnú kategóriu Ohodnotiť užívateľa Zmazať/Upraviť/Topovať
Predam pozemok v Bernolákove, okolie Bratislava - [17.11. 2025]Ako majitel ponúkam na predaj stavebny pozemok v Bernolákovo – Priemyselná ulica, okolie Bratislava. Pozemok ma celkovo rozlohu 3564m2 a ma územné rozhodnutie. Je vhodny na vystavbu haly alebo investíciu pre podnikateľské účely. Cena je dohodou. Pre viac informácie prosim kontaktujte na email: autoj ...
230 000 €
Senec
900 27
900 27
452 x
Označiť zlý inzerát Chybnú kategóriu Ohodnotiť užívateľa Zmazať/Upraviť/Topovať
RADO | Stavebný pozemok pre RD | všetky podklady | 528 m² |B - [12.11. 2025]Márne hľadáš samostatne stojaci dom podľa svojich predstáv a radovky nie sú pre teba to pravé?
Získaj stavebný pozemok, na ktorom si môžeš postaviť svoj vysnívaný dom presne podľa svojich potrieb. ÚPI a všetky potrebné dokumenty pre získanie stavebného povolenia ti rád poskytnem emailom alebo na ...
149 900 €
Senec
900 27
900 27
566 x
Označiť zlý inzerát Chybnú kategóriu Ohodnotiť užívateľa Zmazať/Upraviť/Topovať
Záhrada s chatou, krásne prostredie pri potoku, studňa, ele. - [9.11. 2025]Typ: Pozemok na rekreáciu
Ulica: Horný dvor
Obec: Bernolákovo
Slnečný rovinatý oplotený pozemok s chatkou, pivnicou a sadom, ideálny na rekreáciu aj bývanie, sa nachádza v príjemnom prostredí plnom zelene. Leží v susedstve lesoparku, kaplnky Sv. Anny a golfového areálu. Poto ...
110 900 €
Senec
900 27
900 27
505 x
Označiť zlý inzerát Chybnú kategóriu Ohodnotiť užívateľa Zmazať/Upraviť/Topovať
Stavebný pozemok - Bernolákovo - širšie centrum - 473 m2 - [7.11. 2025]Typ: Pozemok pre rodinné domy
Ulica: Bernolákovo
Obec: Bernolákovo
Stavebný pozemok 473 m2 priamo v obci Bernolákovo, v širšom centre, neďaleko potoka Čierna voda.
Rovinatý pozemok má vybudované inžinierske siete (elektrina, verejný vodovod, kanalizácia, studňa, plyn, optika). O ...
188 727 €
Senec
900 27
900 27
688 x
Označiť zlý inzerát Chybnú kategóriu Ohodnotiť užívateľa Zmazať/Upraviť/Topovať