Zrekonštruovaný rodinný dom v Šarišských Sokolovciach
- [10.12. 2025]Zmazať/ Upraviť/ Topovať






























Cena: 180 000 € (bez realitky)
Dostupnosť domu: jún 2026 – ideálne pre kupujúceho, ktorý plánuje sťahovanie s predstihom. Možnosť rezervácie.
Ponúkam na predaj modernizovaný rodinný dom po kompletnej rekonštrukcii, nová fasáda, strecha, podlahové kúrenie, plynový kotol Protherm, dielňa, 400 V zásuvka pre elektromobil, pozemok 584 m², elektrická brána.
🏡 Predám zrekonštruovaný rodinný dom – Šarišské Sokolovce, okres Sabinov
V tichej časti obce Šarišské Sokolovce, okres Sabinov. Z dvora výhľad na les.
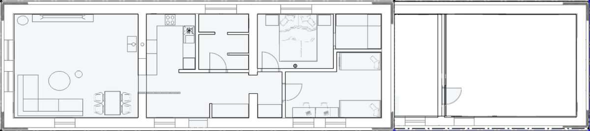
Dom stojí na pozemku s výmerou cca 584 m², z toho zastavaná časť približne 156 m².
✅ Stav a výbava:
* zateplený dom, nová fasáda (2024) hlavná časť domu tehla o hrúbke 60 cm + 10 cm zateplenie. Strop zateplený minerálnou vatou o hrúbke 20 cm + 5 cm zateplenie pod sadrokartónom v interiéry domu.
* plastové okná 3 sklo
* nová strecha (2022) - plech
* kompletne zrekonštruovaný interiér – nové podlahy, rozvody, kuchynská linka, kúpeľňa
* po dohode sa predáva zariadený
* teplovodné podlahové kúrenie, plynový kotol Protherm
* čiastočne podpivničený, ale pivnica sa nevyužíva
* napojenie na obecný vodovod, odpad žumpa
* automatická elektrická brána, celý pozemok oplotený
* pripravená 400 V zásuvka s prepäťovou ochranou podľa štandardov pre nabíjanie elektromobilu
🏠 Dispozícia:
Dom pozostáva z:
* priestrannej obývacej izby spojenej s jedálenskou časťou a kuchyňou,
* samostatnej spálne s vlastným šatníkom,
* detskej izby,
* kúpeľne a vstupnej predsiene.
Dispozícia je prakticky riešená – ideálna pre rodinu s deťmi alebo pár, ktorý ocení otvorený priestor a dostatok úložných možností.
🔧 Doplnkové stavby:
* vykachličkovaná dielňa privedené siete voda a elektrina
* hospodárska časť s predprípravou na zimnú záhradu a altánok (nutné dokončiť )
* samostatná dielňa z panelovej konštrukcie na betónovom základe, s privedenou elektrinou
Dom ponúka ideálne bývanie pre rodinu alebo pár, ktorí hľadajú pokojné prostredie s výhľadom na les a dobrou dostupnosťou do Sabinova a Prešova.
Obhliadky :
Od Januára
Aby boli obhliadky efektívne, prosím pri prvom kontakte uviesť:
– či plánujete kúpu v hotovosti alebo hypotékou,
– ak hypotéka: či máte predbežné schválenie,
– ak kupujete z predaja vlastnej nehnuteľnosti – v akom ste štádiu.
Dostupnosť domu: jún 2026 – ideálne pre kupujúceho, ktorý plánuje sťahovanie s predstihom. Možnosť rezervácie.
Ponúkam na predaj modernizovaný rodinný dom po kompletnej rekonštrukcii, nová fasáda, strecha, podlahové kúrenie, plynový kotol Protherm, dielňa, 400 V zásuvka pre elektromobil, pozemok 584 m², elektrická brána.
🏡 Predám zrekonštruovaný rodinný dom – Šarišské Sokolovce, okres Sabinov
V tichej časti obce Šarišské Sokolovce, okres Sabinov. Z dvora výhľad na les.
Dom stojí na pozemku s výmerou cca 584 m², z toho zastavaná časť približne 156 m².
✅ Stav a výbava:
* zateplený dom, nová fasáda (2024) hlavná časť domu tehla o hrúbke 60 cm + 10 cm zateplenie. Strop zateplený minerálnou vatou o hrúbke 20 cm + 5 cm zateplenie pod sadrokartónom v interiéry domu.
* plastové okná 3 sklo
* nová strecha (2022) - plech
* kompletne zrekonštruovaný interiér – nové podlahy, rozvody, kuchynská linka, kúpeľňa
* po dohode sa predáva zariadený
* teplovodné podlahové kúrenie, plynový kotol Protherm
* čiastočne podpivničený, ale pivnica sa nevyužíva
* napojenie na obecný vodovod, odpad žumpa
* automatická elektrická brána, celý pozemok oplotený
* pripravená 400 V zásuvka s prepäťovou ochranou podľa štandardov pre nabíjanie elektromobilu
🏠 Dispozícia:
Dom pozostáva z:
* priestrannej obývacej izby spojenej s jedálenskou časťou a kuchyňou,
* samostatnej spálne s vlastným šatníkom,
* detskej izby,
* kúpeľne a vstupnej predsiene.
Dispozícia je prakticky riešená – ideálna pre rodinu s deťmi alebo pár, ktorý ocení otvorený priestor a dostatok úložných možností.
🔧 Doplnkové stavby:
* vykachličkovaná dielňa privedené siete voda a elektrina
* hospodárska časť s predprípravou na zimnú záhradu a altánok (nutné dokončiť )
* samostatná dielňa z panelovej konštrukcie na betónovom základe, s privedenou elektrinou
Dom ponúka ideálne bývanie pre rodinu alebo pár, ktorí hľadajú pokojné prostredie s výhľadom na les a dobrou dostupnosťou do Sabinova a Prešova.
Obhliadky :
Od Januára
Aby boli obhliadky efektívne, prosím pri prvom kontakte uviesť:
– či plánujete kúpu v hotovosti alebo hypotékou,
– ak hypotéka: či máte predbežné schválenie,
– ak kupujete z predaja vlastnej nehnuteľnosti – v akom ste štádiu.
|
| |||||||||||||||||||||||||||||||
Kontaktovať inzerenta e-mailom
Kontaktovať e-mailom môže iba overený užívateľ.
Overenie je zadarmo.
Vaše telefónne číslo *
Kontaktovať e-mailom môže iba overený užívateľ.
Overenie je zadarmo.
Vaše telefónne číslo *









