Predaj pozemku s rozostavaným 5izb. domom – Vampíl
- [9.12. 2025]Zmazať/ Upraviť/ Topovať



























Popis nehnuteľnosti
Ponúkame na predaj pozemok o výmere 519 m², ktorý sa nachádza v tichej a atraktívnej lokalite Plavecký Štvrtok, časť Vampíl. Na pozemku sa nachádza rozostavaný 5 izbový dom s úžitkovou plochou 134 m², ktorý je možné dokončiť podľa vlastných predstáv.
Základné informácie:
• Výmera pozemku: 519 m²
• Rozostavaná stavba: 5 izbový dom
• Platné stavebné povolenie: Áno
• Inžinierske siete: Prípojka vody, kanalizácie, elektrickej energie
• Lokalita: Plavecký Štvrtok, Vampíl
• Cena: 187 000 EUR
Pozemok:
Pozemok je ideálny pre tých, ktorí hľadajú projekt na dokončenie svojho vysnívaného domova v pokojnej a prírodou obklopenej lokalite. Ak vás láka zurčanie potôčiku priamo na hranici pozemku, prechádzky v borovicových lesoch za domom, či večerný relax vo wellness neďalekého hotela, tak ste naša krvná skupina a nemusíte už hľadať ďalej. Milí susedia sú už len príjemný bonus.
K pozemku sa dostanete súkromnou prístupovou cestou (samozrejme aj s vlastníckym podielom) popri hoteli Spark. Sú tu privedené aj všetky potrebné inžinierske siete vrátane prípojky vody, kanalizácie a prípojky elektrickej energie, čo vám umožňuje plynulé pokračovanie v stavbe. Stavebné povolenie je platné a aktuálne predĺžené až do apríla 2027, takže môžete okamžite pokračovať v prácach alebo upraviť a dokončiť projekt podľa vašich potrieb a predstáv.
Technické vyhotovenie rodinného domu:
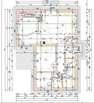
134 m2 úžitkovej plochy. 126 m2 zastavaná plocha. Projekt počíta s parkovaním pre 2 autá na vlastnom pozemku a celkovo s 5 izbami pre vašu rodinu. Po vstupe do domu si odložíte topánky v zádverí a prejdete do obývacej izby s kuchyňou, ktoré majú spolu veľkorysých 50m2. Na prízemí sa nachádza spálňa, pracovňa, technická miestnosť a kúpeľňa s toaletou a s priestorom pre vaňu i sprchovací kút zároveň. Na poschodie domu sa dostaneme schodmi z obývačky s galériou s veľkými presklenými plochami. Nájdeme tu dve identické zrkadlovo otočené detské izby a samostatnú toaletu.
Hrubá stavba domu je z porobetónových tvárnic o hrúbke až 450 mm s výbornými tepelnoizolačnými vlastnosťami (Ytong lambda YQ). Väzníkový strop s 400 mm zateplením minerálnou vlnou. Falcovaná plechová strecha a dažďové zvody od spoločnosti KJG. Okná a dvere prémiovej kvality Salamander s trojsklom, šesť komorovým profilom ako aj šesť komorovým krídlom pre lepšiu tepelnú i akustickú izoláciu. Príprava pre krb v podobe elegantného a funkčného komínu značky Schiedel. Priznané drevené nosníky o hrúbke 240x180 mm v obývacej miestnosti s galériou pre ešte väčší pocit útulnosti a spojenia s prírodou.
Lokalita:
Lokalita Vampíl je obklopená prírodou a veľmi vyhľadávaná pre svoju tichú a príjemnú komunitnú atmosféru, no zároveň ponúka dobré dopravné spojenie do len 2km vzdialených Malaciek s plnou občianskou vybavenosťou, nákupnými možnosťami, školami a škôlkami, lekármi i nemocnicou. Veľkou výhodou je okrem bývania v prírode aj neďaleký a pešo dostupný 4*hotel
Ponúkame na predaj pozemok o výmere 519 m², ktorý sa nachádza v tichej a atraktívnej lokalite Plavecký Štvrtok, časť Vampíl. Na pozemku sa nachádza rozostavaný 5 izbový dom s úžitkovou plochou 134 m², ktorý je možné dokončiť podľa vlastných predstáv.
Základné informácie:
• Výmera pozemku: 519 m²
• Rozostavaná stavba: 5 izbový dom
• Platné stavebné povolenie: Áno
• Inžinierske siete: Prípojka vody, kanalizácie, elektrickej energie
• Lokalita: Plavecký Štvrtok, Vampíl
• Cena: 187 000 EUR
Pozemok:
Pozemok je ideálny pre tých, ktorí hľadajú projekt na dokončenie svojho vysnívaného domova v pokojnej a prírodou obklopenej lokalite. Ak vás láka zurčanie potôčiku priamo na hranici pozemku, prechádzky v borovicových lesoch za domom, či večerný relax vo wellness neďalekého hotela, tak ste naša krvná skupina a nemusíte už hľadať ďalej. Milí susedia sú už len príjemný bonus.
K pozemku sa dostanete súkromnou prístupovou cestou (samozrejme aj s vlastníckym podielom) popri hoteli Spark. Sú tu privedené aj všetky potrebné inžinierske siete vrátane prípojky vody, kanalizácie a prípojky elektrickej energie, čo vám umožňuje plynulé pokračovanie v stavbe. Stavebné povolenie je platné a aktuálne predĺžené až do apríla 2027, takže môžete okamžite pokračovať v prácach alebo upraviť a dokončiť projekt podľa vašich potrieb a predstáv.
Technické vyhotovenie rodinného domu:
134 m2 úžitkovej plochy. 126 m2 zastavaná plocha. Projekt počíta s parkovaním pre 2 autá na vlastnom pozemku a celkovo s 5 izbami pre vašu rodinu. Po vstupe do domu si odložíte topánky v zádverí a prejdete do obývacej izby s kuchyňou, ktoré majú spolu veľkorysých 50m2. Na prízemí sa nachádza spálňa, pracovňa, technická miestnosť a kúpeľňa s toaletou a s priestorom pre vaňu i sprchovací kút zároveň. Na poschodie domu sa dostaneme schodmi z obývačky s galériou s veľkými presklenými plochami. Nájdeme tu dve identické zrkadlovo otočené detské izby a samostatnú toaletu.
Hrubá stavba domu je z porobetónových tvárnic o hrúbke až 450 mm s výbornými tepelnoizolačnými vlastnosťami (Ytong lambda YQ). Väzníkový strop s 400 mm zateplením minerálnou vlnou. Falcovaná plechová strecha a dažďové zvody od spoločnosti KJG. Okná a dvere prémiovej kvality Salamander s trojsklom, šesť komorovým profilom ako aj šesť komorovým krídlom pre lepšiu tepelnú i akustickú izoláciu. Príprava pre krb v podobe elegantného a funkčného komínu značky Schiedel. Priznané drevené nosníky o hrúbke 240x180 mm v obývacej miestnosti s galériou pre ešte väčší pocit útulnosti a spojenia s prírodou.
Lokalita:
Lokalita Vampíl je obklopená prírodou a veľmi vyhľadávaná pre svoju tichú a príjemnú komunitnú atmosféru, no zároveň ponúka dobré dopravné spojenie do len 2km vzdialených Malaciek s plnou občianskou vybavenosťou, nákupnými možnosťami, školami a škôlkami, lekármi i nemocnicou. Veľkou výhodou je okrem bývania v prírode aj neďaleký a pešo dostupný 4*hotel
|
| |||||||||||||||||||||||||||||||
Kontaktovať inzerenta e-mailom
Kontaktovať e-mailom môže iba overený užívateľ.
Overenie je zadarmo.
Vaše telefónne číslo *
Kontaktovať e-mailom môže iba overený užívateľ.
Overenie je zadarmo.
Vaše telefónne číslo *






