Stavebný pozemok s projektom na apartmánový dom Mýto Nízke T
- [8.12. 2025]Zmazať/ Upraviť/ Topovať






















Pozemok je situovaný v srdci Slovenska, v dedinke pod Ďumbierom z Južnej strany Nízkych Tatier. Nachádza sa nad obcou Mýto pod Ďumbierom na hranici intravilánu. Je vzdialený od hlavnej cesty, v nadmorskej výške 635 m. Je svahovitý, slnečný, zvažujúci sa na Juh s výhľadom na Ďumbier a lyžiarske stredisko.
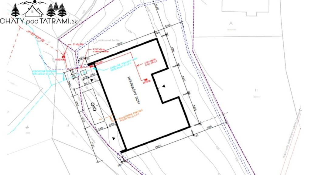
Terasovitý pozemok o výmere 1368 m2 je oplotený. Na hranici pozemku je elektrická prípojka, vodovodná prípojka je priamo na pozemku.
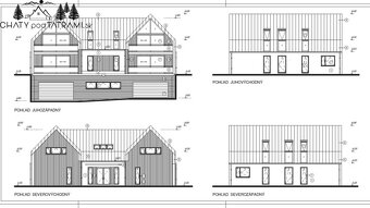
Na pozemok je spracovaný stavebný projekt na trojpodlažnú budovu. Sú tu naplánované štyri trojizbové byty a garáž pre štyri autá.
1,2 km vzdialený je obľúbený Ski&Bike park v Mýte pod Ďumbierom (kopeczabavy.sk)
4 km je vzdialené 18 jamkové majstrovské golfové ihrisko Gray Bear a 9 jamkové obojstranne hrateľné golfové ihrisko Little Bear s detskou golfovou akadémiou aj nočným golfom. V tomto areáli je taktiež lyžiarske stredisko s umelým zasnežovaním, večerným aj ranným fresh track lyžovaním a bežkárskou traťou (tale.sk)
9 km vzdialené je najväčšie lyžiarske stredisko na Slovensku, ktoré ponúka viac ako 50km upravených tratí na južnej a severnej strane Chopku a v lete sa meniace na perfektnú destináciu pre rodinné výlety s rôznymi atrakciami (jasna.sk).
Na všetky strediská pravidelne jazdí skibus so zástavkou cca400m od pozemku.
V lete je obľúbeným cieľom turistov aj neďaleká Bystrianska jaskyňa, Jaskyňa mŕtvych netopierov, zvieracia Ajax farma a množstvo trás pre turistov a cykloturistov, ktoré vedú v tesnej blízkosti pozemku (horehronie.sk).
Uvedená CENA je za m2.
Podrobné informácie a ďalšie ponuky nájdete na CHATYpodTATRAMI.sk a na našich sociálnych sieťach.
Rozloha pozemku: 1368m²
Odvoz odpadu: áno
Voda: verejný vodovod
El. napätie: 230/400V
Plyn: nie
Kanalizácia: žumpa
Internet: lokálny poskytovateľ
Inžinierske siete: áno
Orientácia: južná
Terén: svahovitý
Prístupová cesta: asfaltová cesta
Pripravené na výstavbu: schválené v územnom pláne
Terasovitý pozemok o výmere 1368 m2 je oplotený. Na hranici pozemku je elektrická prípojka, vodovodná prípojka je priamo na pozemku.
Na pozemok je spracovaný stavebný projekt na trojpodlažnú budovu. Sú tu naplánované štyri trojizbové byty a garáž pre štyri autá.
1,2 km vzdialený je obľúbený Ski&Bike park v Mýte pod Ďumbierom (kopeczabavy.sk)
4 km je vzdialené 18 jamkové majstrovské golfové ihrisko Gray Bear a 9 jamkové obojstranne hrateľné golfové ihrisko Little Bear s detskou golfovou akadémiou aj nočným golfom. V tomto areáli je taktiež lyžiarske stredisko s umelým zasnežovaním, večerným aj ranným fresh track lyžovaním a bežkárskou traťou (tale.sk)
9 km vzdialené je najväčšie lyžiarske stredisko na Slovensku, ktoré ponúka viac ako 50km upravených tratí na južnej a severnej strane Chopku a v lete sa meniace na perfektnú destináciu pre rodinné výlety s rôznymi atrakciami (jasna.sk).
Na všetky strediská pravidelne jazdí skibus so zástavkou cca400m od pozemku.
V lete je obľúbeným cieľom turistov aj neďaleká Bystrianska jaskyňa, Jaskyňa mŕtvych netopierov, zvieracia Ajax farma a množstvo trás pre turistov a cykloturistov, ktoré vedú v tesnej blízkosti pozemku (horehronie.sk).
Uvedená CENA je za m2.
Podrobné informácie a ďalšie ponuky nájdete na CHATYpodTATRAMI.sk a na našich sociálnych sieťach.
Rozloha pozemku: 1368m²
Odvoz odpadu: áno
Voda: verejný vodovod
El. napätie: 230/400V
Plyn: nie
Kanalizácia: žumpa
Internet: lokálny poskytovateľ
Inžinierske siete: áno
Orientácia: južná
Terén: svahovitý
Prístupová cesta: asfaltová cesta
Pripravené na výstavbu: schválené v územnom pláne
|
| |||||||||||||||||||||||||||||||
Kontaktovať inzerenta e-mailom
Kontaktovať e-mailom môže iba overený užívateľ.
Overenie je zadarmo.
Vaše telefónne číslo *
Kontaktovať e-mailom môže iba overený užívateľ.
Overenie je zadarmo.
Vaše telefónne číslo *
Podobné inzeráty
Predaj stavebný pozemok Mýto pod Ďumbierom - [19.12. 2025]XEMAR (milan.mlcal@xemar.sk alebo 0915 870 350), ponúka na predaj exkluzívny stavebný pozemok v atraktívnej lokalite Mýto pod Ďumbierom, okres Brezno.
Posledný pozemok s výhľadom na Ďumbier – pripravený na výstavbu rodinných alebo rekreačných domov.
Výmera: 1140 m²
Možnosť výstavby až dvo ...
195 000 €
Brezno
976 44
976 44
355 x
Označiť zlý inzerát Chybnú kategóriu Ohodnotiť užívateľa Zmazať/Upraviť/Topovať
POZEMOK S POTENCIÁLOM v obci Mýto pod Ďumbierom - [7.11. 2025]Túžite po vybudovaní si vlastného domova alebo ste developer hľadajúci nové príležitosti? Táto ponuka je presne pre Vás!
Rovinatý pozemok v obci Mýto pod Ďumbierom o výmere spolu 1362 m2. Pozemok sa nachádza v blízkosti hlavnej cesty a všetkých inžinierskych sietí. Obec poskytla súhlas k výstavbe ...
168 000 €
Brezno
976 44
976 44
136 x
Označiť zlý inzerát Chybnú kategóriu Ohodnotiť užívateľa Zmazať/Upraviť/Topovať
Predaj pozemku so stav. povolením na chatu Mýto pod Ďumbiero - [28.10. 2025]V TeEq Reality v zastúpení majiteľa ponúkame na predaj jeden z posledných voľných pozemkov priamo pod Ďumbierom, v Mýte pod Ďumbierom, Mlynná. Stavebný pozemok o celkovej rozlohe pozemku 968m2, na chatu s pôdorysom 10,4 x 8,4 m, a terasou 2,55x 8,4m. Chata má vypracovaný projekt a vybavené stavebn ...
159 000 €
Brezno
976 44
976 44
488 x
Označiť zlý inzerát Chybnú kategóriu Ohodnotiť užívateľa Zmazať/Upraviť/Topovať
Mýto pod Ďumbierom - Stavebný pozemok - Pohanské - [21.10. 2025]Pozemok sa nachádza v katastri obce Mýto pod Ďumbierom - Pohanské. Výmera parcely 2600 m2. V územnom pláne obce je schválený pre ubytovanie a stravovanie. Výhľad na panorámu Nízkych tatier. Od hlavnej cesty je pozemok vzdialený cca 70 metrov. Prístup na pozemok je pohodlný v každom ročnom období. Ce ...
180 000 €
Brezno
976 44
976 44
1729 x
Označiť zlý inzerát Chybnú kategóriu Ohodnotiť užívateľa Zmazať/Upraviť/Topovať

