Rodinný dom novostavba Poprad Spišská Sobota
- [1.12. 2025]Zmazať/ Upraviť/ Topovať
















Oblasť: rodinný dom sa nachádza priamo v Poprade, časť Spišská Sobota, v slepej ulici Radničná, neďaleko základnej školy Spišská Sobota 3min chôdze a námestia Spišská Sobota 5min. chôdze. Ako súčasťou slepej ulice s minimom dopravy vhodné pre mladé rodinky a tých, ktorí preferujú kľud.
==
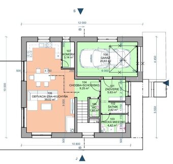
Rodinný dom dosiahne energetickú triedu A0. RD má plochu 12x10m a 2 podlažia: úžitková plocha 175m2, obytná plocha 111m2. Na prízemí je zádverie, šatník, technická miestnosť, garáž, obývacia izba s prívodom pre krb, kuchyňa s komorou a WC. Na poschodí 4 izby, kúpeľňa 2x a wc 2x. Všetky štandardné prípojky na hranici pozemku elektrina, plyn, voda, odpad. Kúrenie podlahové. Pozemok obdĺžnikového tvaru je rovinatý o výmere 408m2. 2 vonkajšie parkovacie stania. Podzemná retenčná nádrž dažďovej vody zo strechy pre zalievanie. RD bude z materiálu Porotherm profi a zasklenie izolačné trojsklo. Vydané stavebné povolenie. Zahájenie výstavby q1 2026, dokončenie 2027. Cena zahrnuje pozemok a výstavbu RD. Viac informácií pri osobnej schôdzke. Prosím RK volať iba v prípade, že zastupujete svojho klienta ako potenciálneho zákazníka danej nemovitosti.
===
vila, Poprad, Spišská Sobota, Vysoké Tatry, záhrada, pozemok, garáž.
==
Rodinný dom dosiahne energetickú triedu A0. RD má plochu 12x10m a 2 podlažia: úžitková plocha 175m2, obytná plocha 111m2. Na prízemí je zádverie, šatník, technická miestnosť, garáž, obývacia izba s prívodom pre krb, kuchyňa s komorou a WC. Na poschodí 4 izby, kúpeľňa 2x a wc 2x. Všetky štandardné prípojky na hranici pozemku elektrina, plyn, voda, odpad. Kúrenie podlahové. Pozemok obdĺžnikového tvaru je rovinatý o výmere 408m2. 2 vonkajšie parkovacie stania. Podzemná retenčná nádrž dažďovej vody zo strechy pre zalievanie. RD bude z materiálu Porotherm profi a zasklenie izolačné trojsklo. Vydané stavebné povolenie. Zahájenie výstavby q1 2026, dokončenie 2027. Cena zahrnuje pozemok a výstavbu RD. Viac informácií pri osobnej schôdzke. Prosím RK volať iba v prípade, že zastupujete svojho klienta ako potenciálneho zákazníka danej nemovitosti.
===
vila, Poprad, Spišská Sobota, Vysoké Tatry, záhrada, pozemok, garáž.
|
| |||||||||||||||||||||||||||||||
Kontaktovať inzerenta e-mailom
Kontaktovať e-mailom môže iba overený užívateľ.
Overenie je zadarmo.
Vaše telefónne číslo *
Kontaktovať e-mailom môže iba overený užívateľ.
Overenie je zadarmo.
Vaše telefónne číslo *