Na predaj veľkorysý RD v meste Veľký Meder
- [1.12. 2025]Zmazať/ Upraviť/ Topovať





























EXKLUZÍVNE !
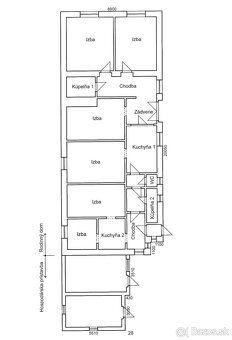
Na predaj veľkorysý RD nachádzajúci sa na ul. Tichá v meste Veľký Meder, okres Dunajská Streda. Samostatne stojaci, čiastočne podpivničený, jednopodlažný RD bol postavený v 70. rokoch z materiálov pálená tehla/kváder a rozprestiera sa na rovinatom slnečnom pozemku o výmere 553m2, so zastavanou plochou 224m2 a veľkorysou úžitkovou plochou 187m2. Dom dispozične pozostáva zo: zádveria, chodieb, 6x izba, 2x kuchyňa, 2x kúpeľňa a samostatného WC. V pivničnej časti sa nachádzajú dve miestnosti vrátane kotolne s kotlom. Nehnuteľnosť je v pôvodnom stave a vyžaduje si kompletnú rekonštrukciu. Po zrealizovaní rekonštrukcie ju možno užívať na bývanie ako celok (napr. na viacgeneračné bývanie) alebo ju rozdeliť na dve bytové jednotky (viď. pôdorys). V prípade záujmu, je taktiež možné za domom využívať ďalšiu časť záhrady o výmere 789m2 na poľnohospodárske alebo rekreačné účely, ktorá nie je súčasťou vlastníctva.
Rodinný dom bol napojený na ele. energiu, plyn, vodu a kanalizáciu.
Mesto Veľký Meder disponuje kompletnou občianskou vybavenosťou (lekáreň, pošta, lekári, úrady, supermarkety, školy, škôlky…), veľmi dobrým autobusovým aj vlakovým spojením Komárno – Dunajská Streda – Bratislava a v neposlednom rade aj obľúbeným termálnym kúpaliskom Corvinus s celoročným využitím.
Dom je kúpou k dispozícii ihneď voľný a bez tiarch !
Viac info. na tel.č.: 0949 091 199.
Na predaj veľkorysý RD nachádzajúci sa na ul. Tichá v meste Veľký Meder, okres Dunajská Streda. Samostatne stojaci, čiastočne podpivničený, jednopodlažný RD bol postavený v 70. rokoch z materiálov pálená tehla/kváder a rozprestiera sa na rovinatom slnečnom pozemku o výmere 553m2, so zastavanou plochou 224m2 a veľkorysou úžitkovou plochou 187m2. Dom dispozične pozostáva zo: zádveria, chodieb, 6x izba, 2x kuchyňa, 2x kúpeľňa a samostatného WC. V pivničnej časti sa nachádzajú dve miestnosti vrátane kotolne s kotlom. Nehnuteľnosť je v pôvodnom stave a vyžaduje si kompletnú rekonštrukciu. Po zrealizovaní rekonštrukcie ju možno užívať na bývanie ako celok (napr. na viacgeneračné bývanie) alebo ju rozdeliť na dve bytové jednotky (viď. pôdorys). V prípade záujmu, je taktiež možné za domom využívať ďalšiu časť záhrady o výmere 789m2 na poľnohospodárske alebo rekreačné účely, ktorá nie je súčasťou vlastníctva.
Rodinný dom bol napojený na ele. energiu, plyn, vodu a kanalizáciu.
Mesto Veľký Meder disponuje kompletnou občianskou vybavenosťou (lekáreň, pošta, lekári, úrady, supermarkety, školy, škôlky…), veľmi dobrým autobusovým aj vlakovým spojením Komárno – Dunajská Streda – Bratislava a v neposlednom rade aj obľúbeným termálnym kúpaliskom Corvinus s celoročným využitím.
Dom je kúpou k dispozícii ihneď voľný a bez tiarch !
Viac info. na tel.č.: 0949 091 199.
|
| |||||||||||||||||||||||||||||||
Kontaktovať inzerenta e-mailom
Kontaktovať e-mailom môže iba overený užívateľ.
Overenie je zadarmo.
Vaše telefónne číslo *
Kontaktovať e-mailom môže iba overený užívateľ.
Overenie je zadarmo.
Vaše telefónne číslo *








