NA PRENÁJOM KANCELÁRIE, JUŽNÁ TRIEDA, KOŠICE
- [30.11. 2025]Zmazať/ Upraviť/ Topovať














Prenájom kancelárií – Južná trieda, Košice
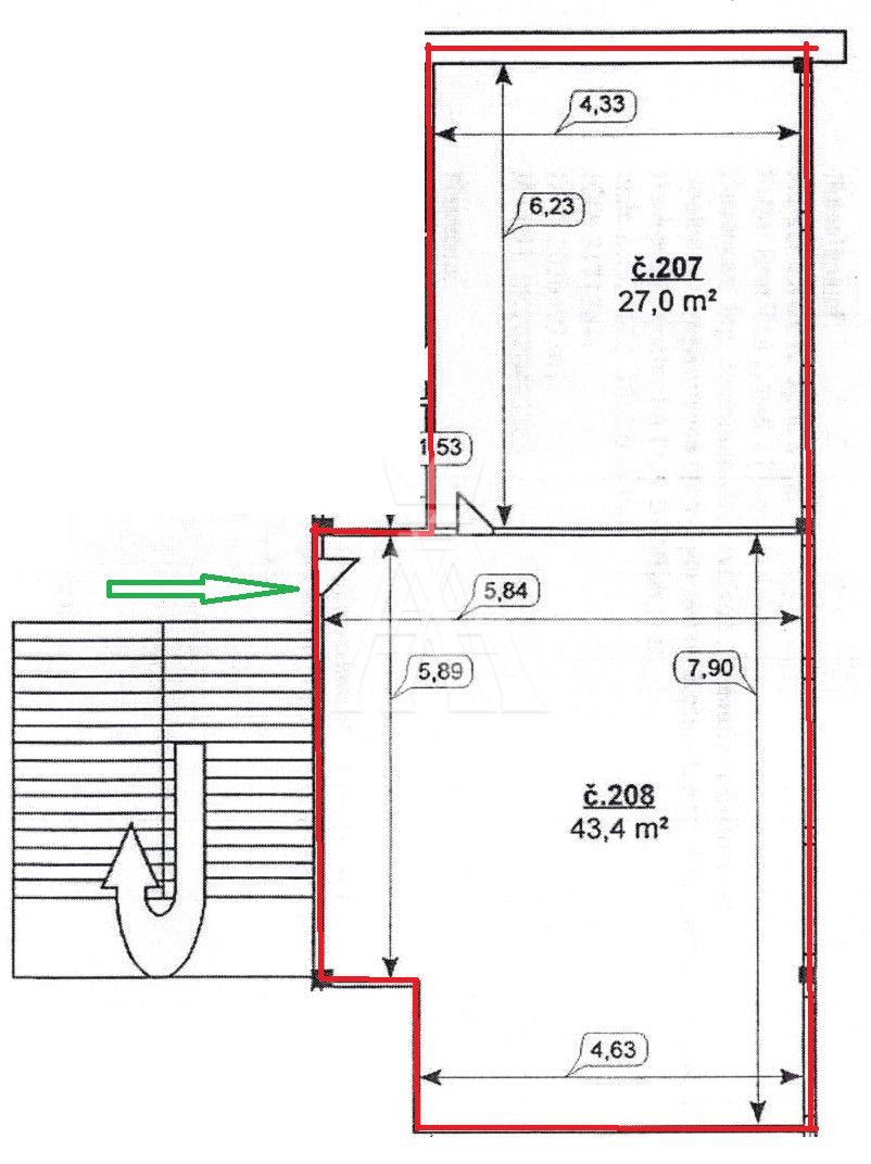
Ponúkame na prenájom dve prepojené kancelárie o celkovej výmere 70,4 m², ktoré sa nachádzajú na druhom poschodí v zrekonštruovanej budove s výťahom.
Dispozícia priestorov:
Dve priechodné kancelárie, vstupná kancelária je o výmere 43,4m2, a druhá je menšia o výmere 27m2
Možnosť prenájmu aj iných troch prepojených kancelárií
Sociálne zariadenie je spoločné na poschodí, k dispozícií je aj sprcha
Vybavenie a výhody:
Zrekonštruovaná budova s nepretržitým prístupom (24/7)
Parkovanie v cene nájmu, vhodné aj pre klientov
Sociálne zariadenie na poschodí
Priestory sú vymaľované a pripravené na prenájom
Klimatizácia vo všetkých kanceláriách
Internet dostupný od viacerých poskytovateľov (nie je zahrnutý v cene nájmu)
Cena prenájmu:
Nájomné: 536,87 € s DPH/mesiac
Energie a služby: 519,55 € s DPH/mesiac
Celková mesačná cena: 1056,42 € s DPH
V prípade záujmu kontaktujte: Vasiľ Blaha – realitný maklér. Telefón: 0918 651 600
Ponúkame na prenájom dve prepojené kancelárie o celkovej výmere 70,4 m², ktoré sa nachádzajú na druhom poschodí v zrekonštruovanej budove s výťahom.
Dispozícia priestorov:
Dve priechodné kancelárie, vstupná kancelária je o výmere 43,4m2, a druhá je menšia o výmere 27m2
Možnosť prenájmu aj iných troch prepojených kancelárií
Sociálne zariadenie je spoločné na poschodí, k dispozícií je aj sprcha
Vybavenie a výhody:
Zrekonštruovaná budova s nepretržitým prístupom (24/7)
Parkovanie v cene nájmu, vhodné aj pre klientov
Sociálne zariadenie na poschodí
Priestory sú vymaľované a pripravené na prenájom
Klimatizácia vo všetkých kanceláriách
Internet dostupný od viacerých poskytovateľov (nie je zahrnutý v cene nájmu)
Cena prenájmu:
Nájomné: 536,87 € s DPH/mesiac
Energie a služby: 519,55 € s DPH/mesiac
Celková mesačná cena: 1056,42 € s DPH
V prípade záujmu kontaktujte: Vasiľ Blaha – realitný maklér. Telefón: 0918 651 600
|
| |||||||||||||||||||||||||||||||
Kontaktovať inzerenta e-mailom
Kontaktovať e-mailom môže iba overený užívateľ.
Overenie je zadarmo.
Vaše telefónne číslo *
Kontaktovať e-mailom môže iba overený užívateľ.
Overenie je zadarmo.
Vaše telefónne číslo *