ABSOLUTE REAL /3i byt v Ružinove,Astrová ul.60m2,terasa 46m2
- [29.11. 2025]Zmazať/ Upraviť/ Topovať





























ABSOLUTE REAL / moderný 3i byt v BA – Ružinove, Astrová ulica, 60 m2, tehla, terasa 46 m2, pivnica
VIRTUÁLNU PREHLIADKU BYTU 360° SI MÔŽETE PORZIEŤ TU:
https://my.matterport.com/show/?m=bUd3FBNwLX2
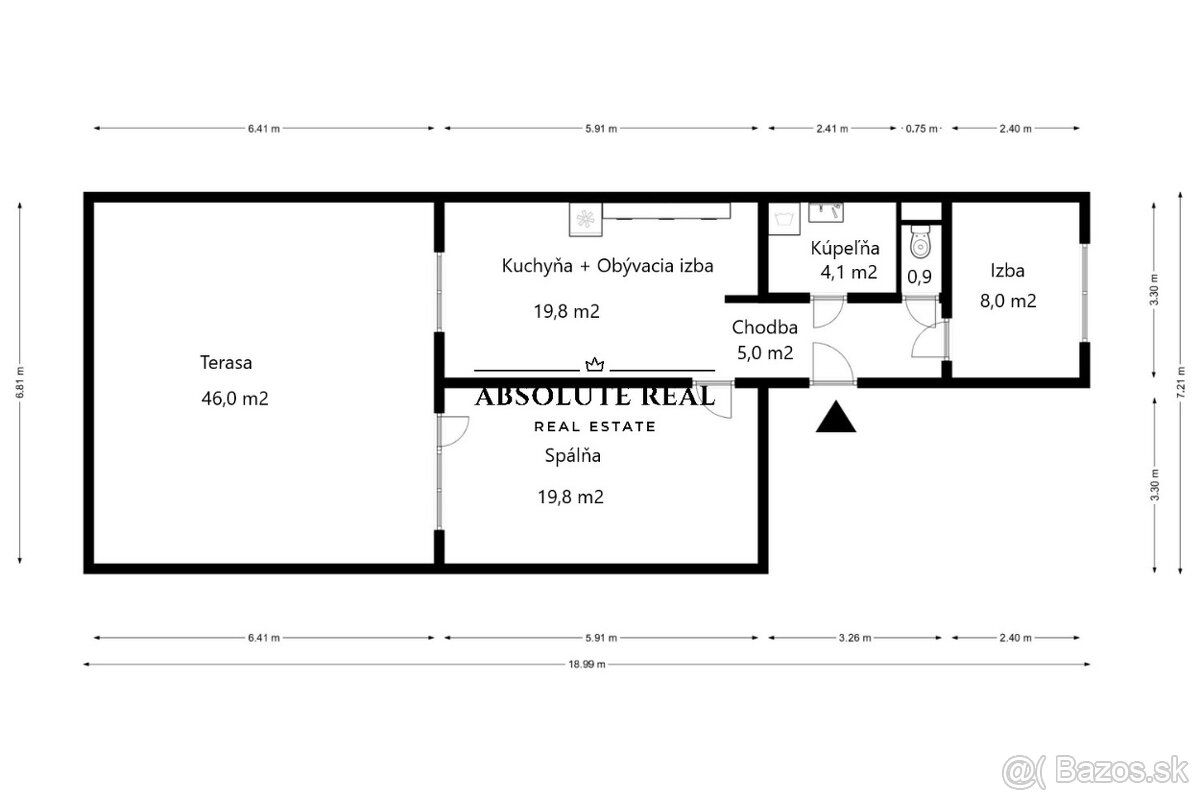
Realitná kancelária ABSOLUTE REAL v zastúpení majiteľa predáva 3 izbový byt o rozlohe 60 m2 vrátane pivnice (2.4 m2) a terasu o veľkosti 46 m2, ktorá patrí k bytu, v lokalite Bratislava Ružinov-Trávniky na ulici Astrová.
Lokalita:
● Občianska vybavenosť – potraviny, škôlka, škola, nemocnica, OC Retro, gym, jazero Štrkovec a Rohlík, atletická dráha, tenisové kurty, parky, zimný štadión......
● Ľahké napojenie na mestskú diaľnicu
● MHD
● Verejné parkovanie pre rezidentov - PAAS
● Výborné pracovné a športové možnosti v okolí
Byt:
● 1/4 podlažie, orientácia VZ
● Dispozícia: Obývačka s kuchyňou (19.8 m2), spálňa (19.8 m2), detská izba/pracovňa (8 m2), chodba (5 m2), kúpeľňa (4.1 m2), WC (0.9 m2), terasa (46 m2)
● Kúpeľňa – vaňa, práčka AEG, umývadlo, skriňa, zrkadlo
● Samostatné WC
● Kuchyňa – kuchynská linka v tvare L s podsvietenou barovou doskou, plynový šporák Gorenje, elektrická rúra Mora, umývačka riadu Mora, digestor, chladnička s mrazničkou Beko, mikrovlnka, toaster....
● Nové rozvody elektriny
● Laminátové parkety + dlažba
● Plastové okná, sieťky a závesy
● Veľká terasa
● Zariadený – viď foto
● Optický internet – Orange, Telekom
● Bytový telefón / vrátnik
● Bezpečnostné dvere
● Pivnica (2.4 m2), murovaná/latková
Bytový dom:
● Stavba z 1969
● Obvodové múry - tehla
● Nový výťah – 8 osôb, 600 kg
● Energetický certifikát B
Cena:
● 249.990 € vrátane servisu realitnej kancelárie a advokáta
Realitná kancelária ABSOLUTE REAL vám pri prevode vlastníckeho práva zabezpečí:
- vypracovanie rezervačnej zmluvy
- bezplatné poradenstvo s našim hypotekárnym špecialistom v prípade potreby
- vypracovanie kúpnej zmluvy advokátom, zrýchlené katastrálne konanie do 20 dní
- vypracovanie návrhu na vklad do katastra nehnuteľností advokátom
- osobnú asistenciu pri úkonoch spojených s notárom, bankou a katastrom
- osobnú účasť pri úkonoch spojených s protokolárnym odovzdaním nehnuteľnosti
- úhradu správneho poplatku vo výške 100 EUR za návrh na vklad vlastníckeho práva do katastra nehnuteľností
- poskytnutie kontaktov na sťahovacie, rekonštrukčné, dizajnérske, poisťovacie služby v prípade potreby
Tešíme sa na obhliadku s vami!
PS: Potrebujete najskôr predať svoju nehnuteľnosť? Radi vám s tým pomôžeme.))
VIRTUÁLNU PREHLIADKU BYTU 360° SI MÔŽETE PORZIEŤ TU:
https://my.matterport.com/show/?m=bUd3FBNwLX2
Realitná kancelária ABSOLUTE REAL v zastúpení majiteľa predáva 3 izbový byt o rozlohe 60 m2 vrátane pivnice (2.4 m2) a terasu o veľkosti 46 m2, ktorá patrí k bytu, v lokalite Bratislava Ružinov-Trávniky na ulici Astrová.
Lokalita:
● Občianska vybavenosť – potraviny, škôlka, škola, nemocnica, OC Retro, gym, jazero Štrkovec a Rohlík, atletická dráha, tenisové kurty, parky, zimný štadión......
● Ľahké napojenie na mestskú diaľnicu
● MHD
● Verejné parkovanie pre rezidentov - PAAS
● Výborné pracovné a športové možnosti v okolí
Byt:
● 1/4 podlažie, orientácia VZ
● Dispozícia: Obývačka s kuchyňou (19.8 m2), spálňa (19.8 m2), detská izba/pracovňa (8 m2), chodba (5 m2), kúpeľňa (4.1 m2), WC (0.9 m2), terasa (46 m2)
● Kúpeľňa – vaňa, práčka AEG, umývadlo, skriňa, zrkadlo
● Samostatné WC
● Kuchyňa – kuchynská linka v tvare L s podsvietenou barovou doskou, plynový šporák Gorenje, elektrická rúra Mora, umývačka riadu Mora, digestor, chladnička s mrazničkou Beko, mikrovlnka, toaster....
● Nové rozvody elektriny
● Laminátové parkety + dlažba
● Plastové okná, sieťky a závesy
● Veľká terasa
● Zariadený – viď foto
● Optický internet – Orange, Telekom
● Bytový telefón / vrátnik
● Bezpečnostné dvere
● Pivnica (2.4 m2), murovaná/latková
Bytový dom:
● Stavba z 1969
● Obvodové múry - tehla
● Nový výťah – 8 osôb, 600 kg
● Energetický certifikát B
Cena:
● 249.990 € vrátane servisu realitnej kancelárie a advokáta
Realitná kancelária ABSOLUTE REAL vám pri prevode vlastníckeho práva zabezpečí:
- vypracovanie rezervačnej zmluvy
- bezplatné poradenstvo s našim hypotekárnym špecialistom v prípade potreby
- vypracovanie kúpnej zmluvy advokátom, zrýchlené katastrálne konanie do 20 dní
- vypracovanie návrhu na vklad do katastra nehnuteľností advokátom
- osobnú asistenciu pri úkonoch spojených s notárom, bankou a katastrom
- osobnú účasť pri úkonoch spojených s protokolárnym odovzdaním nehnuteľnosti
- úhradu správneho poplatku vo výške 100 EUR za návrh na vklad vlastníckeho práva do katastra nehnuteľností
- poskytnutie kontaktov na sťahovacie, rekonštrukčné, dizajnérske, poisťovacie služby v prípade potreby
Tešíme sa na obhliadku s vami!
PS: Potrebujete najskôr predať svoju nehnuteľnosť? Radi vám s tým pomôžeme.))
|
| |||||||||||||||||||||||||||||||
Kontaktovať inzerenta e-mailom
Kontaktovať e-mailom môže iba overený užívateľ.
Overenie je zadarmo.
Vaše telefónne číslo *
Kontaktovať e-mailom môže iba overený užívateľ.
Overenie je zadarmo.
Vaše telefónne číslo *








