Na predaj 3-izbový drevodom 1.071 m² v Necpaloch, Martin
- [28.11. 2025]Zmazať/ Upraviť/ Topovať






























Reality EGYPS ponúka na predaj útulný 3-izbový drevodom v Necpaloch, kolaudovaný v r. 2021. Dom stojí na slnečnom pozemku (juhozápad), o výmere 1.071 m², má zastavanú plochu 77,88 m² a úžitkovú 64,5 m².
K domu patrí veľká prestrešená terasa 4×10 m a parkovanie pre cca 4 autá (150 m²).
Dom je vhodný pre trojčlennú rodinu alebo pár.
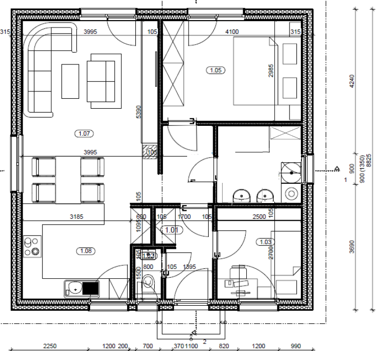
Dispozícia a vybavenie:
-veľká kuchyňa s kompletným vybavením ako umývačka riadu, chladnička s mrazničkou, varná doska, rúra a klimatizácia
-kuchyňa je spojená s priestrannou obývačkou ktorej súčasťou je výkonný krb ROMOTOP na tuhé palivo
-spálňa s možnosťou prechodu na terasu
-pracovňa/detská izba/hosťovská izba
-kúpeľňa so sprchovým kútom, práčkou so sušičkou, podlahové kúrenie + samostatné WC
-vykurovanie domu je kombinované a to podlahové v kúpeľni, klimatizácia leto-zima, elektrické panely a výkonný krb ROMOTOP
-pochôdzna povala (úložný priestor)
Dom sa predáva kompletne zariadený, prípadne podľa dohody s novým majiteľom.
Moderné technológie:
-v roku 2024 bola namontovaná fotovoltika s fyzickými batériami 10 kW, ktorá zabezpečuje takmer minimálnu spotrebu elektriny.
-prípojky: elektrina, vodovod, kanalizácia
Veľká a udržiavaná záhrada:
-vlastná studňa 22 m (čerpadlo)
-automatické zavlažovanie
-vyvýšené záhony, ovocné kríky, množstvo okrasných rastlín ako bambus, tuje, skalka, 5 druhov viniča, rakytník, ovocné kríky a stromy.
-jazierko s rybkami a vodnými rastlinami pri terase
-skleník
-multifunkčné detské ihrisko
-plechový domček 5×5 m, úložné prístrešky
-vlastný zakrytý automatický kurník s veľkým výbehom
-oplotenie domu-betónový plot pre zabezpečenie súkromia s hlbokými základmi proti vetru.
Fasádu a dlažbu pred domom si nový majiteľ dokončí podľa seba.
Lokalita:
Nová IBV na začiatku obce, tichá časť, krásne výhľady, autobusová zastávka 50 m.
Dom je pripravený na okamžité bývanie.
Ak Vás táto naša ponuka zaujala a máte záujem o bližšie informácie a obhliadku nehnuteľnosti, volajte tel. číslo 0908935082 alebo píšte na egyps@egyps.sk
K domu patrí veľká prestrešená terasa 4×10 m a parkovanie pre cca 4 autá (150 m²).
Dom je vhodný pre trojčlennú rodinu alebo pár.
Dispozícia a vybavenie:
-veľká kuchyňa s kompletným vybavením ako umývačka riadu, chladnička s mrazničkou, varná doska, rúra a klimatizácia
-kuchyňa je spojená s priestrannou obývačkou ktorej súčasťou je výkonný krb ROMOTOP na tuhé palivo
-spálňa s možnosťou prechodu na terasu
-pracovňa/detská izba/hosťovská izba
-kúpeľňa so sprchovým kútom, práčkou so sušičkou, podlahové kúrenie + samostatné WC
-vykurovanie domu je kombinované a to podlahové v kúpeľni, klimatizácia leto-zima, elektrické panely a výkonný krb ROMOTOP
-pochôdzna povala (úložný priestor)
Dom sa predáva kompletne zariadený, prípadne podľa dohody s novým majiteľom.
Moderné technológie:
-v roku 2024 bola namontovaná fotovoltika s fyzickými batériami 10 kW, ktorá zabezpečuje takmer minimálnu spotrebu elektriny.
-prípojky: elektrina, vodovod, kanalizácia
Veľká a udržiavaná záhrada:
-vlastná studňa 22 m (čerpadlo)
-automatické zavlažovanie
-vyvýšené záhony, ovocné kríky, množstvo okrasných rastlín ako bambus, tuje, skalka, 5 druhov viniča, rakytník, ovocné kríky a stromy.
-jazierko s rybkami a vodnými rastlinami pri terase
-skleník
-multifunkčné detské ihrisko
-plechový domček 5×5 m, úložné prístrešky
-vlastný zakrytý automatický kurník s veľkým výbehom
-oplotenie domu-betónový plot pre zabezpečenie súkromia s hlbokými základmi proti vetru.
Fasádu a dlažbu pred domom si nový majiteľ dokončí podľa seba.
Lokalita:
Nová IBV na začiatku obce, tichá časť, krásne výhľady, autobusová zastávka 50 m.
Dom je pripravený na okamžité bývanie.
Ak Vás táto naša ponuka zaujala a máte záujem o bližšie informácie a obhliadku nehnuteľnosti, volajte tel. číslo 0908935082 alebo píšte na egyps@egyps.sk
|
| |||||||||||||||||||||||||||||||
Kontaktovať inzerenta e-mailom
Kontaktovať e-mailom môže iba overený užívateľ.
Overenie je zadarmo.
Vaše telefónne číslo *
Kontaktovať e-mailom môže iba overený užívateľ.
Overenie je zadarmo.
Vaše telefónne číslo *









