PREDAJ I 4-izbový byt v projekte VILLA RUSTICA-TERASY 2, Dúb
- [28.11. 2025]Zmazať/ Upraviť/ Topovať


















Nadštandardný rezidenčný projekt VILLA RUSTICA - TERASY 2 vyrástol v novej mestskej štvrti ZÁHRADNÉ MESTO v mestskej časti Dúbravka na ulici Martina Granca. Projekt ponúka ideálne spojenie mestského bývania v dotyku prírody s krásnym výhľadmi na Malé Karpaty, Devínsku Kobylu a Záhorskú nížinu. Mestský bytový dom poskytuje vysoký komfort bývania v tichom prostredí, v dotyku Národnej prírodnej rezervácie Devínska Kobyla. Zároveň ponúka rýchlu dostupnosť do centra mesta tak autom ako aj MHD. Projekt je skolaudovaný.
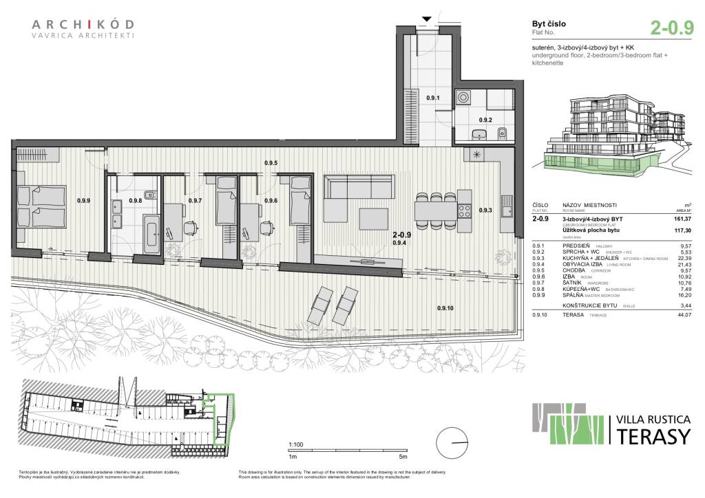
V bytovom dome sa nachádza 27 bytových jednotiek. Skladba bytov je rôznorodá od 2,3 izbových až po luxusné 4, 5 izbové bytové jednotky s veľkolepými panoramatickými terasami a predzáhradkami.
Parkovanie rezidentov je zabezpečené garážovými státiami v podzemnej garáži v štandardnej cene 18.450,- € s DPH/1 státie.
BYTY SÚ DOKONČENÉ V KVALITNOM ŠTANDARDE.
ZVISLÉ NOSNÉ KONŠTRUKCIE
Obvodové a medzibytové steny a stĺpy sú monolitické, železobetónové. Obvodové steny sú dodatočne zateplené kontaktným zatepľovacím systémom hrúbky 160 a 200 mm.
Strecha objektu je plochá so štandardnou jednoplášťovou skladbou. Hydroizolácia strechy je realizovaná zváranou UV-stabilnou PVC - fóliou. Tepelná izolácia je prevedená EPS polystyrénom. Povrchová úprava fasády typických podlaží je silikónovou omietkou.
ŠTANDARD BYTOV
V štandarde kúpeľní, wc a vstupných hál sú použité luxusné rektifikované gressové obklady a dlažby SAIME NEUTRA. Dlažba rozmer 600 x 600 mm, hrúbka 10 mm, obklad rozmer 600 x 300 mm, hrúbka 9 mm. Obklad v priestore wc a kúpeľne je realizovaný do výšky 2100 mm.
Sprchy sú riešené bez vaničiek spádovaním dlažby k sprchovému žľabu alebo s vaničkou, zástena sprchy je vytvorená formou systému walk-in / otočných dverí / posuvných dverí / sprchového kútu v závislosti od dispozície (platí len pre byty so sprchovým kútom v štandarde).
V bytoch sú osadené luxusné bezfalcové interiérové dvere PORTA CPL hladké s laminátovým povrchom vo farbe BIELA RAL 9003, so skrytými závesmi, osadené do drevenej obložkovej zárubne PORTA SYSTEM ELEGANCE. Vnútro dvier tvorí ľahčená drevotriesková doska.
Kúrenie bytov je kombináciou podlahového vykurovania v obývacej izbe, jedálni, kuchyni a kúpeľni a nástenných panelových vykurovacích telies značky KORADO v izbách. V kúpeľniach budú tiež umiestnené rebríkové radiátory značky KORALUX typ LINEAR CLASIC.
Bytové priečky sú vytvorené z keramických tvárnic brúsených 11,5 P+D. V kúpeľniach sú lokálne znížené sadrokartónové podhľady pre zakrytie rozvodov.
V kuchyni je umiestnený vývod pre varnú dosku 380 V. Optické inštalácie tvorí štruktúrovaná kabeláž v byte, FTP kabeláž do každej miestnosti + coax UPC pre Tv do obývacej izby. Možnosť výberu pripojenia dvoch operátorov 3-play: ORANGE Fibernet / UPC broadband. Domáci videovrátnik, zvončeková signalizácia, elektrické ovládanie vstupných dverí.
Okná sú plastové s hliníkovým klipom s celoobvod
V bytovom dome sa nachádza 27 bytových jednotiek. Skladba bytov je rôznorodá od 2,3 izbových až po luxusné 4, 5 izbové bytové jednotky s veľkolepými panoramatickými terasami a predzáhradkami.
Parkovanie rezidentov je zabezpečené garážovými státiami v podzemnej garáži v štandardnej cene 18.450,- € s DPH/1 státie.
BYTY SÚ DOKONČENÉ V KVALITNOM ŠTANDARDE.
ZVISLÉ NOSNÉ KONŠTRUKCIE
Obvodové a medzibytové steny a stĺpy sú monolitické, železobetónové. Obvodové steny sú dodatočne zateplené kontaktným zatepľovacím systémom hrúbky 160 a 200 mm.
Strecha objektu je plochá so štandardnou jednoplášťovou skladbou. Hydroizolácia strechy je realizovaná zváranou UV-stabilnou PVC - fóliou. Tepelná izolácia je prevedená EPS polystyrénom. Povrchová úprava fasády typických podlaží je silikónovou omietkou.
ŠTANDARD BYTOV
V štandarde kúpeľní, wc a vstupných hál sú použité luxusné rektifikované gressové obklady a dlažby SAIME NEUTRA. Dlažba rozmer 600 x 600 mm, hrúbka 10 mm, obklad rozmer 600 x 300 mm, hrúbka 9 mm. Obklad v priestore wc a kúpeľne je realizovaný do výšky 2100 mm.
Sprchy sú riešené bez vaničiek spádovaním dlažby k sprchovému žľabu alebo s vaničkou, zástena sprchy je vytvorená formou systému walk-in / otočných dverí / posuvných dverí / sprchového kútu v závislosti od dispozície (platí len pre byty so sprchovým kútom v štandarde).
V bytoch sú osadené luxusné bezfalcové interiérové dvere PORTA CPL hladké s laminátovým povrchom vo farbe BIELA RAL 9003, so skrytými závesmi, osadené do drevenej obložkovej zárubne PORTA SYSTEM ELEGANCE. Vnútro dvier tvorí ľahčená drevotriesková doska.
Kúrenie bytov je kombináciou podlahového vykurovania v obývacej izbe, jedálni, kuchyni a kúpeľni a nástenných panelových vykurovacích telies značky KORADO v izbách. V kúpeľniach budú tiež umiestnené rebríkové radiátory značky KORALUX typ LINEAR CLASIC.
Bytové priečky sú vytvorené z keramických tvárnic brúsených 11,5 P+D. V kúpeľniach sú lokálne znížené sadrokartónové podhľady pre zakrytie rozvodov.
V kuchyni je umiestnený vývod pre varnú dosku 380 V. Optické inštalácie tvorí štruktúrovaná kabeláž v byte, FTP kabeláž do každej miestnosti + coax UPC pre Tv do obývacej izby. Možnosť výberu pripojenia dvoch operátorov 3-play: ORANGE Fibernet / UPC broadband. Domáci videovrátnik, zvončeková signalizácia, elektrické ovládanie vstupných dverí.
Okná sú plastové s hliníkovým klipom s celoobvod
|
| |||||||||||||||||||||||||||||||
Kontaktovať inzerenta e-mailom
Kontaktovať e-mailom môže iba overený užívateľ.
Overenie je zadarmo.
Vaše telefónne číslo *
Kontaktovať e-mailom môže iba overený užívateľ.
Overenie je zadarmo.
Vaše telefónne číslo *